House for sale in Wetteren with 5 bedrooms
€599,980
Is this affordable for you?Description
Unfortunately, the description is not available in the selected language.
Vlak aan het station van Wetteren gelegen
Potentiele huuropbrengst van 2900 euro
3 entiteiten: gelijkvloers app/commercieel + 2 app'en
Kwalitatief afgewerkt met driedubbele beglazing
Potentiele huuropbrengst van 2900 euro
3 entiteiten: gelijkvloers app/commercieel + 2 app'en
Kwalitatief afgewerkt met driedubbele beglazing
Building
Type of property
House
Subtype
Apartment building
Surface
285 m²
Terrain
Plot size
176 m²
Garden
Yes
Orientation garden
East
Location
Surroundings / neighbourhood
Near railway station
Public transport nearby
Yes
Distance to public transport
100 m
Layout
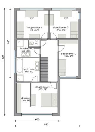
Number of bedrooms
5
Number of bathrooms
3
Bathroom type
Shower
Comfort
Parlophone
Yes
Lift
No
Swimming pool
No
Energy
Electricity inspection certificate
Yes, compliant
Type of heating
Gas
Urban planning
G-score (building score)
A (no flood modeled)
P-score (parcel score)
A (no flood modeled)
Flood-prone area
Not located in a flood-prone area
Location
Nieuwstraat 14, 9230 Wetteren599.980 EUR
Location
Nieuwstraat 14
9230 Wetteren















