Appartement te koop in Huizingen met 2 slaapkamers
€ 360.000
Is dit haalbaar voor jou?Omschrijving
Nieuwbouwappartement in residentie Lindehof te koop
Aankoop 6% btw mogelijk onder voorwaarden!
Ben je opzoek naar een eigentijds modern appartement? Dan is het project Lindehof zeker iets voor u! Lindehof is een een toekomstgericht project, gebouwd met hoogstaande en duurzame materialen waardoor je voor een zeer lange tijd gerust bent.
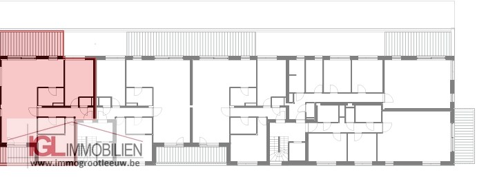
Dit lumineus nieuwbouwappartement met een totale bewoonbare oppervlakte van 109,68m² en is voorzien van twee slaapkamers. Met zijn twee ruime terrassen van 18m² en 7m² is dit appartement perfect voor wie op zoek is naar een comfortabele en zorgeloze woonst.
Bij Lindehof wordt elk appartement afgewerkt naar jouw wensen. Van vloer tot keuken, van badkamer tot verfijnde details. Alles is voorzien om jouw droomwoning werkelijkheid te maken.
Door gebruik van zonnepanelen, vloerverwarming en een warmtepomp voldoet dit appartement standaard aan de BEN-norm (Bijna Energie Neutraal) en behalen ze een E-peil van 20 of beter! Zo zit je ook op het vlak van energiezuinigheid veilig. Daardoor profiteer je het hele jaar door van een aangenaam binnenklimaat én levenslang van lage energiefacturen. Doordat dit appartement een e-peil van 20 of beter heeft, geniet u van een vermindering van 50% op de onroerende voorheffing gedurende 5 jaar. Dubbele winst dus!
Lindehof – op de hoek van de L. Devillersstraat en Steenweg naar Alsemberg – is dé plek die eigentijds, comfortabel én betaalbaar wonen in je buurt mogelijk maakt. Alles is dichtbij: winkels, scholen, openbaar vervoer én het prachtige Hallerbos of het provinciedomein van Huizingen.
Door zowel de locatie, afwerking en energiezuinigheid, is dit appartement perfect geschikt voor eigen bewoning als voor investering.
Het is verplicht een een private binnenstaanplaats bij aan te kopen voor de wagen. Deze prijs schommelt tussen 20.000 en 29.000 EUR. U hebt verder nog de mogelijkheid om een extra binnen staanplaats te kopen voor 24.000 EUR.
Aankoop 6% btw mogelijk onder voorwaarden!
Meer info of een brochure? Mis deze kans niet en maak vandaag nog een afspraak via corentin@igl.immo of +32 (0)2 378 04 44 - www.lindehof.immo
Ben je opzoek naar een eigentijds modern appartement? Dan is het project Lindehof zeker iets voor u! Lindehof is een een toekomstgericht project, gebouwd met hoogstaande en duurzame materialen waardoor je voor een zeer lange tijd gerust bent.
Dit lumineus nieuwbouwappartement met een totale bewoonbare oppervlakte van 109,68m² en is voorzien van twee slaapkamers. Met zijn twee ruime terrassen van 18m² en 7m² is dit appartement perfect voor wie op zoek is naar een comfortabele en zorgeloze woonst.
Bij Lindehof wordt elk appartement afgewerkt naar jouw wensen. Van vloer tot keuken, van badkamer tot verfijnde details. Alles is voorzien om jouw droomwoning werkelijkheid te maken.
Door gebruik van zonnepanelen, vloerverwarming en een warmtepomp voldoet dit appartement standaard aan de BEN-norm (Bijna Energie Neutraal) en behalen ze een E-peil van 20 of beter! Zo zit je ook op het vlak van energiezuinigheid veilig. Daardoor profiteer je het hele jaar door van een aangenaam binnenklimaat én levenslang van lage energiefacturen. Doordat dit appartement een e-peil van 20 of beter heeft, geniet u van een vermindering van 50% op de onroerende voorheffing gedurende 5 jaar. Dubbele winst dus!
Lindehof – op de hoek van de L. Devillersstraat en Steenweg naar Alsemberg – is dé plek die eigentijds, comfortabel én betaalbaar wonen in je buurt mogelijk maakt. Alles is dichtbij: winkels, scholen, openbaar vervoer én het prachtige Hallerbos of het provinciedomein van Huizingen.
Door zowel de locatie, afwerking en energiezuinigheid, is dit appartement perfect geschikt voor eigen bewoning als voor investering.
Het is verplicht een een private binnenstaanplaats bij aan te kopen voor de wagen. Deze prijs schommelt tussen 20.000 en 29.000 EUR. U hebt verder nog de mogelijkheid om een extra binnen staanplaats te kopen voor 24.000 EUR.
Aankoop 6% btw mogelijk onder voorwaarden!
Meer info of een brochure? Mis deze kans niet en maak vandaag nog een afspraak via corentin@igl.immo of +32 (0)2 378 04 44 - www.lindehof.immo
Gebouw
Type pand
Appartement
Subtype
Appartement
Bewoonbare oppervlakte
110 m²
Terrein
Perceeloppervlakte
109,68 m²
Meest recente bestemming terrein
Woongebied
Oriëntatie tuin
Noordoost
Indeling
Aantal slaapkamers
2
Oppervlakte slaapkamers
14,57 m²; 13,69 m²
Aantal badkamers
1
Comfort
Lift
Ja
Aansluiting elektriciteit
Ja
Aansluiting riolering
Ja
Energie
Unieke code EPC
In opmaa-k - Nieuwb-ou-w
E-peil
0
Zonnepanelen
Ja
Ruimtelijke ordening
Verkavelingsvergunning
Ja
Voorkooprecht
Nee
G(ebouw)-score
A (geen overstroming gemodelleerd)
Locatie
Steenweg naar Alsemberg 902 0101, 1654 Huizingen360.000 EUR
Locatie
Steenweg naar Alsemberg 902 0101
1654 Huizingen













