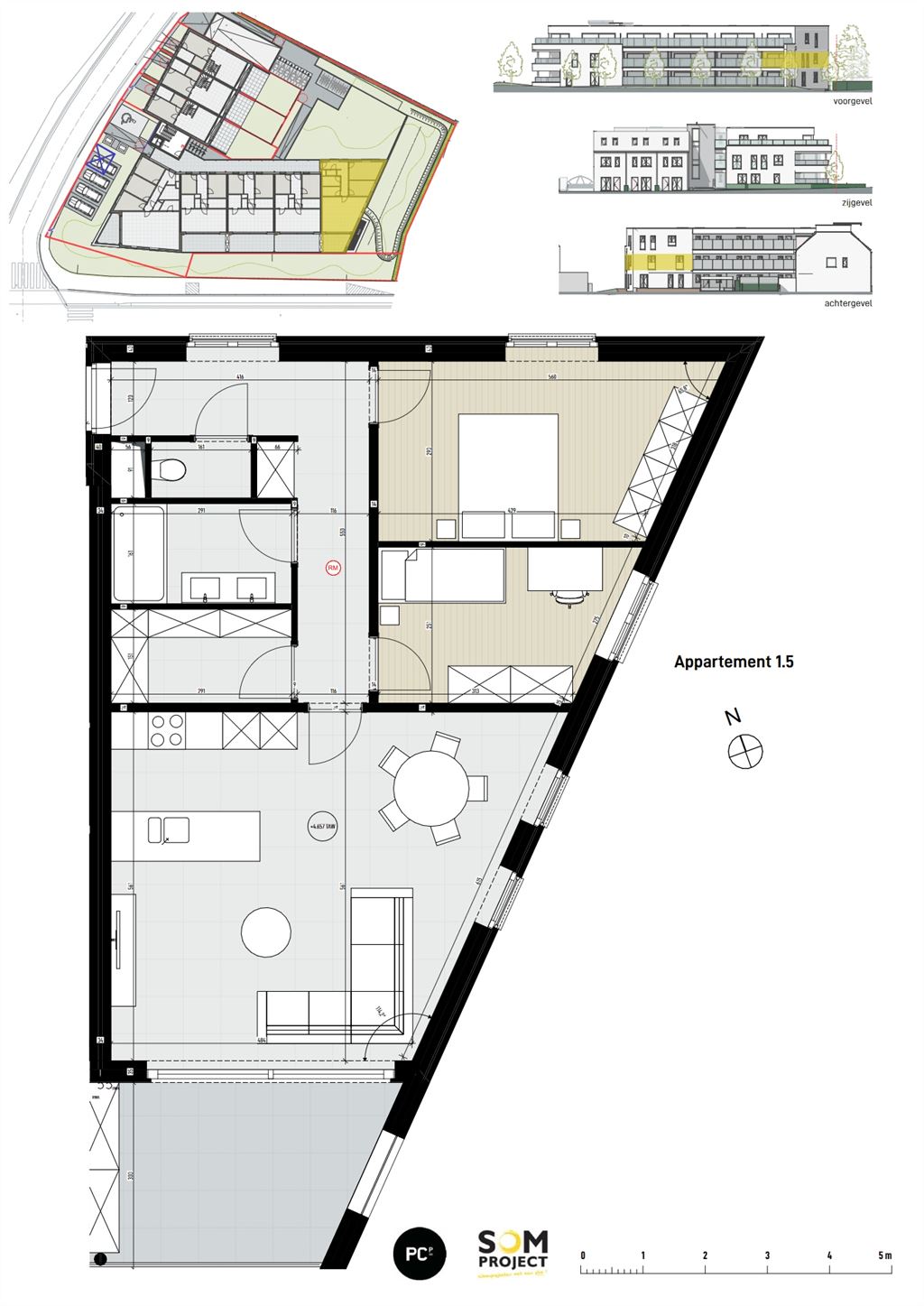
Appartement te koop in Korbeek-Lo met 2 slaapkamers
€ 420.000
Is dit haalbaar voor jou?Omschrijving
Appartement 3
Ben je op zoek naar een groot appartement met zuidgericht terras?
Dan ben je hier aan het juiste adres! Dit appartement is gelegen op de eerste verdieping en is voorzien van twee ruime slaapkamers, geïnstalleerde badkamer en grote leefkeuken.
Met zijn bewoonbare oppervlakte van 96m² heb je voldoende ruimte om te ontspannen.
De ligging is ook top: nabij bakkers, winkels, warenhuizen... allemaal op wandelafstand van het appartement.
Graag meer info? Contacteer ons vandaag nog via 016 15 31 15 of info@immolivit.be
Financieel
Verkoop onder btw-stelsel
Ja
Kadastrale info
0084/00F002
Gebouw
Type pand
Appartement
Bewoonbare oppervlakte
96,2 m²
Staat pand
Nieuwbouw
Terrein
Meest recente bestemming terrein
Woongebied
Indeling
Aantal slaapkamers
2
Aantal badkamers
1
Oppervlakte woonkamer
34,21 m²
Comfort
Lift
Ja
Energie
Type beglazing
Dubbel glas
Keuringsattest elektriciteit
Ja, conform
Type verwarming
Warmtepomp
Ruimtelijke ordening
Kadastraal plan
Ja
Dagvaarding
Geen rechterlijke herstelmaatregel of bestuurlijke maatregel opgelegd
Bouwvergunning
Ja
Locatie
Kasteelstraat 2 1.5, 3360 Korbeek-Lo420.000 EUR
Locatie
Kasteelstraat 2 1.5
3360 Korbeek-Lo














