Grond te koop in Merelbeke
€ 280.000
Is dit haalbaar voor jou?Omschrijving
Hundelgemsesteenweg 1242 - Bosstraat
Unieke kans: 5 villa loten te koop in Merelbeke-Melle, waarvan 3 loten aan 6% BTW-tarief.
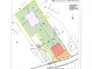
Op zoek naar de perfecte plek voor jouw droomvilla? Wij bieden 5 bouwgronden aan op de Hundelgemsesteenweg 1242, met een adembenemend zicht op de Makegemse Bossen en een ideale zuidelijke oriëntatie. Ideaal gelegen in een rustige, groene omgeving nabij de N444, met vlotte toegang tot Merelbeke en Melle en op korte afstand van lokale voorzieningen.
Loten 1, 2 en 3 genieten van het verlaagde 6% btw-tarief (afbraak en wederopbouw), terwijl loten 4 en 5 onder het standaard 21% btw-tarief vallen, met oppervlaktes variërend van ± 694 m² tot ± 1.056 m².
Bouw jouw woning volledig naar wens: van ruwbouw wind- en waterdicht tot volledig sleutel-op-de-deur afgewerkt, binnen jouw budget. Neem vandaag nog contact op voor meer info.
Op zoek naar de perfecte plek voor jouw droomvilla? Wij bieden 5 bouwgronden aan op de Hundelgemsesteenweg 1242, met een adembenemend zicht op de Makegemse Bossen en een ideale zuidelijke oriëntatie. Ideaal gelegen in een rustige, groene omgeving nabij de N444, met vlotte toegang tot Merelbeke en Melle en op korte afstand van lokale voorzieningen.
Loten 1, 2 en 3 genieten van het verlaagde 6% btw-tarief (afbraak en wederopbouw), terwijl loten 4 en 5 onder het standaard 21% btw-tarief vallen, met oppervlaktes variërend van ± 694 m² tot ± 1.056 m².
Bouw jouw woning volledig naar wens: van ruwbouw wind- en waterdicht tot volledig sleutel-op-de-deur afgewerkt, binnen jouw budget. Neem vandaag nog contact op voor meer info.
Gebouw
Type pand
Grond
Subtype
Bouwgrond
Nieuw gebouw
Nee
Terrein
Perceeloppervlakte
750 m²
Breedte perceel
15 m
Diepte perceel
50 m
Indeling
Aantal slaapkamers
0
Aantal badkamers
0
Aantal toiletten
0
Comfort
Lift
Nee
Energie
E-peil
0
Keuringsattest elektriciteit
Ja, niet conform
Locatie
Hundelgemsesteenweg 1242, 9820 Merelbeke280.000 EUR
Locatie
Hundelgemsesteenweg 1242
9820 Merelbeke













