Description
Unfortunately, the description is not available in the selected language.
Te huur:
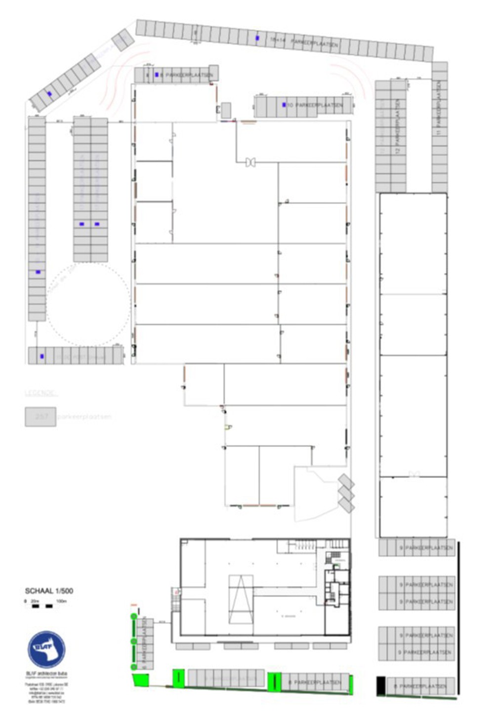
Moderne magazijnen met kantoorruimte op de Gentse Steenweg 117 in Lokeren. Uitgerust met elektrische poorten, brandbeveiliging, camerabewaking, sanitair, verwarming en 2 parkeerplaatsen. Inclusief onderhoud van gemeenschappelijke delen, groene zones en toegangspoorten.
Ondernemingen met volgende activiteiten worden niet toegelaten op de site: textielverwerking of -productie, autohandel en/of -stockage, evenals opslag van autobanden.
Beschikbaar vanaf 01.07.2025
Moderne magazijnen met kantoorruimte op de Gentse Steenweg 117 in Lokeren. Uitgerust met elektrische poorten, brandbeveiliging, camerabewaking, sanitair, verwarming en 2 parkeerplaatsen. Inclusief onderhoud van gemeenschappelijke delen, groene zones en toegangspoorten.
Ondernemingen met volgende activiteiten worden niet toegelaten op de site: textielverwerking of -productie, autohandel en/of -stockage, evenals opslag van autobanden.
Beschikbaar vanaf 01.07.2025
Building
Type of property
Commercial
Subtype
Warehouse without office
Surface
244 m²














