Description
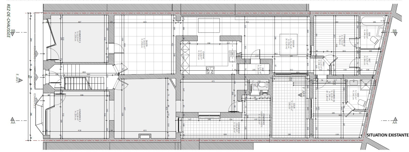
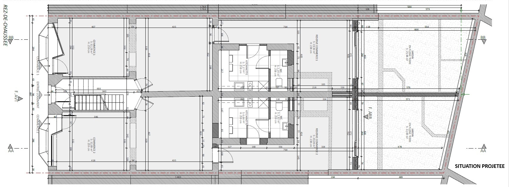
Gelegen in het hart van de commerciële wijk van Jette, op een steenworp van het Spiegelplein, biedt dit handelspand van 90m² (na werken! zie vergunning!) een uiterst interessante locatie met veel passage. Bovendien beschikt het goed over een private kelder, ideaal als extra opslagruimte.
Belangrijkste kenmerken:
-
Centrale ligging, nabij winkels en openbaar vervoer
-
Koer/achterplaats -> tuin (zie vergunning)
-
Privékelder
-
Fietsenstalling
-
Afzonderlijke vuilnislokaal
-
Lage gemeenschappelijke kosten, momenteel geen syndicus
- Elektriciteitsinstallatie niet conform
- Verhuurd : 1150 €
De basisakte evenals de kosten van de landmeter zijn ten laste van de koper, op basis van de hem toegekende quotiteiten. Overeenkomstig de stedenbouwkundige vergunning afgeleverd op 13/08/2025, verbindt de koper zich ertoe de voorziene werken uit te voeren op eigen kosten en ontslaat hij de verkoper van elke verplichting of schadevergoeding hieraan verbonden. Na uitvoering van de werken overeenkomstig deze vergunning zal de totale commerciële oppervlakte ongeveer 90 m² bedragen.
Contacteer uw ERA-makelaar:
Benoit PIRLOTTE
benoit.pirlotte@era.be
02 460 10 12













