Scoop: House for sale in Vilvoorde with 3 bedrooms
€594,000
Is this affordable for you?Description
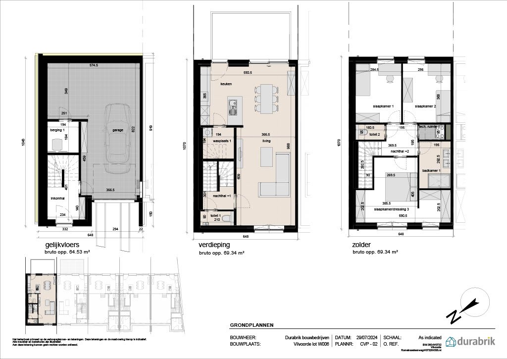
Zeer energiezuinige halfopen woning op topligging
Deze halfopen bebouwing is uitstekend gelegen op een knooppunt van invalswegen en fietsautostrades naar onze hoofdstad. De woning heeft een modern uitzicht: een beige genuanceerde gevelsteen met donkergrijs buitenschrijnwerk en een plat dak vol zonnepanelen. Het perceel meet 187 m², de woonopp. bedraagt 203 m². Kelderverdieping met inkomhal en zeer grote garage met extra ruimte voor het plaatsen van meerdere fietsen. Er is ook een technische ruimte voorzien. Erboven op het gelijkvloers zien we de leefruimte met open keuken, de hal met trap en de wasplaats. De verdieping telt 3 slpks, een badkamer incl. douche en meubel met dubbele lavabo. Apart toilet.
Alle ruimtes boven de kelderverdieping zijn voorzien van vloerverwarming. Deze wordt aangedreven door een ecologische warmtepomp en zonnepanelen waardoor we een negatief E-peil bereiken van maar liefst -10. Naast de woning is er een buitentrap die de tuin en de achterkant van de woning gemakkelijk bereikbaar maakt.
De afwerking van de woning kan je bepalen onder professionele begeleiding van onze interieurvormgevers. De woning wordt instapklaar opgeleverd. De zuidoost gerichte tuin wordt afgeboord met draadafsluiting en een tuinpoort. Bij Durabrik ben je zeker van een vaste prijs. Contacteer onze bouwadviseur via 09 280 60 60 of mail naar info@durabrik.be.
Wist je dat het btw-tarief van 6% permanent verlengd werd? Vraag ons naar de voorwaarden!
* Beelden en oppervlaktes zijn indicatief.
Alle ruimtes boven de kelderverdieping zijn voorzien van vloerverwarming. Deze wordt aangedreven door een ecologische warmtepomp en zonnepanelen waardoor we een negatief E-peil bereiken van maar liefst -10. Naast de woning is er een buitentrap die de tuin en de achterkant van de woning gemakkelijk bereikbaar maakt.
De afwerking van de woning kan je bepalen onder professionele begeleiding van onze interieurvormgevers. De woning wordt instapklaar opgeleverd. De zuidoost gerichte tuin wordt afgeboord met draadafsluiting en een tuinpoort. Bij Durabrik ben je zeker van een vaste prijs. Contacteer onze bouwadviseur via 09 280 60 60 of mail naar info@durabrik.be.
Wist je dat het btw-tarief van 6% permanent verlengd werd? Vraag ons naar de voorwaarden!
* Beelden en oppervlaktes zijn indicatief.
Financial
Sales under VAT system
Yes
Building
Type of property
House
Subtype
House
Surface
202 m²
Terrain
Plot size
179 m²
Most recent urban destination
Residential area
Garden
Yes
Layout
Number of bedrooms
3
Number of bathrooms
1
Number of toilets
0
Comfort
Lift
No
Electricity connection
Yes
Connection sewerage
Yes
Energy
Solar panels
Yes
Electricity inspection certificate
Yes, not compliant
Floor heating
Yes
Urban planning
Subdivision permit
Yes
G-score (building score)
A (no flood modeled)
P-score (parcel score)
C (small risk of flooding under current climate)
Location
Romeinsesteenweg, 1800 Vilvoorde594.000 EUR
Location
Romeinsesteenweg
1800 Vilvoorde















