Scoop: House for sale in Beerzel with 4 bedrooms
€492,200
Is this affordable for you?Description
Open bebouwing | rustig gelegen nieuwbouwwijk
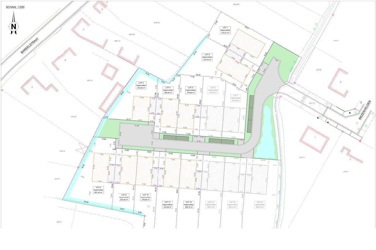
In deze nieuwe doodlopende verkaveling 'Biezenvelden' te Beerzel realiseren we 10 uiterst energiezuinige woningen in een moderne stijl. Deze open woning op lot 1 komt op een mooi perceel van 415m².
GLVLS: inkom, wc, lichtrijke living met zicht op tuin en ingerichte keuken, grote wasplaats en bureauruimte.
1ste VERD.: 4 slaapkamers, aparte wc, badkamer met ligbad, douche en badkamermeubel met dubbele lavabo en technische berging.
De woning beschikt over zonnepanelen, vloerverwarming en warmtepomp. Samen met de regenwaterput van 10.000L voldoet deze woning dus aan alle normen voor de toekomst en bespaar je op je woonkost.
De prijs is excl. btw en kosten.
Download de brochure op onze website https://durabrik.immo/beerzel
Voor meer info bel naar het nummer 09/280 60 60 of mail naar info@durabrik.be
GLVLS: inkom, wc, lichtrijke living met zicht op tuin en ingerichte keuken, grote wasplaats en bureauruimte.
1ste VERD.: 4 slaapkamers, aparte wc, badkamer met ligbad, douche en badkamermeubel met dubbele lavabo en technische berging.
De woning beschikt over zonnepanelen, vloerverwarming en warmtepomp. Samen met de regenwaterput van 10.000L voldoet deze woning dus aan alle normen voor de toekomst en bespaar je op je woonkost.
De prijs is excl. btw en kosten.
Download de brochure op onze website https://durabrik.immo/beerzel
Voor meer info bel naar het nummer 09/280 60 60 of mail naar info@durabrik.be
Financial
Sales under VAT system
Yes
Building
Type of property
House
Subtype
House
Surface
172 m²
Terrain
Plot size
415 m²
Most recent urban destination
Residential area
Garden
Yes
Layout
Number of bedrooms
4
Number of bathrooms
1
Number of toilets
0
Comfort
Lift
No
Electricity connection
Yes
Connection sewerage
Yes
Energy
EPC label
A
E-level
9
Solar panels
Yes
Urban planning
Subdivision permit
Yes
G-score (building score)
A (no flood modeled)
P-score (parcel score)
A (no flood modeled)
Location
Biezenvelden 16, 2580 Beerzel492.200 EUR
Location
Biezenvelden 16
2580 Beerzel
















