House for sale in Tervuren with 3 bedrooms
€537,203
Is this affordable for you?Description
Budget-friendly detached new build house!
This energy-efficient new-build home is equipped with all modern comforts and is particularly a budget-friendly solution for those who want to build on a beautiful plot of 14 acres!
The plot is in a quiet and rural residential area, between the villages of Huldenberg and Duisburg and close to important connecting roads.
The design itself can be fully customized to your preferences and taste (larger, different style, different facade, finishing, extension, ...)
Total price (including land + registration fees, construction + 21% VAT): € 627,515.63.
Would you like more information? Feel free to contact us!
The plot is in a quiet and rural residential area, between the villages of Huldenberg and Duisburg and close to important connecting roads.
The design itself can be fully customized to your preferences and taste (larger, different style, different facade, finishing, extension, ...)
Total price (including land + registration fees, construction + 21% VAT): € 627,515.63.
Would you like more information? Feel free to contact us!
Financial
Availability
Upon delivery
Building
Type of property
House
Subtype
House
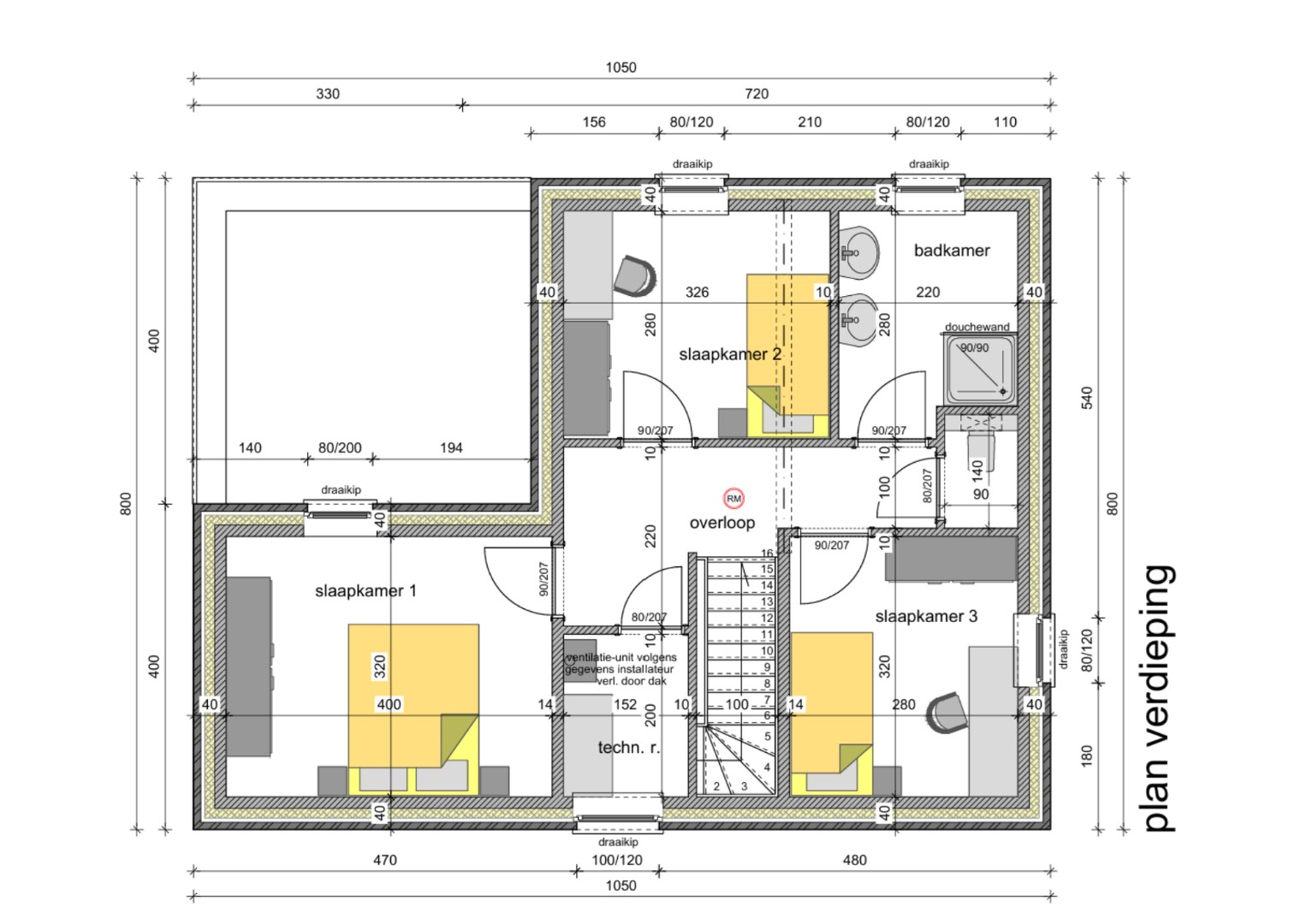
Surface
155 m²
Terrain
Plot size
1.408 m²
Most recent urban destination
Residential area
Garden
Yes
Layout
Number of bedrooms
3
Number of bathrooms
1
Toilet
Yes
Urban planning
Summons
No judicial remedial or administrative measure imposed
Building permit
No
Subdivision permit
No
Location
Veeweidestraat 148, 3080 Tervuren537.203 EUR
Location
Veeweidestraat 148
3080 Tervuren













