Appartement à louer à Malines avec 2 chambres
1 150 €
Description
Appartement
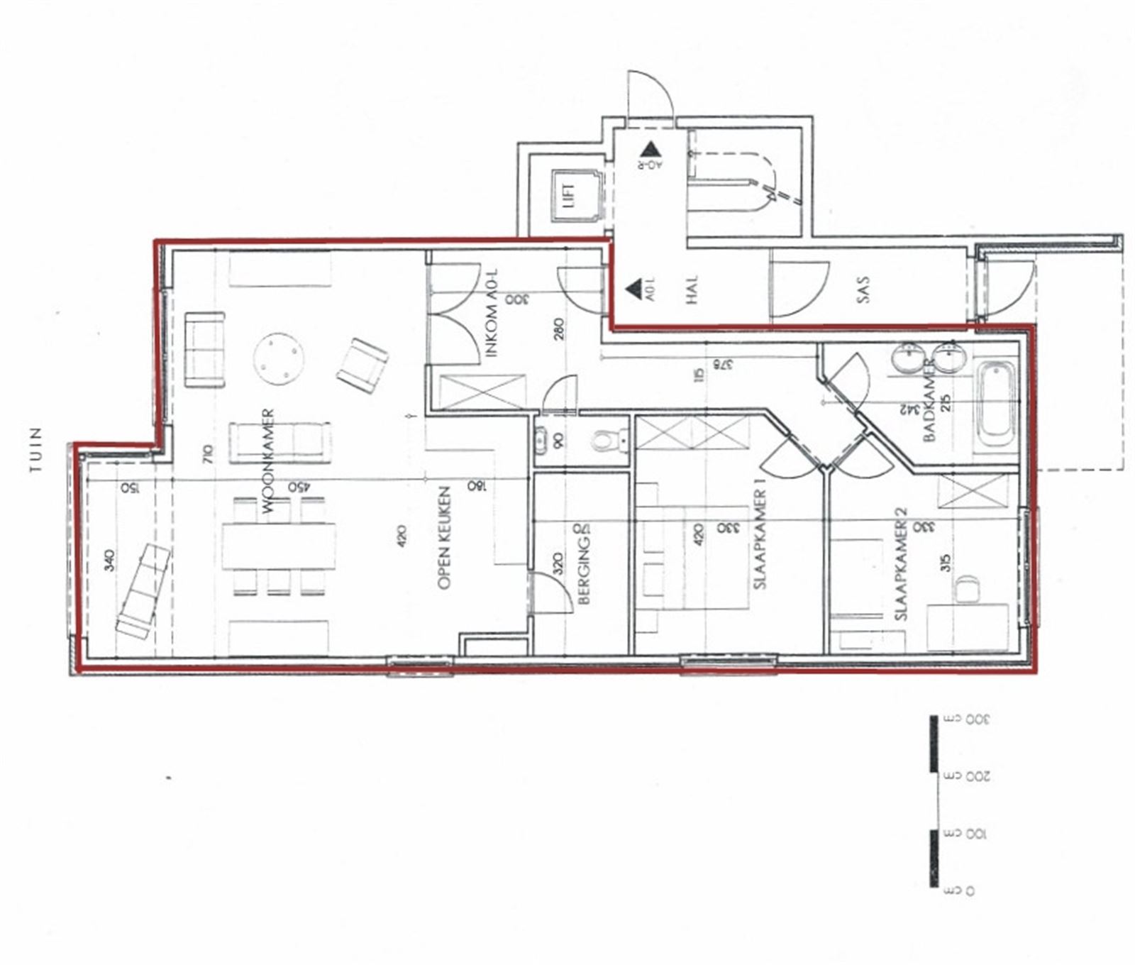
Cet appartement d'angle ensoleillé au rez-de-chaussée avec jardin, garage et rangement en sous-sol est situé près du parc Vrijbroek et du canal de Louvain dans un quartier résidentiel agréable.L'appartement comprend un hall d'entrée avec vestiaire, un séjour spacieux avec cuisine équipée ouverte, un débarras de cuisine, un agréable jardin ensoleillé, 2 chambres à coucher, une salle de bain (double lavabo et baignoire), ainsi que des toilettes séparées.En outre, l'appartement dispose d'une cave.
Finances
Disponible à partir de
01-06-2026
Bâtiment
Type de propriété
Appartement
Surface
114 m²
État du bâtiment
Bon état
Aménagement
Nombre de chambres
2
Surface chambres à coucher
10,5 m²; 14 m²
Nombre de salles de bain
1
Confort
Ascenseur
Oui
Raccordement au gaz
Oui
Raccordement à l’eau
Oui
Énergie
Score PEB (kWh/(m² an))
189
Classe énergétique
B
Numéro du rapport PEB
20231025-0003022324-RES-1















