Description
Malheureusement, la description n'est pas disponible dans la langue sélectionnée.
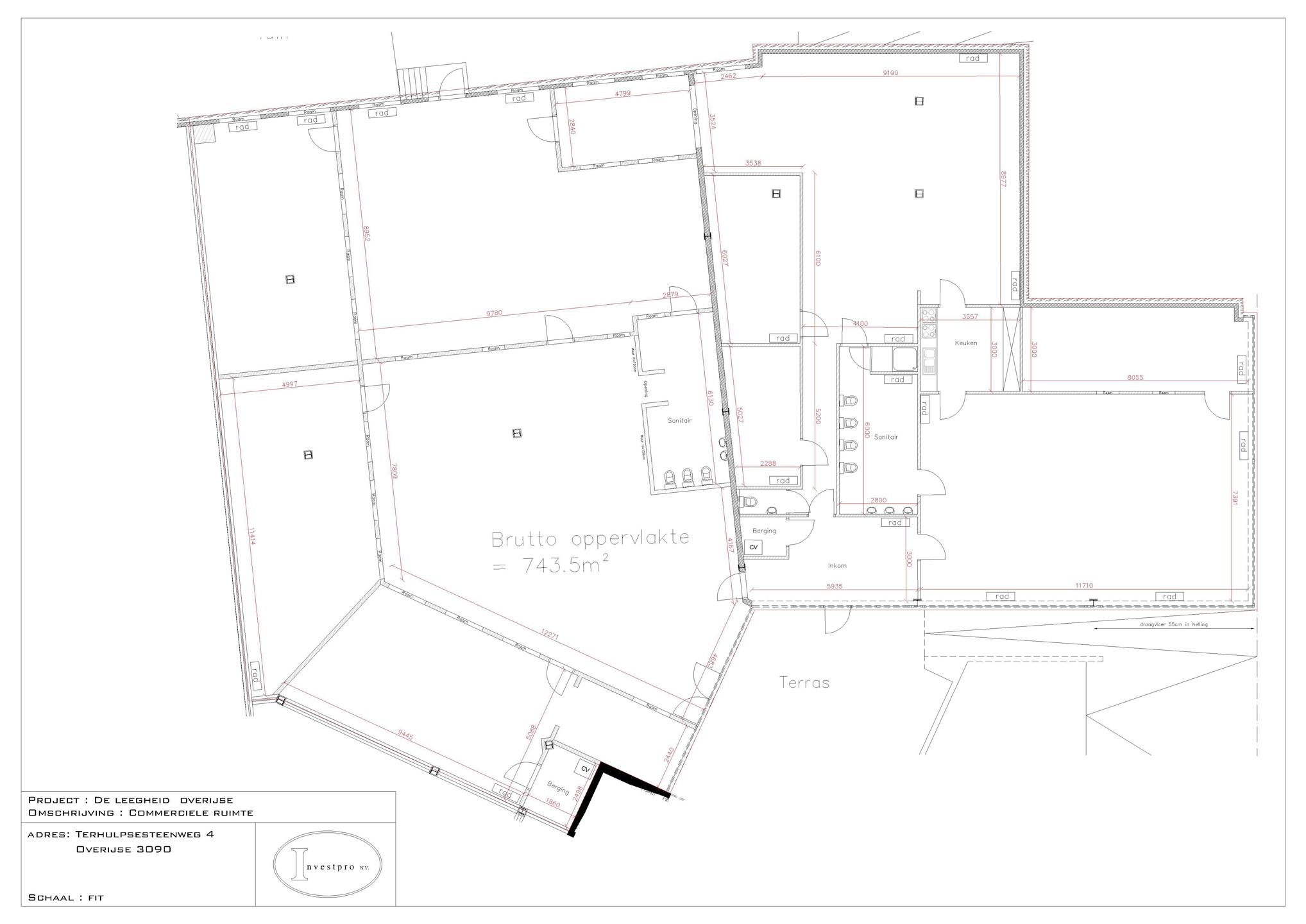
Zeer mooie Kantoorruimte van 745.5 m² voorheen als kinderdagverblijf. Verschillende grote ruimtes met veel lichtinval door grote raampartijen aan de voorzijde en ramen aan de achterzijde, ideaal als kantoorruimte gelegen aan een zeer rustige zijweg aan de IJse en vlak bij het belangrijkste kruispunt van Overijse. Zeer goede verbinding, in de buurt van de snelweg en op wandelafstand van het centrum en station. Er is een buitenruimte voorzien van 51m² aan de voorzijde en een tuintje grenzend aan een mooie binnentuin. In de ondergrondse keldergarage is er 1 autostaanplaats. De ruimte is onmiddellijk beschikbaar. Eventuele aanpassing aan indeling zijn bespreekbaar.
Gemeenschappelijke kosten 650,00 euro/maand.
Gemeenschappelijke kosten 650,00 euro/maand.
Finances
Ventes sous régime de TVA
Oui
Bâtiment
Type de propriété
Commercial
Sous-type
Bureau
Surface
743 m²
Terrain
Orientation jardin
Sud-ouest
Lieu
Transports en commun à proximité
Oui
Distance des transports en commun
50 m
Autoroute à proximité
Oui
Aménagement
Toilette
Oui
Surface terrasse
52 m²
Orientation terrasse
Nord-est
Confort
Raccordement au gaz
Oui
Raccordement aux égouts
Oui
Raccordement à l’eau
Oui
Énergie
Double vitrage
Oui
Type de chauffage
Individuel
Type de chauffage
Gaz
Urbanisme
Destination bâtiment
Bureaux
Intimation en justice
Non
Condamner
Non












