Description
Local commercial moderne à louer à Casco (m²)
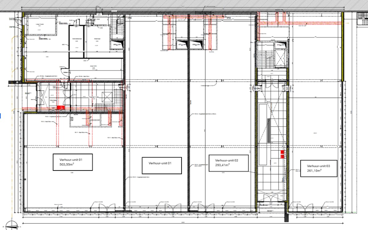
Cet espace commercial attrayant, situé à un emplacement idéal dans la Stationsstraat à Oudenburg, offre une excellente opportunité pour diverses activités commerciales. D'une superficie totale de m², l'espace dispose d'une surface au sol considérable qui peut être aménagée et aménagée de manière flexible en fonction des souhaits et des besoins spécifiques du futur utilisateur.L'espace sera livré dans un état de coque. Cela signifie que la structure de base est présente, mais que toute la finition intérieure, y compris les sols, les murs, les plafonds, les installations sanitaires, l'électricité et tout chauffage et climatisation, doit encore être réalisée par le locataire. Cela offre l'opportunité unique de concevoir l'espace entièrement selon vos goûts et vos exigences fonctionnelles, ce qui permet de le coordonner parfaitement avec l'activité commerciale prévue.La classe de résistance au feu B du bâtiment indique qu'il est conforme à des réglementations spécifiques en matière de sécurité incendie.L'achèvement prévu en juin 2025 offre une disponibilité anticipée de cet espace commercial intéressant.Potentiel :Cet espace commercial fictif offre une toile vierge pour un large éventail d'objectifs commerciaux.Détails :Aménagement flexible possible grâce à la livraison de la coque.Bien situé dans une rue commerçante.Conforme à la classe de résistance au feu B.Disponible dans les plus brefs délais.Intéressé ?Vous recherchez un bien immobilier commercial composé de locaux commerciaux à louer à Oostkamp ? Contactez-nous pour plus d'informations ou pour une visite sur place à l'adresse bo.maertens@dewaele.com ou au 0472 18 64 92.
Bâtiment
Type de propriété
Commercial
Sous-type
Commercial
Type de bâtiments
Fermé
Aménagement
Nombre de chambres
0
Nombre de salles de bain
0
Nombre de toilettes
0
Urbanisme
Permis de construire
Oui
Droit de préemption
Non
Patrimoine protégé
Non














