Description
Malheureusement, la description n'est pas disponible dans la langue sélectionnée.
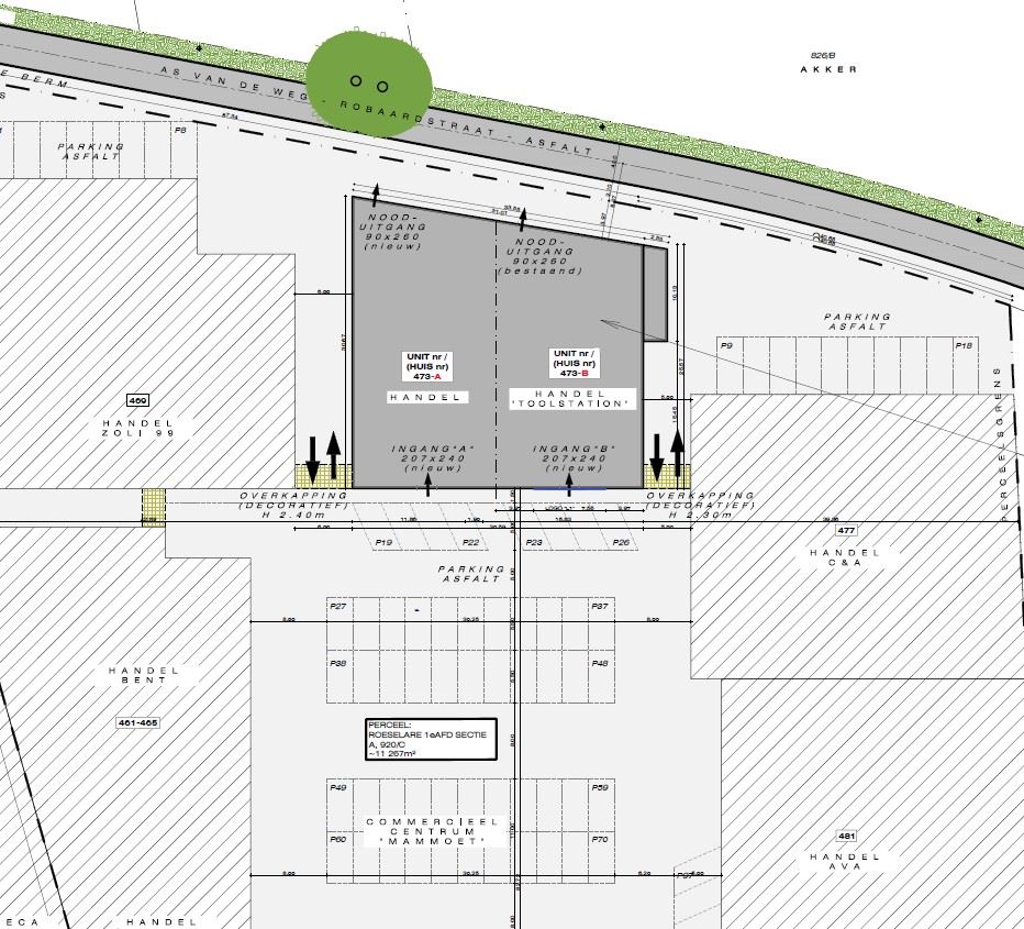
Dit betreft een top gelegen baanlocatie met ruime parking.
(Voorheen Toolstation). De oppervlakte van het pand bedraagt 416 m². De huurvoorwaarden zijn 135 euro/m², zijnde 56.160 EURO per jaar + onroerende voorheffing + (+ ca. 2.000 EUR/jaar vergoeding voor parking + 1.000 euro per jaar voor het gebruik van de totem).De aanvraag voor socio-economische vergunning is ten laste van de huurder.
De Mammoet II geniet reeds van de aanwezigheid van Toolstation, C&A, AVA, Bent Shoes en Zoli99. De Mammoet II is gemakkelijk bereikbaar en beschikt over uitgebreide parkeermogelijkheden.
** Verkoop van voeding en verkoop van goederen voor de persoonsuitrusting zijn uitgesloten op basis van het ruimtelijk uitvoeringsplan.
Het is optioneel mogelijk om het ernaast gelegen pand bij te huren, linker gedeelte (473).
Benieuwd naar dit bedrijfsvastgoed te huur regio Roeselare?
Contacteer info@immodelestre.be of 054 33 62 52. www.immodelestre.be
(Voorheen Toolstation). De oppervlakte van het pand bedraagt 416 m². De huurvoorwaarden zijn 135 euro/m², zijnde 56.160 EURO per jaar + onroerende voorheffing + (+ ca. 2.000 EUR/jaar vergoeding voor parking + 1.000 euro per jaar voor het gebruik van de totem).De aanvraag voor socio-economische vergunning is ten laste van de huurder.
De Mammoet II geniet reeds van de aanwezigheid van Toolstation, C&A, AVA, Bent Shoes en Zoli99. De Mammoet II is gemakkelijk bereikbaar en beschikt over uitgebreide parkeermogelijkheden.
** Verkoop van voeding en verkoop van goederen voor de persoonsuitrusting zijn uitgesloten op basis van het ruimtelijk uitvoeringsplan.
Het is optioneel mogelijk om het ernaast gelegen pand bij te huren, linker gedeelte (473).
Benieuwd naar dit bedrijfsvastgoed te huur regio Roeselare?
Contacteer info@immodelestre.be of 054 33 62 52. www.immodelestre.be
Finances
Disponibilité
Immédiatement
Bâtiment
Type de propriété
Commercial
Sous-type
Commercial
Nouveau bâtiment
Non
Aménagement
Nombre de chambres
0
Nombre de salles de bain
0
Nombre de toilettes
0
Confort
Ascenseur
Non
Raccordement électrique
Oui
Raccordement à l’eau
Oui
Énergie
Niveau E
0














