Description
Entrepôt polyvalent/propriété commerciale d'environ 1 400 m²
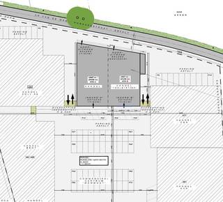
Entrepôt/bâtiment commercial polyvalent d'environ 1 200 m² avec espace de bureau/salle d'exposition associé de 200 m² et parking spacieux situé sur un site commercial à l'intérieur de la Brugsesteenweg à Roulers. Spécifications :- porte sectionnelle pour la livraison- souffleurs à air chaud - hauteur libre de 5,7 m- 3 x 400 V- sanitaires + kitchenetteSitué dans une zone commerciale à l'intérieur de la Brugsesteenweg à Roulers. N'hésitez pas à nous contacter au 051 21 22 23 si vous êtes intéressé par ce bien commercial composé d'un entrepôt polyvalent et/ou d'un local commercial d'une superficie totale de 1 400 m².
Bâtiment
Type de propriété
Commercial
Sous-type
Commercial
Surface construite
1.400 m²
Aménagement
Nombre de chambres
0
Nombre de salles de bain
0
Nombre de toilettes
0














