Scoop: Appartement à vendre à Malines avec 2 chambres
Description
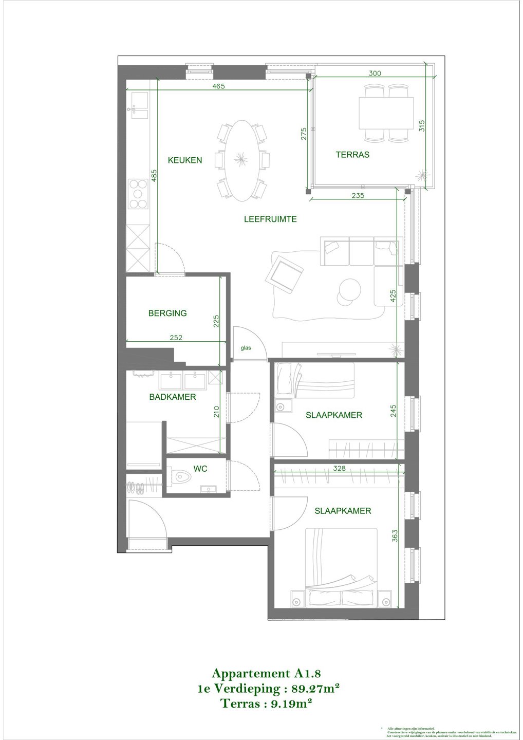
Mooi ruim appartement op de 1ste verdieping met een ruime leefruimte met open keuken en aansluitende berging, 2 slaapkamers, badkamer met douche en dubbele lavabo en apart toilet, mooie inkomhal met plaats voor een ruime vestiairekast en glazen deur naar leefruimte. Het terras grenst aan de leefruimte en biedt u een mooi zicht op een groene gemeenschappelijke tuin.
Het project "Alba" is gelegen net buiten het stadcentrum van Mechelen waar je kan genieten van alle ruste met het comfort van de stad binnen handbereik. De Abeelstraat bevindt zich in Mechelen Zuid, een rustige zijstraat van de Jubellaan. De nabijheid van de E19 -verbinding naar Brussel en Antwerpen- en de tangent binnen de 2 km zorgt voor vlot woon- ,werkverkeer. In de directe omgeving vindt je een ruime keuze aan scholen, buurtwinkels, supermarkten, sportinfrastructuur en horeca. Alles wat je nodig hebt ligt op wandel- en fietsafstand.
In dit groene kader, zal dit project vooral de focus leggen op hedendaagse architectuur en energiezuinigheid.
De verwarming wordt voorzien met een geothermische warmtepomp op zonnepanelen waardoor de stookkosten aanzienlijk lager liggen dan bij een gasketel. Het appartement voldoet aan de zuinigste energienormen. In combinatie met de zonnepanelen, hoogwaardige thermische en akoestische isolatie en duurzame technieken steven we naar een zo laagmogelijke EPB-waarde (BEN) om te genieten van een zeer betaalbaar wooncomfort.
De makkelijk toegankelijke keldergarage voorzien van een ruime fietsenstalling en handige bergingen, biedt aan iedereen de mogelijkheid een autostaanplaats aan te kopen.
Wees er snel bij, neem contact met ons en vraag naar onze uitgebreide brochure. Hier koop je volledig aan 6% BTW ipv 21%
Finances
Bâtiment
Terrain
Lieu
Aménagement
Confort
Énergie
Urbanisme
Localité
Abeelstraat 118 0103, 2800 Malines347.000 EUR
Localité
Abeelstraat 118 0103
2800 Malines















