Maison à vendre à Harelbeke avec 4 chambres
Description
Maison
Maison nouvellement construite dans une oasis verte à vendre !
LOT 1
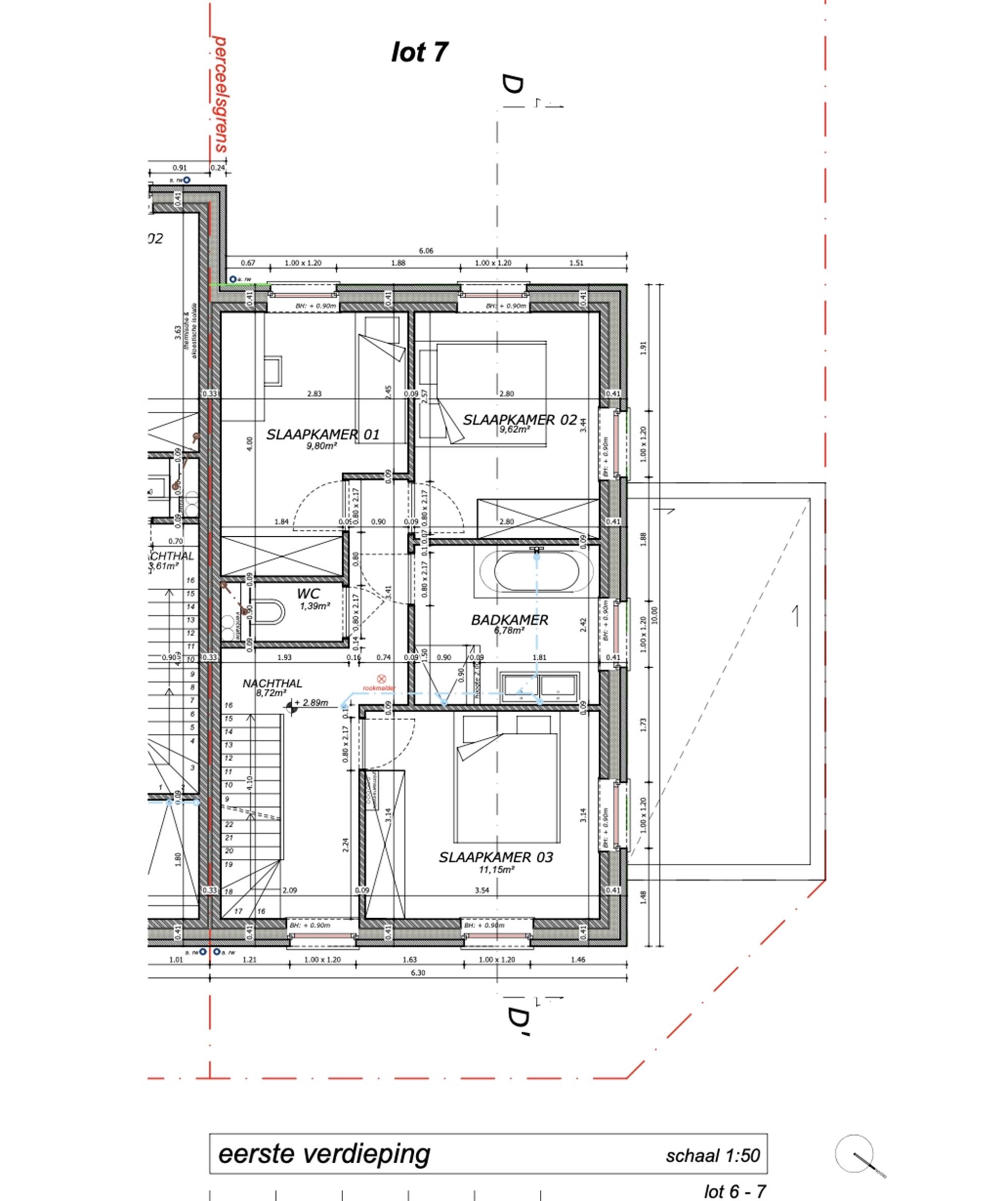
Disposition : hall d'entrée avec toilettes invités et vestiaire, espace de vie ouvert et spacieux avec espace bureau/jeu, coin salon et à l'arrière de la maison il y a une cuisine ouverte avec îlot, salle de stockage. Au premier étage, il y a 3 chambres, des toilettes séparées et une salle de bains avec douche et baignoire. Un escalier fixe mène au grenier aménageable (46m2). Le jardin dispose d'un abri de jardin, sortie par un chemin piétonnier surplombant l'oasis de verdure.
TROEVEN : epc favorable, choix et composition de la salle de bain et de la cuisine peuvent être changés selon votre goût ! CHAUFFAGE PAR LE SOL, PANNEAUX SOLAIRES, et situation tranquille !
(Prix d'achat total incluant les frais, la TVA et le raccordement : 479 088 euros)
Si vous souhaitez plus d'informations, envoyez un mail à info@property-vastgoed.be
Finances
Bâtiment
Terrain
Aménagement
Énergie
Urbanisme
Localité
Herpelsstraat, 8530 Harelbeke353.000 EUR
Localité
Herpelsstraat
8530 Harelbeke














