Maison à vendre à Zwevezele avec 3 chambres
431 700 €
Est-ce faisable pour vous?Description
Malheureusement, la description n'est pas disponible dans la langue sélectionnée.
In het residentieel nieuwbouwproject 'Reynaert' in Zwevezele wordt deze duurzame halfopen projectwoning gecreëerd in een landelijke bouwstijl. De woning is optimaal georiënteerd met een zuidgerichte tuin op een perceel van 327 m². Er is een eigen oprit om de wagen te zetten en er is de mogelijkheid om een carport te voorzien.
Je komt binnen in een open leefruimte met aansluitend een volledig uitgeruste keuken met keukeneiland. Via de keuken heb je meteen toegang tot de aansluitende wasplaats/berging, wat zorgt voor heel wat gebruiksgemak.
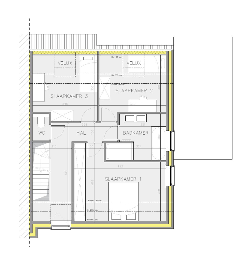
Op de eerste verdieping zijn er 3 slaapkamers, een badkamer met dubbele wastafel, douche én bad. De vaste trap leidt naar de open zolderruimte, waar je de mogelijkheid krijgt om een extra kamer te creëren. In de woning zijn 2 aparte toiletten voorzien, één op het gelijkvloers en één op het verdiep.
Na aankoop werken wij het interieur van deze woning nog verder af volgens jouw wensen en smaak. Realiseer zo je droomwoning in alle comfort.
De woning is duurzaam met een voorziene geothermische warmtepomp en vloerverwarming die ervoor zorgen dat de woning in de winter verwarmd wordt en in de zomer op een energiezuinige manier passief afkoelt.
Deze prijs is exclusief kosten en btw, bekijk de transparante ALL-IN prijs voor een volledig afgewerkte en instapklare woning, inclusief alle kosten (notariskosten, aansluitkosten, verkooprecht en btw) op onze website: www.dumobil.be/nl/woonprojecten/projecten/zwevezele-reynaert Of vraag vrijblijvend informatie via onze bouwadviseur Sam Borrey: sam@dumobil.be | 0483 210 133.
Je komt binnen in een open leefruimte met aansluitend een volledig uitgeruste keuken met keukeneiland. Via de keuken heb je meteen toegang tot de aansluitende wasplaats/berging, wat zorgt voor heel wat gebruiksgemak.
Op de eerste verdieping zijn er 3 slaapkamers, een badkamer met dubbele wastafel, douche én bad. De vaste trap leidt naar de open zolderruimte, waar je de mogelijkheid krijgt om een extra kamer te creëren. In de woning zijn 2 aparte toiletten voorzien, één op het gelijkvloers en één op het verdiep.
Na aankoop werken wij het interieur van deze woning nog verder af volgens jouw wensen en smaak. Realiseer zo je droomwoning in alle comfort.
De woning is duurzaam met een voorziene geothermische warmtepomp en vloerverwarming die ervoor zorgen dat de woning in de winter verwarmd wordt en in de zomer op een energiezuinige manier passief afkoelt.
Deze prijs is exclusief kosten en btw, bekijk de transparante ALL-IN prijs voor een volledig afgewerkte en instapklare woning, inclusief alle kosten (notariskosten, aansluitkosten, verkooprecht en btw) op onze website: www.dumobil.be/nl/woonprojecten/projecten/zwevezele-reynaert Of vraag vrijblijvend informatie via onze bouwadviseur Sam Borrey: sam@dumobil.be | 0483 210 133.
Finances
Immobilier d’investissement
Oui
Immeuble de rapport
Oui
Bâtiment
Type de propriété
Maison
Sous-type
Maison
Surface
182 m²
Terrain
Surface de la parcelle
327 m²
Jardin
Oui
Orientation jardin
Sud
Aménagement
Nombre de chambres
3
Nombre de salles de bain
1
Nombre de toilettes
2
Confort
Ascenseur
Non
Raccordement électrique
Oui
Raccordement au gaz
Oui
Énergie
Classe énergétique
A
Niveau E
15
Panneaux solaires
Oui
Urbanisme
Permis de lotissement
Oui
Localité
Waterjufferstraat 46, 8750 Zwevezele431.700 EUR
Localité
Waterjufferstraat 46
8750 Zwevezele













