Commercial à vendre à Denderleeuw
166 000 €
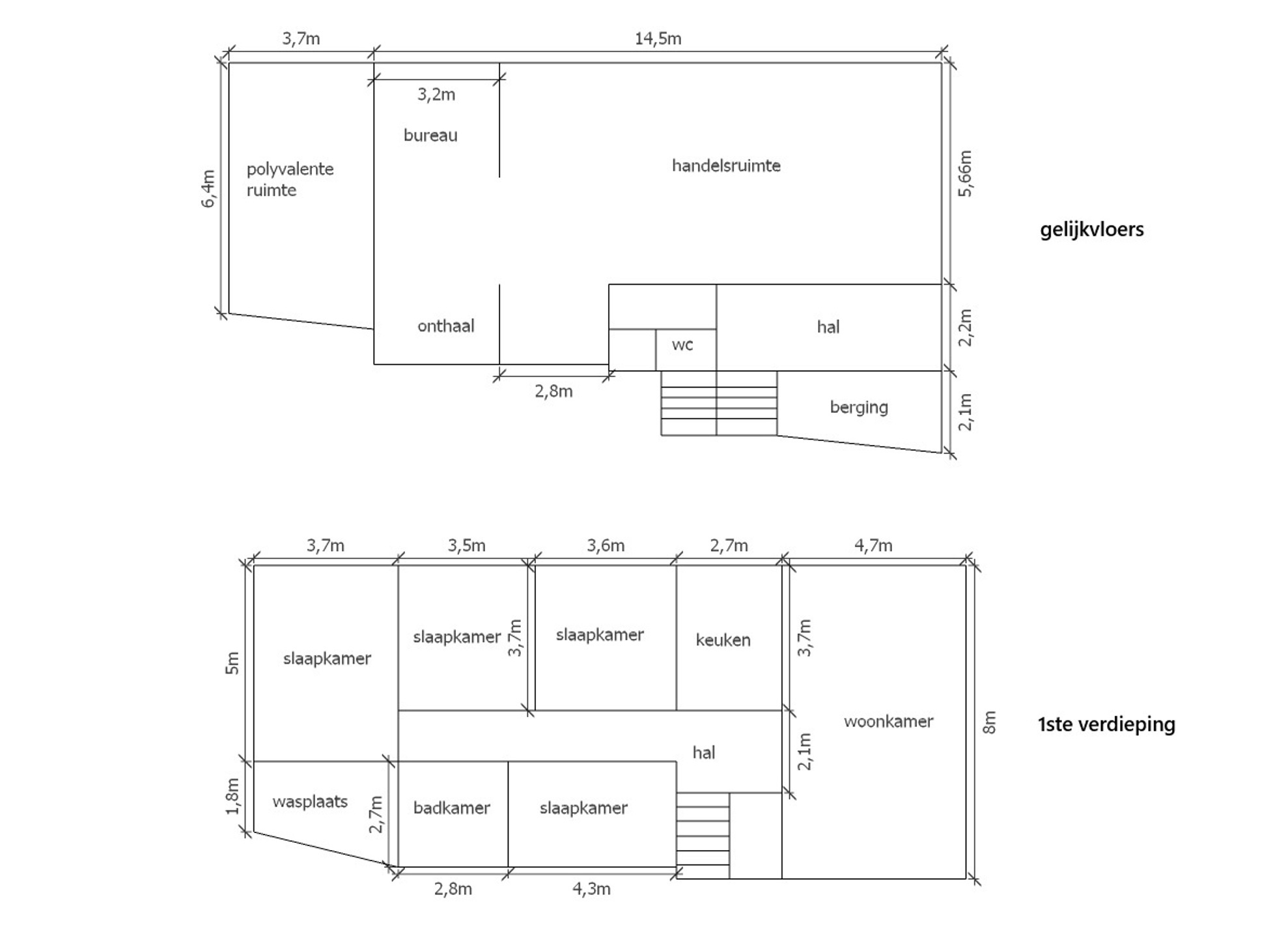
Description
Pour plus d'informations et/ou une visite, contactez Jonas à l'adresse jonas@immotijl.be ou au 0477 17 44 20.
Finances
Ventes sous régime de TVA
Non
Bâtiment
Type de propriété
Commercial
Sous-type
Commerce
Surface
139 m²
Terrain
Affectation urbanistique
Zone résidentielle
Lieu
Environs / quartier
Près de la gare; Central
Transports en commun à proximité
Oui
Autoroute à proximité
Oui
Aménagement
Nombre de toilettes
1
Confort
Raccordement aux égouts
Oui
Raccordement à l’eau
Oui
Énergie
Classe énergétique
F
Numéro du rapport PEB
3598471-KNR-1
Type de chauffage
Individuel
Urbanisme
Intimation en justice
Non
Condamner
Non
Permis de construire
Non














