Maison à vendre à Nederename avec 3 chambres
309 015 €
Est-ce faisable pour vous?Description
Malheureusement, la description n'est pas disponible dans la langue sélectionnée.
TE KOOP in Nederename Ohiostraat 124 a ( lot 1 )
Mooie verkaveling voor het bouwen een half - open of open bebouwing nabij het centrum van Nederename.
lot 1 Opp. : +/- 322 m² Prijs grond : 96.600 €
FORMULE WATER- EN WINDDICHT:
- Ruwbouwwerken
- Timmerwerken
- PVC ramen met beglazing kw 1.0
- Dak- & zinkwerken
_________________
= € 212.415 excl. btw
OPTIE AFWERKING:
- Elektriciteit en ventilatie
- Chape -en vloerisolatie
- Pleisterwerken
- Sanitaire werken ( HW toestellen = € 4.000 excl. btw )
- Warmtepomp lucht/water ( Viessmann )
- Bevloering ( HW vloer : 35€/m² HW plinten : 12.50€/lm HW wandtegels : 25€/m² )
- Keukeninstallatie ( HW = € 8.000 excl. btw)
- Binnen schrijnwerk
- Voegwerken
- Blowerdoortest
- Zonnepanelen 8st. ( 435 Wp )
_________________
= € 95.433 excl.btw
WIJ BOUWEN OOK A LA CARTE
Opties zijn mogelijk tot net voor " Normale Bewoonbaarheid" (volgens aannemingsovereenkomst)
Informeer naar onze interessante HUISRUIL-FORMULE
zie ook : WWW.SPEYBROECK.BE
Bel 0473 300 700 of GRATIS 0800 15 700
Mooie verkaveling voor het bouwen een half - open of open bebouwing nabij het centrum van Nederename.
lot 1 Opp. : +/- 322 m² Prijs grond : 96.600 €
FORMULE WATER- EN WINDDICHT:
- Ruwbouwwerken
- Timmerwerken
- PVC ramen met beglazing kw 1.0
- Dak- & zinkwerken
_________________
= € 212.415 excl. btw
OPTIE AFWERKING:
- Elektriciteit en ventilatie
- Chape -en vloerisolatie
- Pleisterwerken
- Sanitaire werken ( HW toestellen = € 4.000 excl. btw )
- Warmtepomp lucht/water ( Viessmann )
- Bevloering ( HW vloer : 35€/m² HW plinten : 12.50€/lm HW wandtegels : 25€/m² )
- Keukeninstallatie ( HW = € 8.000 excl. btw)
- Binnen schrijnwerk
- Voegwerken
- Blowerdoortest
- Zonnepanelen 8st. ( 435 Wp )
_________________
= € 95.433 excl.btw
WIJ BOUWEN OOK A LA CARTE
Opties zijn mogelijk tot net voor " Normale Bewoonbaarheid" (volgens aannemingsovereenkomst)
Informeer naar onze interessante HUISRUIL-FORMULE
zie ook : WWW.SPEYBROECK.BE
Bel 0473 300 700 of GRATIS 0800 15 700
Finances
Ventes sous régime de TVA
Oui
Valeur construction
212.415 €
Valeur du terrain
96.600 €
Bâtiment
Type de propriété
Maison
Sous-type
Maison
Nouveau bâtiment
Oui
Terrain
Surface de la parcelle
322 m²
Aménagement
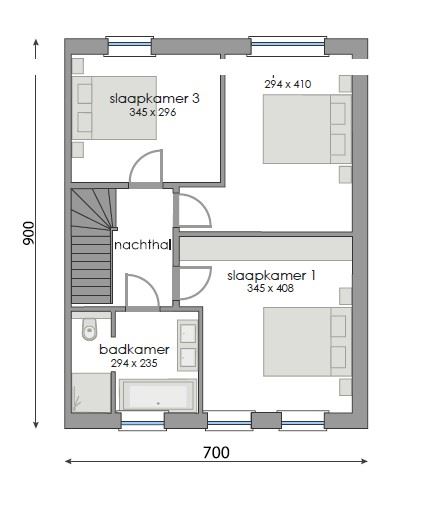
Nombre de chambres
3
Nombre de salles de bain
1
Type de cuisine
Cuisine finie
Confort
Ascenseur
Non
Énergie
Niveau E
15
Panneaux solaires
Oui
Type de vitrage
Double vitrage
Localité
Ohiostraat 124 a, 9700 Nederename309.015 EUR
Localité
Ohiostraat 124 a
9700 Nederename












