Maison à vendre à Evergem avec 3 chambres
455 000 €
Est-ce faisable pour vous?Description
Malheureusement, la description n'est pas disponible dans la langue sélectionnée.
Deze moderne en praktische nieuwbouwwoning ligt op een zeer goede ligging te Evergem en ligt op een ideaal ZUIDgericht perceel ! Deze woning is ideaal voor wie zoekt naar een prachtige nieuwbouw met alle comfort op een zeer strategische ligging ! De ruimtes zijn meer dan logisch en er werd gekozen voor warme, tijdloze & smaakvolle materialen !
Troeven:
- Halfopen bebouwing op een ideaal perceel van 314m² - ZUIDgericht;
- Volledig afgewerkt - NIEUWBOUW EERSTE BEWONING !
- TOPLIGGING te Evergem !
- E-peil 0 - mede door de vooruitstrevende energievoorzieningen !
- Verwarming via warmtepomp (vloerverwarming met aparte thermostaten);
- Aanwezigheid zonnepanelen (5.400Wp) + THUISBATTERIJ (5kW) !!
- Ventilatiesysteem + domotica + inbouw spots;
- Op maat gemaakte OPEN KEUKEN (incl. toestellen);
- PRACHTIGE BADKAMER met bad & inloopdouche;
- 2 toiletten (beneden en boven);
- 3 ruime slaapkamers;
- Inpandige garage;
- Regenwaterput (7.500L);
- Prijs is excl. 21% BTW (constructie) en registratierechten op de grond.
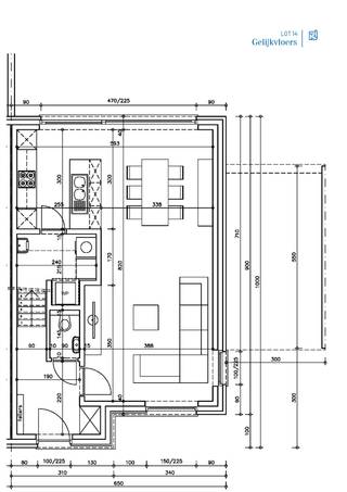
Indeling: inkom, apart toilet, leefruimte met open keuken en de inpandige garage met wasplaats.
1ste verdieping: nachthal, apart toilet, 3 slaapkamers en de badkamer met bad & douche.
+ de aangename tuin met zonneterras.
+ de praktische oprit.
ABSOLUTE AANRADER !
Meer info of een bezoek ter plaatse? Bel WIJSvastgoed op +32 9 395 80 10 !
Troeven:
- Halfopen bebouwing op een ideaal perceel van 314m² - ZUIDgericht;
- Volledig afgewerkt - NIEUWBOUW EERSTE BEWONING !
- TOPLIGGING te Evergem !
- E-peil 0 - mede door de vooruitstrevende energievoorzieningen !
- Verwarming via warmtepomp (vloerverwarming met aparte thermostaten);
- Aanwezigheid zonnepanelen (5.400Wp) + THUISBATTERIJ (5kW) !!
- Ventilatiesysteem + domotica + inbouw spots;
- Op maat gemaakte OPEN KEUKEN (incl. toestellen);
- PRACHTIGE BADKAMER met bad & inloopdouche;
- 2 toiletten (beneden en boven);
- 3 ruime slaapkamers;
- Inpandige garage;
- Regenwaterput (7.500L);
- Prijs is excl. 21% BTW (constructie) en registratierechten op de grond.
Indeling: inkom, apart toilet, leefruimte met open keuken en de inpandige garage met wasplaats.
1ste verdieping: nachthal, apart toilet, 3 slaapkamers en de badkamer met bad & douche.
+ de aangename tuin met zonneterras.
+ de praktische oprit.
ABSOLUTE AANRADER !
Meer info of een bezoek ter plaatse? Bel WIJSvastgoed op +32 9 395 80 10 !
Finances
Disponibilité
À l’acte
Bâtiment
Type de propriété
Maison
Sous-type
Maison
Surface
166 m²
Terrain
Surface de la parcelle
314 m²
Affectation urbanistique
Zone résidentielle
Jardin
Oui
Lieu
Transports en commun à proximité
Oui
Autoroute à proximité
Oui
Ecole à proximité
Oui
Aménagement
Nombre de chambres
3
Nombre de salles de bain
1
Toilette
Oui
Confort
Raccordement électrique
Oui
Raccordement aux égouts
Oui
Raccordement à l’eau
Oui
Énergie
Classe énergétique
A
Panneaux solaires
Oui
Type de vitrage
Double vitrage
Urbanisme
Intimation en justice
Pas de correction juridique ou mesure administrative imposée
Permis de construire
Oui
Permis de lotissement
Oui
Localité
Langerbrugsestraat 78, 9940 Evergem455.000 EUR
Localité
Langerbrugsestraat 78
9940 Evergem














