Land for sale in Westerlo
€235,000
Is this affordable for you?Description
Unfortunately, the description is not available in the selected language.
Deze aantrekkelijke vergunde bouwgrond is gelegen in Heultje, een rustige en groene deelgemeente van Westerlo, en heeft een oppervlakte van 5a 06ca. Het perceel is bestemd voor open bebouwing, ideaal voor wie vrijstaand en ruim wil wonen in een aangename omgeving.
De ligging is een absolute troef: Rustig en residentieel, maar met een vlotte verbinding naar Antwerpen, Aarschot en Hasselt. De autosnelweg is snel bereikbaar, terwijl u toch geniet van een groene woonomgeving. Bovendien bevinden scholen, winkels, sportfaciliteiten en andere voorzieningen zich in de nabije omgeving.
Belangrijkste kenmerken:
Geschikt voor open bebouwing
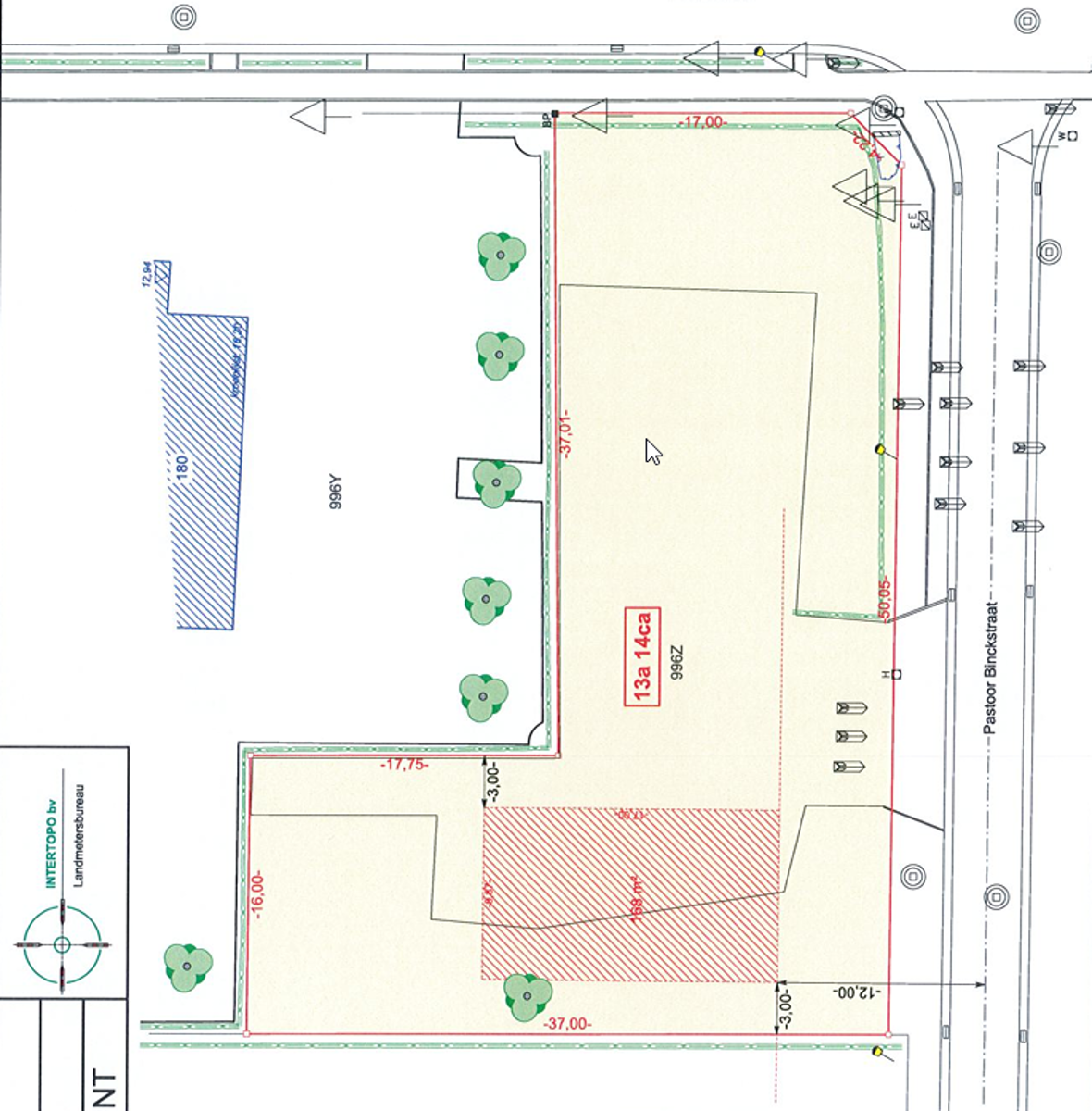
Perceeloppervlakte: 13a 14ca
Bouwbreedte: ca. 9.87 m
Bouwdiepte gelijkvloers: 17 m
Diepte grond: 37m
Vergunde verkaveling
Stedenbouwkundige info:
Woongebied – Vergunning verleend – Verkavelingsvergunning – Geen dagvaarding – Geen voorkooprecht
Een ideale bouwgrond voor wie rustig en vrijstaand wil wonen zonder in te boeten aan bereikbaarheid en comfort.
📞 Bel ons op 014/95.37.50
📧 Mail naar secretariaat@degroot-celen.be
De ligging is een absolute troef: Rustig en residentieel, maar met een vlotte verbinding naar Antwerpen, Aarschot en Hasselt. De autosnelweg is snel bereikbaar, terwijl u toch geniet van een groene woonomgeving. Bovendien bevinden scholen, winkels, sportfaciliteiten en andere voorzieningen zich in de nabije omgeving.
Belangrijkste kenmerken:
Geschikt voor open bebouwing
Perceeloppervlakte: 13a 14ca
Bouwbreedte: ca. 9.87 m
Bouwdiepte gelijkvloers: 17 m
Diepte grond: 37m
Vergunde verkaveling
Stedenbouwkundige info:
Woongebied – Vergunning verleend – Verkavelingsvergunning – Geen dagvaarding – Geen voorkooprecht
Een ideale bouwgrond voor wie rustig en vrijstaand wil wonen zonder in te boeten aan bereikbaarheid en comfort.
📞 Bel ons op 014/95.37.50
📧 Mail naar secretariaat@degroot-celen.be
Financial
Sales under VAT system
No
Building
Type of property
Plot
Subtype
Plot
Terrain
Plot size
1.314 m²
Most recent urban destination
Residential area
Plot depth
35,8 m
Location
Surroundings / neighbourhood
Rural; Quiet
Public transport nearby
Yes
Motorway nearby
Yes
Comfort
Connection sewerage
Yes
Urban planning
Summons
No
Convict
No
Building permit
No
Location
Pastoor Binckstraat 4, 2260 WesterloIs this affordable for you?
Minimal personal contribution
-EUR
Monthly payments
-EUR/month
Prefer a tailor-made proposal?
Tell us more about your project and your personal situation and KBC will calculate your personal interest rate. You will receive immediate feedback on whether your loan is feasible and you can complete your application completely digitally. Even if you are not a KBC customer.
















