Land for sale in Beerse
€255,000
Is this affordable for you?Description
Unfortunately, the description is not available in the selected language.
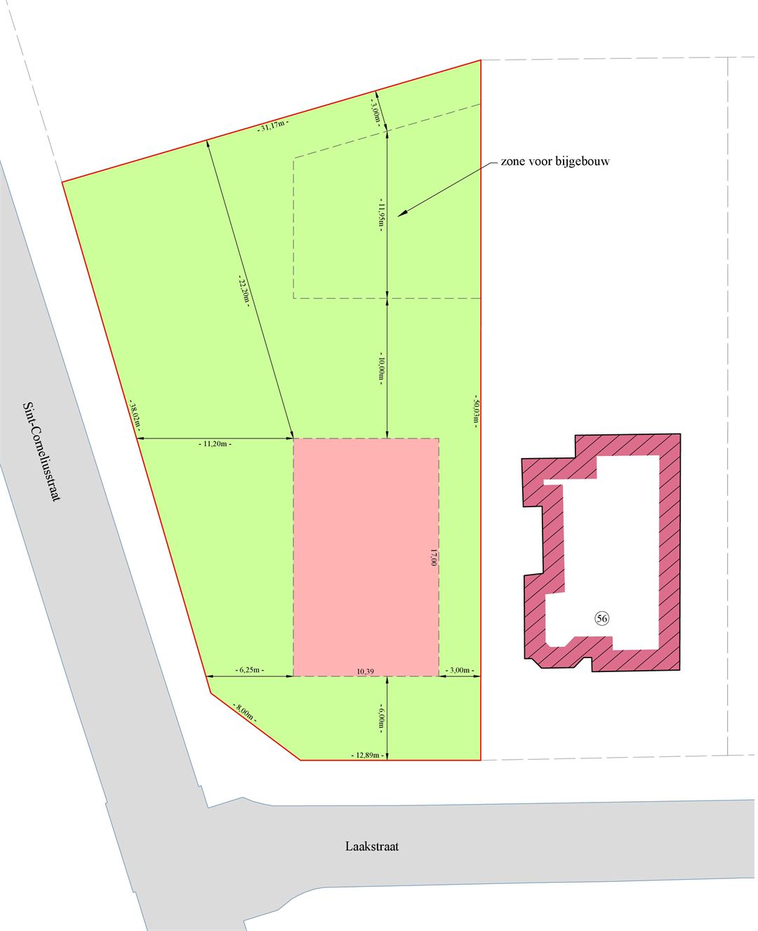
Dit ruime perceel bouwgrond van 1106m² ligt op de hoek van de Laakstraat en de Sint-Corneliusstraat.
Door de grote perceelsoppervlakte in combinatie met het uitzicht over de achterliggende weide en de hoekligging ervaart men een vrij en ruimtelijk gevoel op het perceel.
Qua ligging bevinden het dorpscentrum van Beerse, de snelweg E34, Janssen Pharmaceutica, openbaar vervoer, scholen, ... zich op erg korte afstand. De meeste voorzieningen zijn binnen wandel of fietsafstand gelegen.
Het perceel heeft een mooie breedte van 19,6m op de bouwlijn en een royale diepte van ong. 50m.
Indien de ruime bouwzone voor de woning volledig ingenomen wordt (10,39m x 17m), resteert nog een tuinzone van 778m². Deze ligt zowel langs de achterzijde als de linker zijde van de bouwzone, waardoor bezonning werkelijk langs alle kanten tot in de tuin en de woning kan komen.
Kortom een zeer mooi perceel bouwgrond met ruime bouwmogelijkheden.
Bouwvoorschriften op eenvoudig verzoek verkrijgbaar.
Er is geen bouwverplichting. U bouwt wanneer en met wie u wenst.
Alle gebruikelijke nutsvoorzieningen, en riolering, zijn aanwezig in de straat.
Meer info?
Contacteer ARES vastgoed- & landmeetbureau te Beerse.
Door de grote perceelsoppervlakte in combinatie met het uitzicht over de achterliggende weide en de hoekligging ervaart men een vrij en ruimtelijk gevoel op het perceel.
Qua ligging bevinden het dorpscentrum van Beerse, de snelweg E34, Janssen Pharmaceutica, openbaar vervoer, scholen, ... zich op erg korte afstand. De meeste voorzieningen zijn binnen wandel of fietsafstand gelegen.
Het perceel heeft een mooie breedte van 19,6m op de bouwlijn en een royale diepte van ong. 50m.
Indien de ruime bouwzone voor de woning volledig ingenomen wordt (10,39m x 17m), resteert nog een tuinzone van 778m². Deze ligt zowel langs de achterzijde als de linker zijde van de bouwzone, waardoor bezonning werkelijk langs alle kanten tot in de tuin en de woning kan komen.
Kortom een zeer mooi perceel bouwgrond met ruime bouwmogelijkheden.
Bouwvoorschriften op eenvoudig verzoek verkrijgbaar.
Er is geen bouwverplichting. U bouwt wanneer en met wie u wenst.
Alle gebruikelijke nutsvoorzieningen, en riolering, zijn aanwezig in de straat.
Meer info?
Contacteer ARES vastgoed- & landmeetbureau te Beerse.
Building
Type of property
Plot
Subtype
Plot
Constructed area
176,6 m²
Terrain
Plot size
1.106 m²
Most recent urban destination
Residential area
Garden details
mooie zeer ruime tuinzone van 778m2 rondom de bouwzone, met bezonning vanuit het Zuiden, Westen en Oosten
Layout
Number of bedrooms
0
Number of bathrooms
0
Number of toilets
0
Comfort
Lift
No
Energy
E-level
0
Urban planning
Subdivision permit
Yes
Pre-emption right
No
P-score (parcel score)
D (medium flood risk under current climate)
Location
Laakstraat 58, 2340 BeerseIs this affordable for you?
Minimal personal contribution
-EUR
Monthly payments
-EUR/month
Prefer a tailor-made proposal?
Tell us more about your project and your personal situation and KBC will calculate your personal interest rate. You will receive immediate feedback on whether your loan is feasible and you can complete your application completely digitally. Even if you are not a KBC customer.
















