Apartment for sale in Brasschaat with 3 bedrooms
Description
2° VERDIEPING : een appartement aan de rand van het centrum van Brasschaat, de werken van deze prachtige NIEUWBOUW Residentie PARKHOF starten lente 2025.
Kopen aan 6% btw op de constructies is hier mogelijk zowel voor enige/eigen woonst als voor investeerders (15j verhuur). Wij informeren u er graag over.
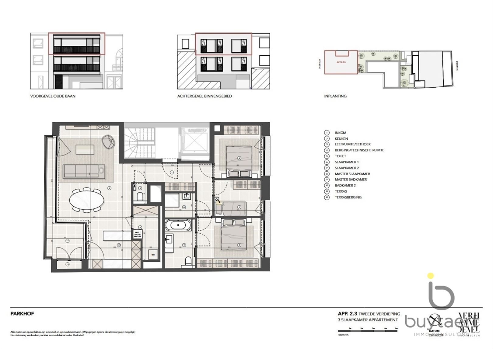
In een modern gebouw met lift bevindt dit appartement zich op de 2de verdieping. Het omvat een inkomhal, gastentoilet, leefruimte met toegang tot het terras (8.5 m²) en voorzien van een ingerichte open keuken met alle nodige toestellen, een berging met aansluiting voor wasmachine en droogkast, drie slaapkamers en twee ingerichte badkamers. De indeling en afwerking wordt met u persoonlijk besproken, hiervoor zijn budgetten voorzien in het lastenboek. De ondergrondse parking zorgt ervoor dat thuiskomen in alle comfort kan gebeuren, voor dit appartement zijn er standaard 3 fietsplaatsen voorzien en ondergrondse autostaanplaatsen zijn apart beschikbaar vanaf €25.000.
Luxueus wonen in een groene omgeving waar duurzaamheid voor opstaat, dit kan binnenkort in het centrum van Brasschaat waar twee aantrekkelijke gebouwen gestalte gaan geven aan het nieuwe woonproject Parkhof. In dit buitengewoon duurzame concept woont en geniet u van alle luxe in een zeer groene woonomgeving en overal dichtbij. Parkhof omvat 10 hoogwaardige appartementen, verdeeld over 2 woongebouwen. Aan de kant van de Bredabaan bevinden zich op het gelijkvloers 1 appartement en een notariaat. Op de verdiepingen komen telkens 2 appartementen met 2 of 3 slaapkamers, terwijl een groot penthouse de volledige dakverdieping inneemt. Aan de kant van de Oude Baan komt er 1 appartement op elk van de twee verdiepingen met 3 slaapkamers. Dat betekent dat u hier uw intrek neemt in een woning met een uitzonderlijke gevelbreedte. Om het u makkelijk te maken, is er een toegankelijke ondergrondse parking voor wagens, eenvoudig bereikbaar via een rolstoelvriendelijke lift.
Qua architectuur legt men de nadruk op moderne, doch tijdloze elegantie en op vlak van duurzaamheid en energieverbruik legt men de lat hier bijzonder hoog dankzij geothermie. Het project hanteert strengere eisen dan wettelijk verplicht en houdt vooral rekening met de normen van morgen. Dit geeft u de zekerheid dat u gedurende lange tijd voldoet aan de regelgeving. Bovendien wordt uw energieverbruik een stuk budgetvriendelijker én blijft uw woning waardevast. Voor de opwekking van warmte en de passieve koeling wordt een beroep gedaan op geothermie. Een BEO-veld, dat gebruik maakt van een ondergronds buizennetwerk, verwarmt uw woning tijdens koudere periodes en koelt ze af als het te warm wordt. Ook op vlak van isolatie is dit vooruitstrevend, dankzij de toepassing van ventilatiesysteem D. Het regenwater wordt slim herbenut voor diverse doeleinden. En als dat nog niet voldoende is, vindt de zon onbelemmerd haar weg naar de appartementen, zo wordt u als bewoner de hele dag overspoeld door natuurlijke licht.
Parkhof bevindt zich aan de rand van het centrum van Brasschaat. In deze prikkelende omgeving vindt u alles wat u nodig hebt voor het leven van elke dag: winkels, supermarkten, scholen, administratie … Maar ook als u iets verder moet zijn, de Bredabaan biedt een vlotte verbinding met de E19. Ondanks de centrale ligging woont u hier in een uitzonderlijk groene omgeving. Recht tegenover de site bevindt zich bijvoorbeeld het Park Van Brasschaat, maar ook het nabijgelegen Peerdsbos leent zich perfect tot onbeperkt genieten in het groen. Brasschaat leeft! Een terrasje doen bij mooi weer, een lunch meepikken op restaurant, shoppen, een theatervoorstelling bijwonen?
Kortom, u bent van harte welkom om de plannen en mogelijkheden te bespreken, de ontspanningsmogelijkheden in de prachtige, klassevolle, comfortabele setting Parkhof zijn alvast legio.
Prijzen zijn vermeld excl. kosten, registratie op de grondwaarde en btw op de constructiewaarde, notariskosten en ereloon, aansluitingskosten nutsvoorziening.
Contacteer ons voor bijkomende info of plan alvast bij ons op kantoor uw afspraak! www.buytaertimmo.be.
Financial
Building
Terrain
Layout
Comfort
Energy
Urban planning
Location
Oude Baan 149, 2930 BrasschaatIs this affordable for you?
Prefer a tailor-made proposal?
Tell us more about your project and your personal situation and KBC will calculate your personal interest rate. You will receive immediate feedback on whether your loan is feasible and you can complete your application completely digitally. Even if you are not a KBC customer.














