Scoop: Apartment for sale in Stabroek with 1 bedroom
€242,400
Is this affordable for you?Description
Unfortunately, the description is not available in the selected language.
Dit nieuwbouwproject is gelegen in het centrum van Stabroek en voorziet 3 appartementen, 3 garageboxen en gem. afvalberging en fietsberging.
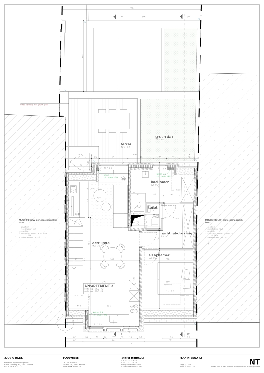
De appartementen omvatten 1 of 2 slaapkamers en zijn bereikbaar via een gemeenschappelijke traphal zonder lift.
Alle appartementen worden volledig afgewerkt met hoogwaardige materialen volgens het bijgevoegd lastenboek. De koper beschikt over ruime budgetten om het appartement naar eigen wens af te werken.
Het gelijkvloers appartementen is voorzien van een zonnige tuin. De andere appartementen beschikken over een terras.
Achteraan zijn er 3 garageboxen aanwezig met toegang langs de Smoutakker en te voet ook langs de Kleine Molenweg.
Er werd gestreefd naar een stijlvolle en moderne vormgeving, die focust op kwaliteitsvol wonen met aandacht voor licht en lucht.
De garageboxen zijn verplicht mee aan te kopen. De prijs bedraagt 24.500,00 EUR excl. btw en registratierechten.
De werken zullen starten vanaf 01/08/2025.
Voor meer informatie, contacteer Lauren van der Poel via 03 568 03 03 of lauren@vastgoed03.be
Plannen en lastenboek kan u op onze website downloaden.
De appartementen omvatten 1 of 2 slaapkamers en zijn bereikbaar via een gemeenschappelijke traphal zonder lift.
Alle appartementen worden volledig afgewerkt met hoogwaardige materialen volgens het bijgevoegd lastenboek. De koper beschikt over ruime budgetten om het appartement naar eigen wens af te werken.
Het gelijkvloers appartementen is voorzien van een zonnige tuin. De andere appartementen beschikken over een terras.
Achteraan zijn er 3 garageboxen aanwezig met toegang langs de Smoutakker en te voet ook langs de Kleine Molenweg.
Er werd gestreefd naar een stijlvolle en moderne vormgeving, die focust op kwaliteitsvol wonen met aandacht voor licht en lucht.
De garageboxen zijn verplicht mee aan te kopen. De prijs bedraagt 24.500,00 EUR excl. btw en registratierechten.
De werken zullen starten vanaf 01/08/2025.
Voor meer informatie, contacteer Lauren van der Poel via 03 568 03 03 of lauren@vastgoed03.be
Plannen en lastenboek kan u op onze website downloaden.
Financial
Sales under VAT system
Yes
Under construction
Yes
Building
Type of property
Apartment
Subtype
Apartment
Surface
75 m²
Location
Public transport nearby
Yes
Motorway nearby
Yes
Layout
Number of bedrooms
1
Bedroom surface
10 m²
Number of bathrooms
1
Comfort
Parlophone
Yes
Videophone
Yes
Lift
No
Energy
EPC label
A
Double glazing
Yes
242.400 EUR
Location
2940 Stabroek
Is this affordable for you?
Minimal personal contribution
-EUR
Monthly payments
-EUR/month
Prefer a tailor-made proposal?
Tell us more about your project and your personal situation and KBC will calculate your personal interest rate. You will receive immediate feedback on whether your loan is feasible and you can complete your application completely digitally. Even if you are not a KBC customer.
















