Land for sale in Sint-Job-In-'T-Goor
€229,000
Is this affordable for you?Description
Unfortunately, the description is not available in the selected language.
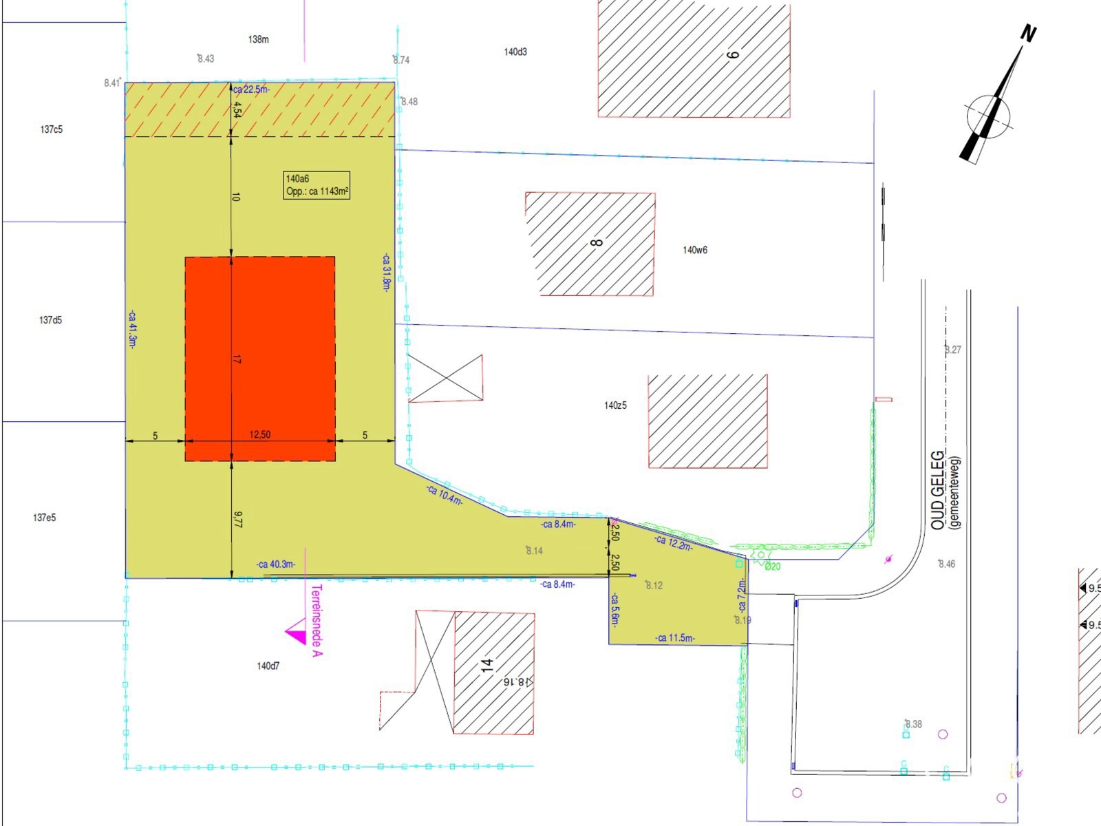
Rustig gelegen achterperceel bouwgrond voor een vrijstaande woning, 1.143m² en 22,5m breed op de bouwlijn, in doodlopende straat nabij het dorp van Sint-Job. Een eigen oprijlaan van ca. 30m lang geeft toegang tot het bouwrijpe perceel.
Bouwmogelijkheden:
Bestuursmaatregelen in het maatregelenregister: nee
Bouwmogelijkheden:
- bovengronds één bouwlaag + plat dak of hellend dak/zadeldak,
- indien er een hellend dak/zadeldak wordt voorzien, dan dient de nok van het dak evenwijdig met de as van de straat (Oud Geleg) te worden geplaatst; zowel veluxramen als ramen in de puntgevels zijn toegelaten - geen dakkapellen,
- maximaal 12,5m bouwbreedte (min. 5m van de zij-perceelsgrenzen) en maximaal 17m bouwdiepte (de maximale bouwzone / gelijkvloerse bouwoppervlakte bedraagt aldus 212,50m²);
- indien gebouwd wordt met een hellend dak/zadeldak kan een extra ruimte op de verdieping bekomen worden van ca. 161m² (9,5 x 17m),
- een kelder is eveneens mogelijk,
- garage of carport dient in de bouwzone te worden voorzien,
- een afzonderlijke bijgebouw/tuinberging van maximaal 40m² is toegelaten.
- Geen bouwverplichting!
Bestuursmaatregelen in het maatregelenregister: nee
Building
Type of property
Plot
Subtype
Plot
Building width
12,5 m
Terrain
Plot size
1.143 m²
Most recent urban destination
Residential area
Street width
7,2 m
Location
Surroundings / neighbourhood
Quiet; Rural
Public transport nearby
Yes
Distance to public transport
750 m
Comfort
Gas connection
Yes
Connection sewerage
Yes
Water connection
Yes
Urban planning
Summons
No judicial remedial or administrative measure imposed
Building permit
No
Subdivision permit
No
Location
Oud Geleg 12, 2960 Sint-Job-In-'T-GoorIs this affordable for you?
Minimal personal contribution
-EUR
Monthly payments
-EUR/month
Prefer a tailor-made proposal?
Tell us more about your project and your personal situation and KBC will calculate your personal interest rate. You will receive immediate feedback on whether your loan is feasible and you can complete your application completely digitally. Even if you are not a KBC customer.














