House for sale in Boutersem with 4 bedrooms
€648,812
Is this affordable for you?Description
Unfortunately, the description is not available in the selected language.
Deze bouwgrond is rustig gelegen in een eenrichtingsstraat te Boutersem, in een groene omgeving. Het perceel biedt de ideale kans om uw droomwoning te realiseren.
Het perceel heeft een prachtig uitzicht het achtergelegend groen, dit in combinatie met de goede oriëntatie maakt dit een ideale plek om te bouwen.
Het perceel ingeschikt voor het bouwen van een open bebouwing.
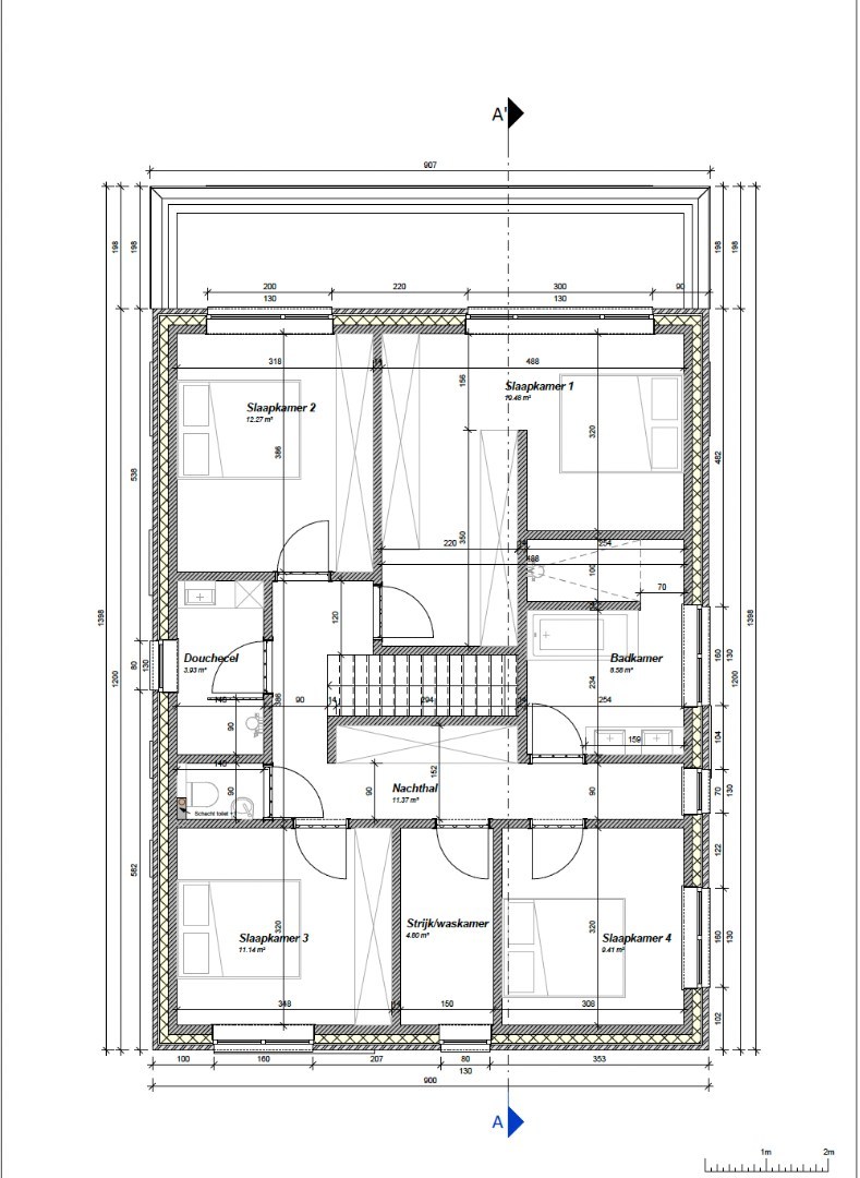
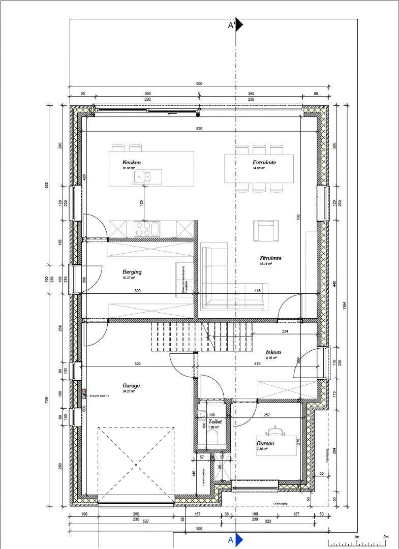
Er werden reeds plannen getekend voor een woning, deze kan u bij de foto's vinden.
De nutsvoorzieningen zijn reeds aanwezig.
Voor meer informatie, contacteer ons gerust!
Het perceel heeft een prachtig uitzicht het achtergelegend groen, dit in combinatie met de goede oriëntatie maakt dit een ideale plek om te bouwen.
Het perceel ingeschikt voor het bouwen van een open bebouwing.
Er werden reeds plannen getekend voor een woning, deze kan u bij de foto's vinden.
De nutsvoorzieningen zijn reeds aanwezig.
Voor meer informatie, contacteer ons gerust!
Financial
Availability
From deed
Building
Type of property
House
Subtype
Villa
Surface
230 m²
Terrain
Plot size
1.092 m²
Most recent urban destination
Residential area
Orientation garden
South
Location
Public transport nearby
Yes
Motorway nearby
Yes
School nearby
Yes
Layout
Number of bedrooms
4
Number of bathrooms
2
Kitchen
Yes
Comfort
Electricity connection
Yes
Energy
Type of glazing
High efficiency glazing
Urban planning
Summons
No judicial remedial or administrative measure imposed
Building permit
No
Subdivision permit
Yes
Location
Moffelstraat 20, 3370 BoutersemIs this affordable for you?
Minimal personal contribution
-EUR
Monthly payments
-EUR/month
Prefer a tailor-made proposal?
Tell us more about your project and your personal situation and KBC will calculate your personal interest rate. You will receive immediate feedback on whether your loan is feasible and you can complete your application completely digitally. Even if you are not a KBC customer.















