Scoop: House for sale in Geetbets with 3 bedrooms
€446,990
Is this affordable for you?Description
Unfortunately, the description is not available in the selected language.
GUNSTIG GELEGEN BOUWGROND VAN 7ARE 2CA VOOR OPEN BEBOUWING
Heb je interesse om te wonen in een mooie omgeving, een rustige straat met enkel plaatselijk verkeer en er is een vlotte verbinding naar omliggende gemeenten Herk-de-Stad, Nieuwerkerken, Sint-Truiden,..
Residentieel gelegen bouwgrond voor een open bebouwing op een perceel van 7are 2ca. met een straatbreedte van 15,31 meter.
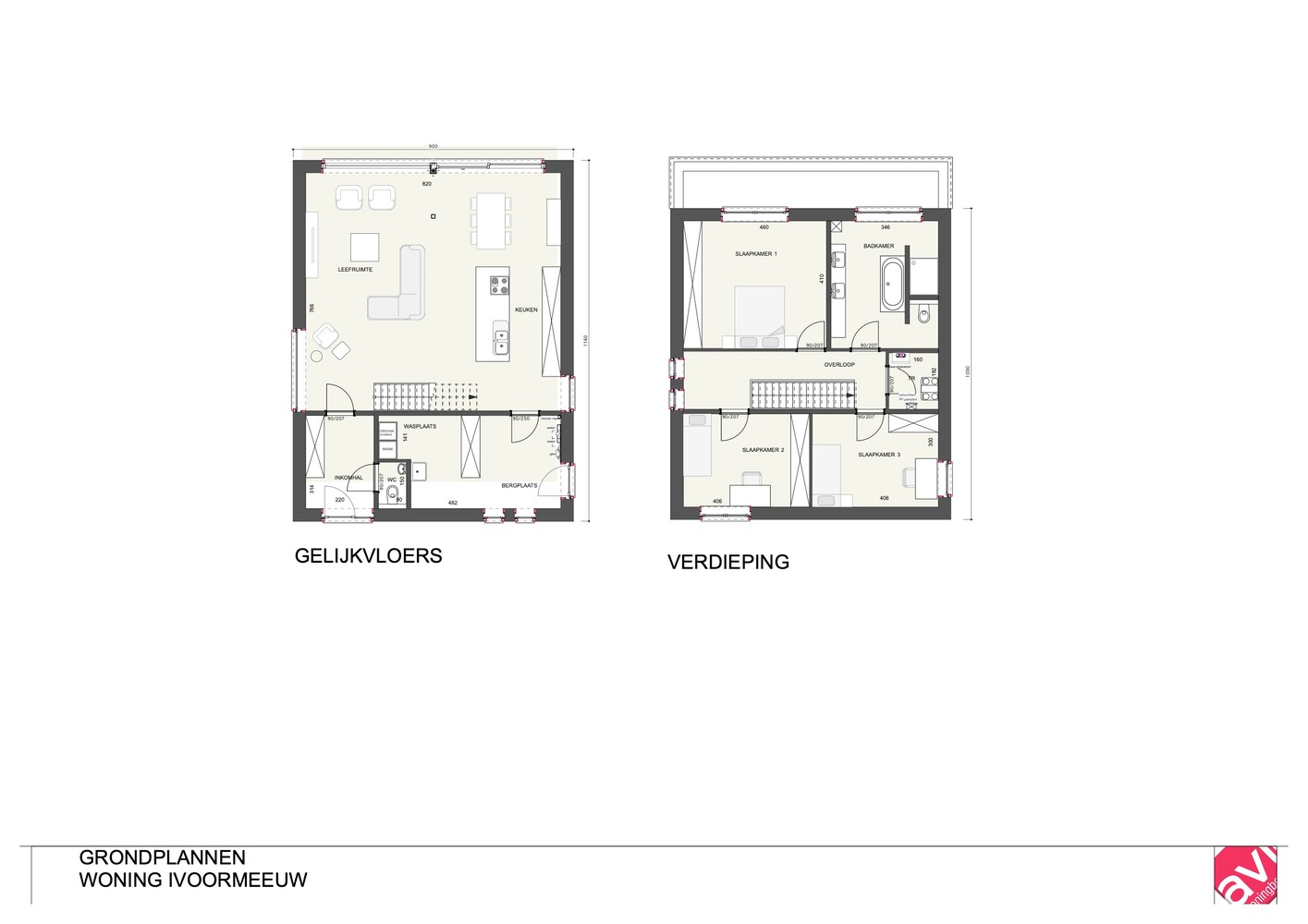
Dan is deze moderne woning (194m2) in de Bergeneindestraat in Geetbets iets voor jou!
Deze woning beschikt over een inkomhal, toilet, zeer grote berging, een ruime en een heel open leefruimte met keuken, en open trap. Boven vinden we 3 ruime slaapkamers, een badkamer en een technische ruimte terug.
Alle keuzes i.v.m. de afwerking van de woning zijn naar wens bespreekbaar. Ook het ontwerp van de woning is slechts een voorstel en kan volledig met jouw op maat uitgewerkt worden.
Dit project wordt aangeboden i.s.m. ERA NOBIS!
Bel bouwadviseur Benjamin Juchmans op 011/450 280 voor een vrijblijvende afspraak.
SLEUTEL-OP-DE-DEURAFWERKING
Ruwbouw winddicht
Sanitaire leidingen (incl. hergebruik regenwater)
Elektriciteit
Vloerverwarming met lucht-water warmtepomp
Pleisterwerken
Isolatiewerken en chape (ook zolder)
EPB berekening
Ventilatiesysteem D+
Afgewerkte keuken
Sanitaire toestellen
Tegelvloeren op het gelijkvloers en in de badkamer
Verf binnendeuren
Voegwerken
Trap in hout
Kostprijs architect en veiligheidscoördinatie inclusief
Zonnepanelen
PRIJS SLEUTEL OP DE DEUR
€ 446 990 excl. alle kosten op grond en constructie
€ 532 990 incl. alle kosten op grond en constructie
Building
Type of property
House
Subtype
House
Constructed area
194 m²
Terrain
Plot size
7,02 m²
Plot width
15,31 m
Layout
Number of bedrooms
3
Number of bathrooms
1
Number of toilets
2
Comfort
Lift
No
Energy
E-level
0
Solar panels
Yes
Floor heating
Yes
Location
Bergeneindestraat 57 a, 3450 GeetbetsIs this affordable for you?
Minimal personal contribution
-EUR
Monthly payments
-EUR/month
Prefer a tailor-made proposal?
Tell us more about your project and your personal situation and KBC will calculate your personal interest rate. You will receive immediate feedback on whether your loan is feasible and you can complete your application completely digitally. Even if you are not a KBC customer.














