Land for sale in Hoeselt
€85,000
Is this affordable for you?Description
Unfortunately, the description is not available in the selected language.
Bezoek dit perceel rechtstreeks op de website van Immo Leroi: https://www.immo-leroi.be/pand/kopen-grond-hoeselt/6760095
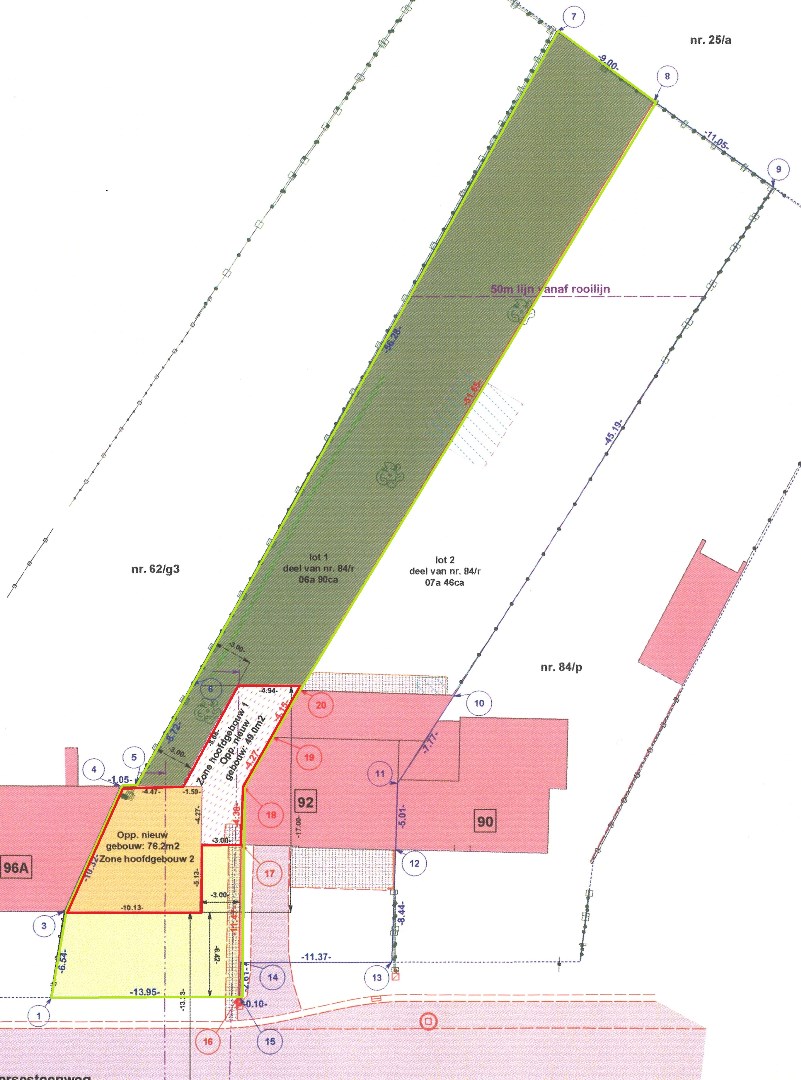
Dit bouwperceel komt in aanmerking voor een zeer ruime woning met 2 volumes, zie het plan hierbij.
Het grondperceel heeft een diepe tuin (in totaal ongeveer 65m en een breedte van 9 meter) met zicht op fruitbomen en weiland.
De oppervlakte bedraagt 6a 90ca, met een breedte aan de straat van 13m95.
De op te richten woning heeft een bouwbreedte van 13m13:
- het hoofdgebouw (gele kleur) heeft een breedte van 10m13 en een bouwdiepte van ongeveer 10 meter met 2 verdiepingen;
- de achterbouw (witte kleur) heeft een bouwdiepte van ongeveer 8 meter met 1 verdieping.
Hierdoor krijgt de woning de uitstraling van een half open bebouwing met meer ruimte voor ramen en lichtinval!
GEEN BOUWVERPLICHTING.
Het perceel is gelegen in woongebied met landelijk karakter, het gedeelte achter de vijftig meter in agrarisch gebied.
INTERESSE? Maak telefonisch een afspraak op het nummer 012 23 00 23 of mail uw vragen aan roland@immo-leroi.be.
Dit bouwperceel komt in aanmerking voor een zeer ruime woning met 2 volumes, zie het plan hierbij.
Het grondperceel heeft een diepe tuin (in totaal ongeveer 65m en een breedte van 9 meter) met zicht op fruitbomen en weiland.
De oppervlakte bedraagt 6a 90ca, met een breedte aan de straat van 13m95.
De op te richten woning heeft een bouwbreedte van 13m13:
- het hoofdgebouw (gele kleur) heeft een breedte van 10m13 en een bouwdiepte van ongeveer 10 meter met 2 verdiepingen;
- de achterbouw (witte kleur) heeft een bouwdiepte van ongeveer 8 meter met 1 verdieping.
Hierdoor krijgt de woning de uitstraling van een half open bebouwing met meer ruimte voor ramen en lichtinval!
GEEN BOUWVERPLICHTING.
Het perceel is gelegen in woongebied met landelijk karakter, het gedeelte achter de vijftig meter in agrarisch gebied.
INTERESSE? Maak telefonisch een afspraak op het nummer 012 23 00 23 of mail uw vragen aan roland@immo-leroi.be.
Financial
Cadastral info
Hoeselt 2 Werm
Availability
From deed
Building
Type of property
Plot
Constructed area
125 m²
State building
Good
Terrain
Plot size
690 m²
Most recent urban destination
Residential area with rural character
Orientation garden
Northwest
Location
Public transport nearby
Yes
Motorway nearby
Yes
School nearby
Yes
Energy
EPC score (kWh/(m² years))
0
EPC label
A
Urban planning
Summons
No judicial remedial or administrative measure imposed
Subdivision permit
Yes
Pre-emption right
No
Location
Tongersesteenweg 92, 3730 HoeseltIs this affordable for you?
Minimal personal contribution
-EUR
Monthly payments
-EUR/month
Prefer a tailor-made proposal?
Tell us more about your project and your personal situation and KBC will calculate your personal interest rate. You will receive immediate feedback on whether your loan is feasible and you can complete your application completely digitally. Even if you are not a KBC customer.















