Land for sale in Fernelmont
€136,500
Is this affordable for you?Description
Unfortunately, the description is not available in the selected language.
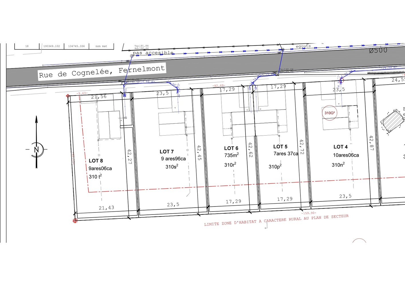
Ce magnifique terrain offre de belles possibilités constructives avec une largeur à front de rue de 21.56 m sur une profondeur de 42.45 m, il est le dernier terrain bâtissable de la zone et est donc en bordure côté Ouest d'une zone agricole.
Les vues tant en façade que côté jardin sont dégagées et verdoyantes. Il est plat et situé le long de la rue de Cognelée avec un léger surplomb par rapport à la voirie qui a été équipée en 2025 au niveau des impétrants et raccordé à l'égouttage public.
Pour mettre au point votre projet (libre de constructeur) vous devrez tenir compte que ce bien se situe en zone d'habitat à caractère rural.
Merci de me joindre au 0470/24 26 79 bernard.pilette@durabrik.be pour en savoir plus
Les vues tant en façade que côté jardin sont dégagées et verdoyantes. Il est plat et situé le long de la rue de Cognelée avec un léger surplomb par rapport à la voirie qui a été équipée en 2025 au niveau des impétrants et raccordé à l'égouttage public.
Pour mettre au point votre projet (libre de constructeur) vous devrez tenir compte que ce bien se situe en zone d'habitat à caractère rural.
Merci de me joindre au 0470/24 26 79 bernard.pilette@durabrik.be pour en savoir plus
Financial
Sales under VAT system
Yes
Building
Type of property
Plot
Subtype
Plot
New building
Yes
Terrain
Plot size
906 m²
Most recent urban destination
Residential area
Layout
Number of bedrooms
0
Number of bathrooms
0
Number of toilets
0
Comfort
Lift
No
Urban planning
Subdivision permit
Yes
Location
Rue de Cognelée, 5380 FernelmontIs this affordable for you?
Minimal personal contribution
-EUR
Monthly payments
-EUR/month
Prefer a tailor-made proposal?
Tell us more about your project and your personal situation and KBC will calculate your personal interest rate. You will receive immediate feedback on whether your loan is feasible and you can complete your application completely digitally. Even if you are not a KBC customer.








