House for sale in Fernelmont with 3 bedrooms
€377,500
Is this affordable for you?Description
Unfortunately, the description is not available in the selected language.
Envie d’en savoir plus ?Appelez le 010 812 621 ou envoyez un mail à info@durabrik.be
Financial
Sales under VAT system
Yes
Building
Type of property
House
Subtype
House
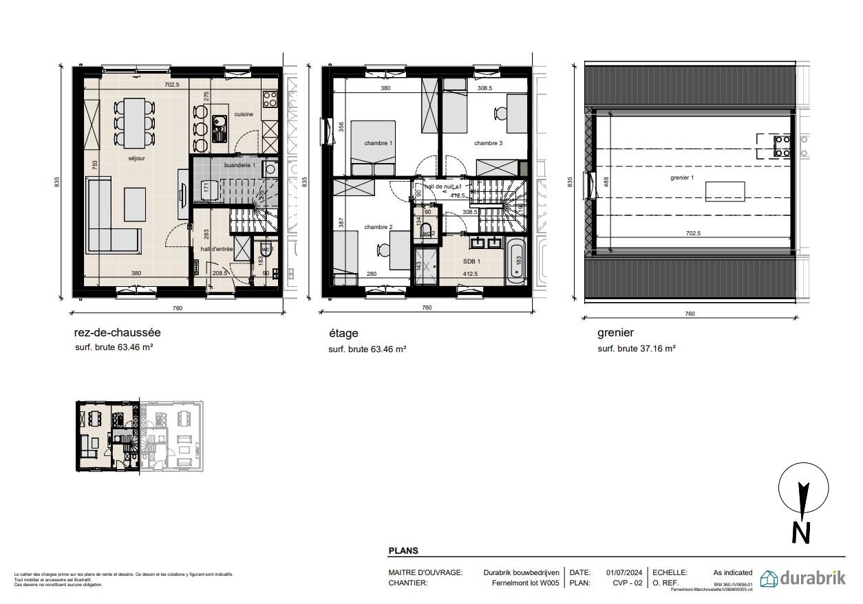
Surface
164 m²
Terrain
Plot size
737 m²
Most recent urban destination
Residential area
Layout
Number of bedrooms
3
Number of bathrooms
1
Number of toilets
0
Comfort
Lift
No
Connection sewerage
Yes
Energy
Solar panels
Yes
Floor heating
Yes
Heat pump
Yes
Urban planning
Subdivision permit
Yes
Location
Rue de Cognelée, 5380 FernelmontIs this affordable for you?
Minimal personal contribution
-EUR
Monthly payments
-EUR/month
Prefer a tailor-made proposal?
Tell us more about your project and your personal situation and KBC will calculate your personal interest rate. You will receive immediate feedback on whether your loan is feasible and you can complete your application completely digitally. Even if you are not a KBC customer.














