Apartment for sale in Middelkerke with 1 bedroom

74
74
1
1
Description
Unfortunately, the description is not available in the selected language.
Luxueus nieuwbouwproject "Residentie Ijzerparel"

Uiterst RESIDENTIEEL gelegen wordt deze prachtige ARCHITECTURALE PAREL gebouwd temidden van een groene oase, op enkele minuten wandelen van de zee en het centrum.
 
Dit energiezuinige, kleinschalige luxe woonproject omvat 9 ruime doorloopappartementen (met elk een eigen zonneterras) & 9 parkings achteraan.

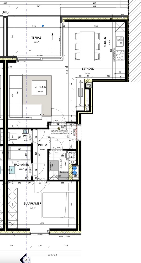
Dit gelijkvloersappartement geniet een uiterst praktische indeling, en is voorzien van o.a.: inkomhal met toilet, ruime leefruimte met eethoek en open keuken, zonneterras, badkamer, 1 slaapkamer en berging/wasplaats. Oppervlakte appartement: +- 74m2.
De appartementen kunnen volledig ingericht en afgewerkt worden naar uw smaak! Badkamer, keuken, vloeren... kunnen allemaal door de klant gekozen worden.

Aan de achterzijde van het gebouw bevinden zich 9 staanplaatsen.
Elk appartement dient een staanplaats aan te kopen.
Daarnaast wordt er ook een fietsenberging en vuilnislokaal voorzien. 

E-peil 30.
Eco-afwerking: superisolerend dubbel glas, zonnepanelen, warmtepomp, vloerverwarming, ventilatiesysteem,...

Er zijn ook 2 liften voorzien in het gebouw.

Kortom: trendy en kwalitatieve appartementen, afgewerkt op uw maat, waar u zorgeloos kan genieten op een boogscheut van het strand! 
Dé ideale uitvalsbasis voor zowel vaste bewoning als tweede verblijf!

Prijs appartement A0.3: 261.000 EUR (excl. kosten).
Prijs staanplaats: 25.000 EUR (excl. kosten)
Verkoop onder BTW-stelsel.
! 6% BTW mogelijk, indien voldaan wordt aan de voorwaarden.

De 3D-beelden zijn louter illustratief.

Aarzel niet om een afspraak te maken: Immo Sleutel: 050/70 70 70

Financial

Availability
Upon delivery

Building

Type of property
Apartment
Subtype
Apartment
Surface
74 m²

Terrain

Plot size
74 m²
Most recent urban destination
Residential area

Layout

Number of bedrooms
1
Number of bathrooms
1
Type of kitchen
Finished kitchen

Comfort

Videophone
Yes
Lift
Yes
Electricity connection
Yes

Energy

E-level
30
Solar panels
Yes
Type of glazing
Double glazing

Urban planning

Subdivision permit
No
Pre-emption right
No
G-score (building score)
C (small risk of flooding under current climate)

Location

Ijzerlaan 20 A0.3, 8430 Middelkerke

Is this affordable for you?

Minimal personal contribution
-EUR
Monthly payments
-EUR/month
Interest rate
- %
APR
- %
Total loan amount
- EUR
Total amount to be repaid
- EUR

Prefer a tailor-made proposal?

Tell us more about your project and your personal situation and KBC will calculate your personal interest rate. You will receive immediate feedback on whether your loan is feasible and you can complete your application completely digitally. Even if you are not a KBC customer.

What happens to your data?

On this website, we help you estimate and apply for a loan from KBC Bank and process your personal data for KBC Bank. By clicking on the button above, you also agree that we may pass on your e-mail address or other electronic identifiers to KBC in order to follow up on our cooperation.

Representative example

For a mortgage loan with immovable destination of 170,000 euros, fully secured by a mortgage inscription, with a term of 240 months at a fixed interest rate of 5.19% and an annual percentage rate of 5.54%, you pay 240 monthly repayments of 1,128.51 euros, a loan organisation fee of 350 euros, notary public’s fees of 4,324.39 euros and a total payable amount of 275,516.45 euros.

Also interesting for you

View similar properties