Apartment for sale in Middelkerke with 2 bedrooms
€352,000
Is this affordable for you?Description
Unfortunately, the description is not available in the selected language.
Luxueus nieuwbouwproject "Residentie Ijzerparel"
Uiterst RESIDENTIEEL gelegen wordt deze prachtige ARCHITECTURALE PAREL gebouwd temidden van een groene oase, op enkele minuten wandelen van de zee en het centrum.
Dit energiezuinige, kleinschalige luxe woonproject omvat 9 ruime doorloopappartementen (met elk een eigen zonneterras) & 9 parkings achteraan.
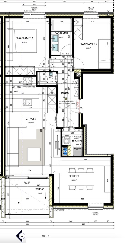
Dit appartement (1°V) geniet een uiterst praktische indeling, en is voorzien van o.a.: inkomhal met toilet, ruime leefruimte met eethoek en open keuken, zonneterras, badkamer, 2 slaapkamers en berging/wasplaats. Oppervlakte appartement: +- 91m2.
De appartementen kunnen volledig ingericht en afgewerkt worden naar uw smaak! Badkamer, keuken, vloeren... kunnen allemaal door de klant gekozen worden.
Aan de achterzijde van het gebouw bevinden zich 9 staanplaatsen.
Elk appartement dient een staanplaats aan te kopen.
Daarnaast wordt er ook een fietsenberging en vuilnislokaal voorzien.
E-peil 30.
Eco-afwerking: superisolerend dubbel glas, zonnepanelen, warmtepomp, vloerverwarming, ventilatiesysteem,...
Er zijn ook 2 liften voorzien in het gebouw.
Kortom: trendy en kwalitatieve appartementen, afgewerkt op uw maat, waar u zorgeloos kan genieten op een boogscheut van het strand!
Dé ideale uitvalsbasis voor zowel vaste bewoning als tweede verblijf!
Prijs appartement A1.3: 352.000 EUR (excl. kosten).
Prijs staanplaats: 25.000 EUR (excl. kosten)
Verkoop onder BTW-stelsel.
! 6% BTW mogelijk, indien voldaan wordt aan de voorwaarden.
De 3D-beelden zijn louter illustratief.
Aarzel niet om een afspraak te maken: Immo Sleutel: 050/70 70 70
Uiterst RESIDENTIEEL gelegen wordt deze prachtige ARCHITECTURALE PAREL gebouwd temidden van een groene oase, op enkele minuten wandelen van de zee en het centrum.
Dit energiezuinige, kleinschalige luxe woonproject omvat 9 ruime doorloopappartementen (met elk een eigen zonneterras) & 9 parkings achteraan.
Dit appartement (1°V) geniet een uiterst praktische indeling, en is voorzien van o.a.: inkomhal met toilet, ruime leefruimte met eethoek en open keuken, zonneterras, badkamer, 2 slaapkamers en berging/wasplaats. Oppervlakte appartement: +- 91m2.
De appartementen kunnen volledig ingericht en afgewerkt worden naar uw smaak! Badkamer, keuken, vloeren... kunnen allemaal door de klant gekozen worden.
Aan de achterzijde van het gebouw bevinden zich 9 staanplaatsen.
Elk appartement dient een staanplaats aan te kopen.
Daarnaast wordt er ook een fietsenberging en vuilnislokaal voorzien.
E-peil 30.
Eco-afwerking: superisolerend dubbel glas, zonnepanelen, warmtepomp, vloerverwarming, ventilatiesysteem,...
Er zijn ook 2 liften voorzien in het gebouw.
Kortom: trendy en kwalitatieve appartementen, afgewerkt op uw maat, waar u zorgeloos kan genieten op een boogscheut van het strand!
Dé ideale uitvalsbasis voor zowel vaste bewoning als tweede verblijf!
Prijs appartement A1.3: 352.000 EUR (excl. kosten).
Prijs staanplaats: 25.000 EUR (excl. kosten)
Verkoop onder BTW-stelsel.
! 6% BTW mogelijk, indien voldaan wordt aan de voorwaarden.
De 3D-beelden zijn louter illustratief.
Aarzel niet om een afspraak te maken: Immo Sleutel: 050/70 70 70
Financial
Availability
Upon delivery
Building
Type of property
Apartment
Subtype
Apartment
Surface
91 m²
Terrain
Plot size
91 m²
Most recent urban destination
Residential area
Layout
Number of bedrooms
2
Number of bathrooms
1
Type of kitchen
Finished kitchen
Comfort
Videophone
Yes
Lift
Yes
Electricity connection
Yes
Energy
E-level
30
Solar panels
Yes
Type of glazing
Double glazing
Urban planning
Subdivision permit
No
Pre-emption right
No
G-score (building score)
C (small risk of flooding under current climate)
Location
Ijzerlaan 20 A1.3, 8430 MiddelkerkeIs this affordable for you?
Minimal personal contribution
-EUR
Monthly payments
-EUR/month
Prefer a tailor-made proposal?
Tell us more about your project and your personal situation and KBC will calculate your personal interest rate. You will receive immediate feedback on whether your loan is feasible and you can complete your application completely digitally. Even if you are not a KBC customer.













