House for sale in Lauwe with 3 bedrooms
€423,800
Is this affordable for you?Description
Unfortunately, the description is not available in the selected language.
In de Koning Boudewijnstraat in Lauwe, in het woonproject Korenhof bieden wij momenteel deze prachtige halfopen bebouwing (lot 7) in een landelijke bouwstijl met zadeldak aan.
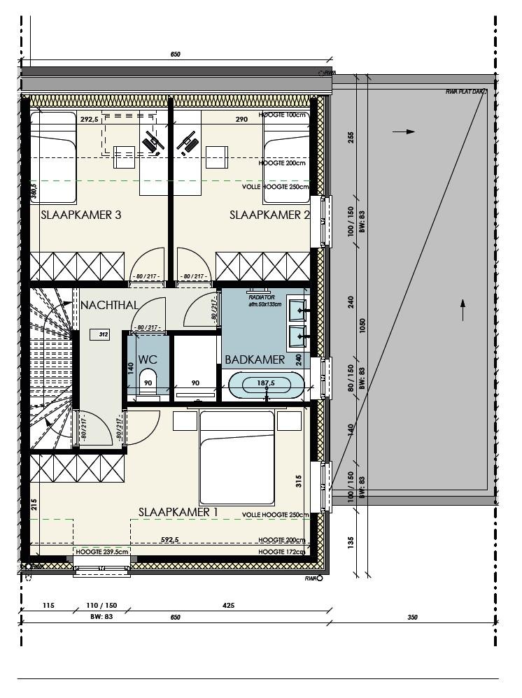
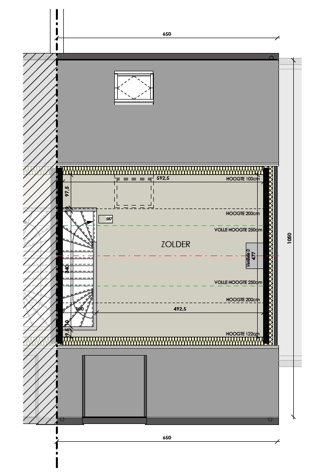
De woning is gelegen op een perceel van 270 m2 en kwalitatief afgewerkt met een E-peil onder de 20. Verder is deze nieuwbouw voorzien van een kwalitatief ingerichte keuken en badkamer, 3 slaapkamers, een vaste trap naar de zolder (of extra slaap- of hobbykamer), een aangebouwde carport en tuinberging, vloerverwarming, een geothermische warmtepomp, zonnepanelen, een ventilatiesysteem type D en alle nodige bevloeringen. Het woonproject Korenhof is gelegen aan de rand van het dorp, dichtbij alle faciliteiten. In deze doodlopende straat, met een prachtig uitzicht op de uitgestrekte velden kan je genieten van rust en stilte.
Deze prijs is exclusief kosten en btw, bekijk de ALL-IN prijs op onze website voor een volledig afgewerkte en instapklare woning, inclusief alle kosten (notariskosten, aansluitkosten, verkooprecht en btw) en de aanleg van de (voor)tuin met afsluitingen, terras, gras, oprit en een pad naar de voordeur. Klaar om te verhuizen? Meer info, prijzen en grondplan op: www.dumobil.be/nl/woonprojecten/projecten/nieuwbouwwoningen-lauwe Of vraag vrijblijvend informatie via onze bouwadviseur Sam Borrey: sam@dumobil.be | 0483 210 133
De woning is gelegen op een perceel van 270 m2 en kwalitatief afgewerkt met een E-peil onder de 20. Verder is deze nieuwbouw voorzien van een kwalitatief ingerichte keuken en badkamer, 3 slaapkamers, een vaste trap naar de zolder (of extra slaap- of hobbykamer), een aangebouwde carport en tuinberging, vloerverwarming, een geothermische warmtepomp, zonnepanelen, een ventilatiesysteem type D en alle nodige bevloeringen. Het woonproject Korenhof is gelegen aan de rand van het dorp, dichtbij alle faciliteiten. In deze doodlopende straat, met een prachtig uitzicht op de uitgestrekte velden kan je genieten van rust en stilte.
Deze prijs is exclusief kosten en btw, bekijk de ALL-IN prijs op onze website voor een volledig afgewerkte en instapklare woning, inclusief alle kosten (notariskosten, aansluitkosten, verkooprecht en btw) en de aanleg van de (voor)tuin met afsluitingen, terras, gras, oprit en een pad naar de voordeur. Klaar om te verhuizen? Meer info, prijzen en grondplan op: www.dumobil.be/nl/woonprojecten/projecten/nieuwbouwwoningen-lauwe Of vraag vrijblijvend informatie via onze bouwadviseur Sam Borrey: sam@dumobil.be | 0483 210 133
Financial
Investment real estate
Yes
Investment property
Yes
Building
Type of property
House
Subtype
House
Surface
163 m²
Terrain
Plot size
270 m²
Garden
Yes
Orientation garden
West
Layout
Number of bedrooms
3
Number of bathrooms
1
Number of toilets
2
Comfort
Lift
No
Electricity connection
Yes
Gas connection
Yes
Energy
E-level
0
Solar panels
Yes
Electricity inspection certificate
Yes, compliant
Urban planning
Subdivision permit
Yes
Location
Koning Boudewijnstraat 42 D, 8930 Lauwe423.800 EUR
Location
Koning Boudewijnstraat 42 D
8930 Lauwe














