Land for sale in Wervik
€120,000
Is this affordable for you?Description
Unfortunately, the description is not available in the selected language.
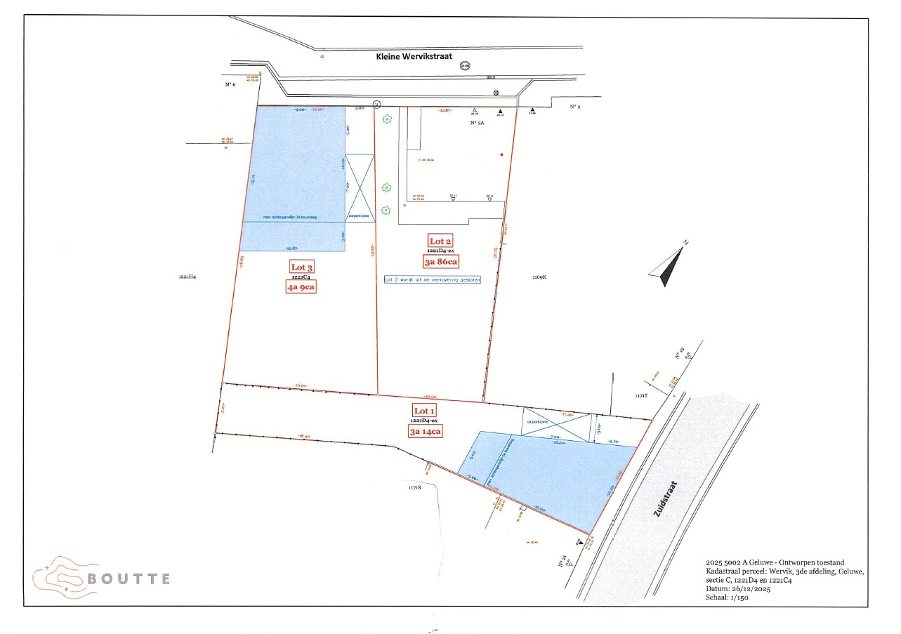
Geluwe - Mooi stuk bouwgrond te koop op 314 m².
Te bebouwen oppervlakte 150m² (gelijkvloers)
bewoonbaar 250m² (met 1ste verdiep erbij)
Carport 21 m²
Perceel voor halfopen bebouwing oppervlakte 314m²
West georiënteerde tuin
Zie voorschriften in bijlage
Gas, water en elektriciteit in de straat
Te bebouwen oppervlakte 150m² (gelijkvloers)
bewoonbaar 250m² (met 1ste verdiep erbij)
Carport 21 m²
Perceel voor halfopen bebouwing oppervlakte 314m²
West georiënteerde tuin
Zie voorschriften in bijlage
Gas, water en elektriciteit in de straat
Building
Subtype
Plot
Surface
250 m²
Type of buildings
Open
Terrain
Plot size
314 m²
Buildable area
170 m²
Most recent urban destination
Residential area
Urban planning
G-score (building score)
A (no flood modeled)
P-score (parcel score)
A (no flood modeled)
Flood-prone area
Not located in a flood-prone area
Location
Zuidstraat 19 LOT 1, 8940 WervikIs this affordable for you?
Minimal personal contribution
-EUR
Monthly payments
-EUR/month
Prefer a tailor-made proposal?
Tell us more about your project and your personal situation and KBC will calculate your personal interest rate. You will receive immediate feedback on whether your loan is feasible and you can complete your application completely digitally. Even if you are not a KBC customer.




