House for sale in Beveren-Kruibeke-Zwijndrecht with 5 bedrooms
Description
Bezoek dit project op nieuwbouwzondag 19 oktober tussen 11u en 15u!
--------------------------------------------------------------------------------------------------------------
GEKOPPELDE WONING: Kruibekesteenweg (LOT 8) te 9120 Beveren:
Zeer energiezuinige woning (warmtepomp voorzien) met een E-peil van 20. De totale benutbare bruto oppervlakte is ± 250 m².
Deze woningen worden volgens het uitgebreid lastenboek SLEUTEL OP DE DEUR aangeboden, met inspraak door de kopers. Meer info hieromtrent geven wij u graag op aanvraag.
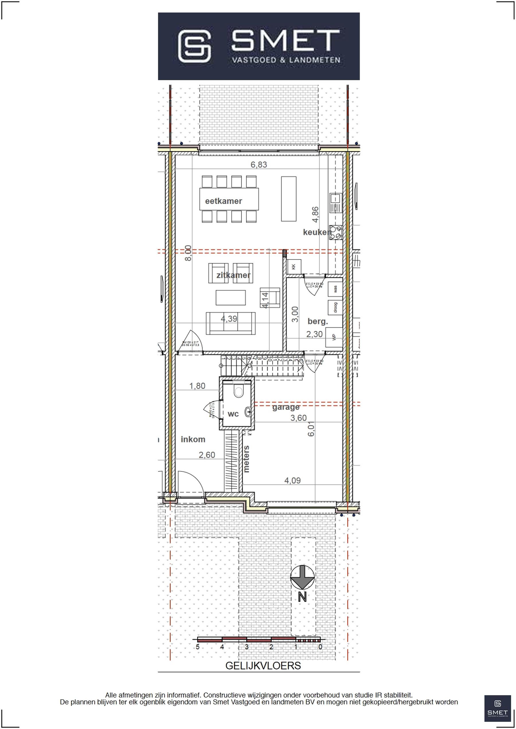
INDELING:
GLV: voortuin + parkeermogelijkheid, inkomhal, afz. toilet, trap naar 1eV, ruime leefruimte met zitplaats, eetplaats en open keuken, berging, zuid geörienteerde tuin met terras, privé achterontsluiting en een inpandige garage.
V1: nachthal, 2 slaapkamers, bureau, afz. toilet en badkamer.
V2: nachthal, 2-3 (extra) slaapkamers en 1 (extra) badkamer mogelijk.
V3: ruime bergzolder in nok.
--------------------------------------------------------------------------------------------------------------
centrale ligging
Deze woningen met inpandige garage hebben toekomstige huisnummers 2G tem 2L in de Kruibekesteenweg en zijn gelegen op een steenworp van het station van Beveren, een absolute centrum/toplocatie waar wij met SMET Vastgoed & Landmeten in eigen beheer en wederom in samenwerking met lokale gerenommeerde onderaannemers 6 moderne hedendaagse energiezuinige (E-peil 20) nieuwbouw (BEN!) woningen zullen realiseren. De woningen hebben een rustige ligging, doch met zeer vlotte verbindingsmogelijkheden Antwerpen/Gent/Haven en dit zowel met de fiets (fietsostrade), de wagen als met trein/tram/bus. Iedere woning heeft een voortuin (=parking wagen) en een zuid georiënteerde tuin achteraan mét achteruitweg.
alle voorzieningen vlakbij
Uw nieuwe thuis bevindt zich centraal te Beveren op een boogscheut van het marktplein & centrum.Bovendien is het openbaar vervoer vlakbij. Een korte opsomming van enkele voorzieningen in deze buurt : cafe, cultuur, dokter, bakker, beenhouwer, kinderopvang, natuur, ontspanning, parken, restaurant, scholen, sporten, supermarkten, voetbal, verenigingsleven, winkels, ziekenhuis,...
samengevat
Prachtig architectonisch bouwgeheel van 2 halfopen en 4 gekoppelde woningen | modern hedendaagse bouwstijl | Keuze uit 2, 3, 4 of 5 slaapkamers | vrije keuze keuken en badkamer = eigen beheer | tuin achteraan met ontsluiting voet- en fietsweg | Duurzame energiezuinige kwaliteitsafwerking via onze unieke CASCOPLUS+ formule met inspraak | Sleutel op de deur afwerking optioneel mogelijk | Zonnepanelen voorzien | Energiezuinig: E-peil 20 = BEN WONING ! | Ventilatie met warmterecuperatie (systeem D) | Recuperatie regenwater | Vloerverwarming en sanitair warm water via zuinige warmtepomp | Superisolerende beglazing en buitenschrijnwerk | Akoestische beglazing vooraan | met private inpandige garage | Oprit/Parking auto voortuin mogelijk | KORTING = 5 jaar 50% op uw KI | Grondoppervlakte tussen 290m² en 420m² | Bebouwde oppervlakte tussen 250 en 270m² | ....
realisaties
Onze eigen realisaties (dwz door SMET Vastgoed & Landmeten lokaal gebouwd en verkocht) kan u terugvinden op onze website https://www.vastgoed-smet.be/realisaties/ Wij zijn zelf ook eigenaar en promotor van project Kruibekesteenweg. Wist u dat wij in deze/onze regio jaarlijks een 10-tal woningen en/of appartementen bouwen en dat wij ook uw woning verkopen of zelf aankopen !
bezoek | afspraak?
Een afspraak op ons kantoor of een bezoek aan onze eigen gerealiseerde kijkwoning in de Eedverbondlaan te Melsele is mogelijk.
wg/vg/vv/gmo/gvkr
contacteer ons vrijblijvend
Voor verdere info kan u ons contacteren op 03 775 41 88 of per e-mail naar Guy@vastgoed-smet.be
Financial
Building
Terrain
Layout
Energy
Urban planning
Location
Kruibekesteenweg 2 H, 9120 Beveren-Kruibeke-ZwijndrechtIs this affordable for you?
Prefer a tailor-made proposal?
Tell us more about your project and your personal situation and KBC will calculate your personal interest rate. You will receive immediate feedback on whether your loan is feasible and you can complete your application completely digitally. Even if you are not a KBC customer.
















