House for sale in Appels with 3 bedrooms

150
3
1
Description

house

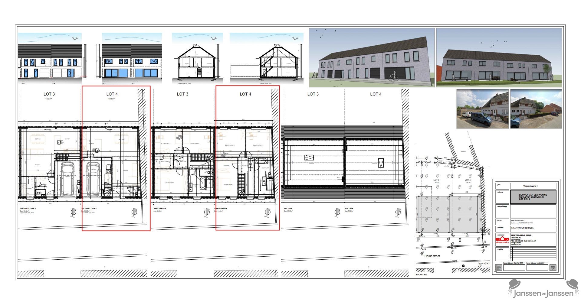
New to build energy efficient semi-detached building on a plot of 150 m², located in the quiet Appels, borough of Dendermonde.

The location offers beautiful walking opportunities along the Scheldt and Dender to relax blissfully after a busy (work) week.

Do you like to be busy and sociable? Then Dendermonde is definitely worth a visit with its numerous restaurants, shopping opportunities and sights.

 

The design includes on the ground floor: entrance hall, toilet, dining and sitting area, kitchen and indoor garage.

On the 1st floor there is a night hall, 3 bedrooms & bathroom with double sink, toilet , bath and shower.

The spacious attic still offers many possibilities.

 

Sustainable materials are used to meet the energy regulations of max E30-S28.

The technical plan with all the details will be discussed with you.

 

Would you like more information or an appointment?

We will gladly take the time to discuss the design & all possibilities in terms of finishing.

Call us at 052/ 50 50 00.

 

See you soon!

Financial

Sales under VAT system
Yes
Cadastral info
0199/00C003

Building

Type of property
House
Subtype
House
State building
New construction

Terrain

Plot size
150 m²
Most recent urban destination
Residential area

Layout

Number of bedrooms
3
Number of bathrooms
1
Number of toilets
2

Comfort

Gas connection
Yes
Water connection
Yes
Telephone
Yes

Energy

E-level
30
Type of glazing
Double glazing
Window profiles
PVC

Urban planning

Cadastral plan
Yes
Summons
No judicial remedial or administrative measure imposed
Subdivision permit
Yes

Location

Heidestraat 6, 9200 Appels

389.663 EUR

Location

Heidestraat 6
9200 Appels

Is this affordable for you?

Also interesting for you

View similar properties