Description
Unfortunately, the description is not available in the selected language.
Deze projectgrond heeft een straatbreedte van 24 meter, achteraan 31,85 m en dit met een diepte van 31,73m. Hier heeft u de mogelijkheid om na afbraak van de bestaande bebouwing 3 eengezinswoningen te bouwen. 2 gesloten en 1 half open bebouwing. De bestaande bouwplannen zijn reeds afgestemd met stedenbouw maar zijn nog niet ingediend. Deze projectgrond is de ideale locatie voor een ontwikkelaar of investeerder om aan jonge gezinnen te verkopen of te verhuren.
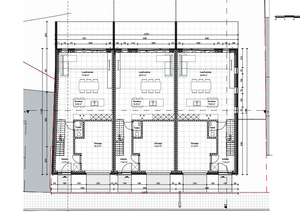
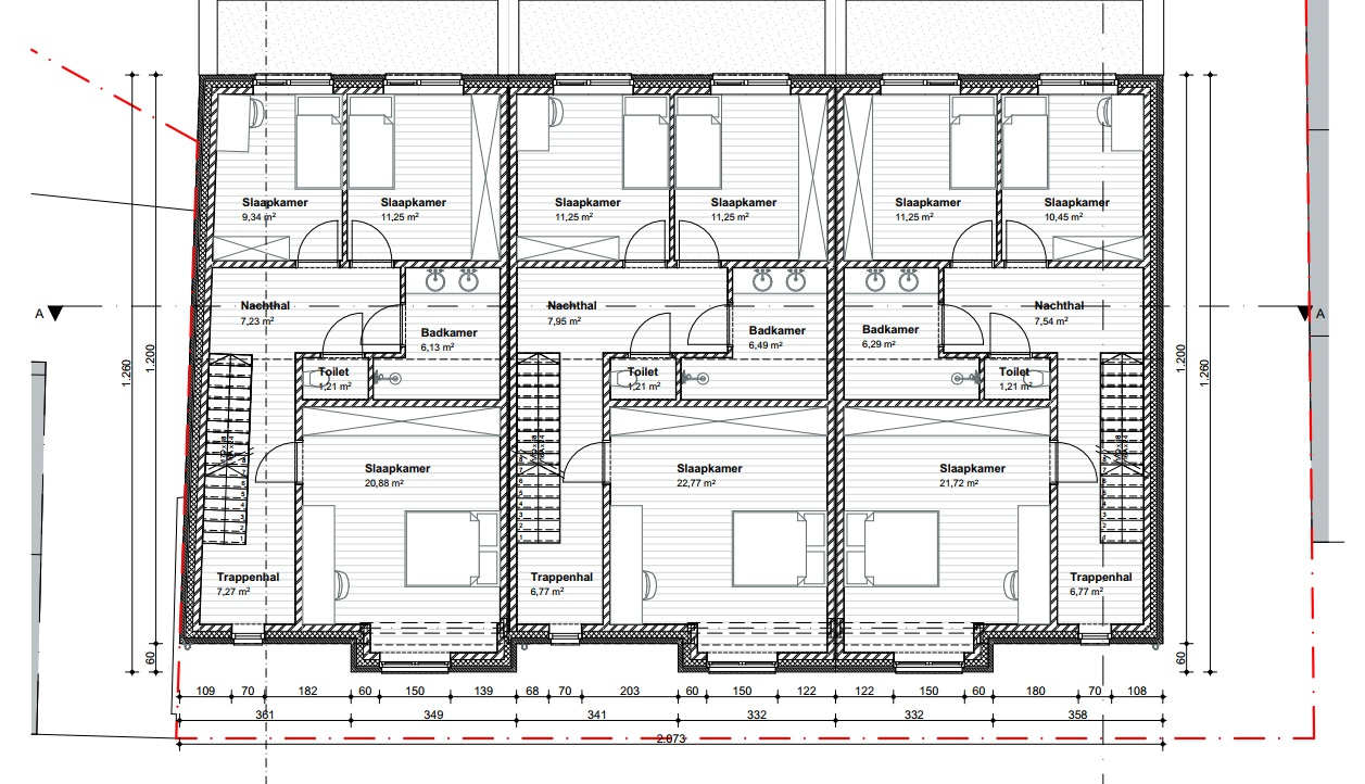
In deze 3 nog te bouwen woningen is telkens het volgende reeds voorzien: inkom, apart toilet, inpandige ruime garage, open keuken, leefruimte, tuin / terras. Op de eerste verdieping: nachthal met lichtinval, apart toilet, badkamer, 3 slaapkamers, 2de vaste trap naar de zolderruimte en of waar je de 4de of zelfs een 5de slaapkamer kan maken. Interesse? Neem gerust contact op via 052/41.41.94 voor meer informatie en/of de plannen.
Doorverkoop mogelijk aan 6% BTW.
Referentie: 5321
In deze 3 nog te bouwen woningen is telkens het volgende reeds voorzien: inkom, apart toilet, inpandige ruime garage, open keuken, leefruimte, tuin / terras. Op de eerste verdieping: nachthal met lichtinval, apart toilet, badkamer, 3 slaapkamers, 2de vaste trap naar de zolderruimte en of waar je de 4de of zelfs een 5de slaapkamer kan maken. Interesse? Neem gerust contact op via 052/41.41.94 voor meer informatie en/of de plannen.
Doorverkoop mogelijk aan 6% BTW.
Referentie: 5321
Building
Type of property
Plot
Subtype
Plot
New building
No
Terrain
Plot size
865 m²
Most recent urban destination
Residential area
Layout
Number of bedrooms
0
Number of bathrooms
0
Number of toilets
0
Comfort
Lift
No
Energy
E-level
0
Urban planning
Subdivision permit
No
Pre-emption right
No
G-score (building score)
D (medium flood risk under current climate)
Is this affordable for you?
Minimal personal contribution
-EUR
Monthly payments
-EUR/month
Prefer a tailor-made proposal?
Tell us more about your project and your personal situation and KBC will calculate your personal interest rate. You will receive immediate feedback on whether your loan is feasible and you can complete your application completely digitally. Even if you are not a KBC customer.















