Description
Unfortunately, the description is not available in the selected language.
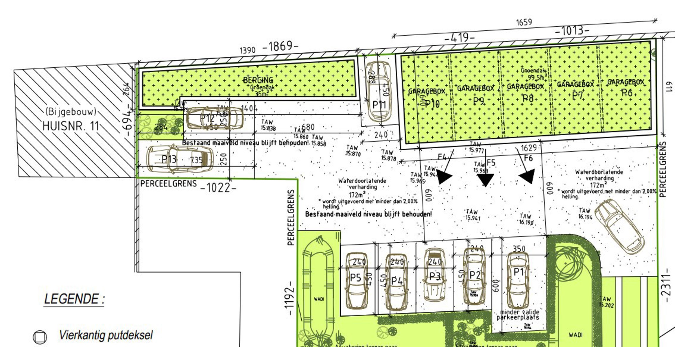
Ben je op zoek naar een extra parkeerplaats in het centrum van Lede? Zoek niet verder!
Open autostaanplaatsen op het terrein van de residentie.
Geschikt als bijhorende parkeeroplossing voor bewoners of investering
Open autostaanplaatsen op het terrein van de residentie.
Geschikt als bijhorende parkeeroplossing voor bewoners of investering
Building
Type of property
Garage / Parking
Subtype
Parking lot




