House for sale in Haaltert with 3 bedrooms
€411,696
Is this affordable for you?Description
Unfortunately, the description is not available in the selected language.
HAALTERT - LOT 3
Wij bieden dit mooi perceel bouwgrond van 436 m² aan in Haaltert, bestemd voor een gesloten bebouwing.
Als toekomstige eigenaar geniet je van:
- Volledige inspraak in de bouwstijl, materiaalkeuze en afwerking, binnen de geldende bouwvoorschriften.
- Duurzame materialen voor een hoogwaardige afwerking van de woning. Wij voorzien standaard een lucht-water warmtepomp en vloerverwarming.
- Samenwerking bij het ontwerp van jouw woning, volledig afgestemd op jouw budget.
Maak van deze nog te bouwen woning jouw nieuwe thuis!
Neem vandaag nog contact op met Dries via 0497 92 15 24 of Dries@Immosafe.be
Building
Type of property
House
Subtype
House
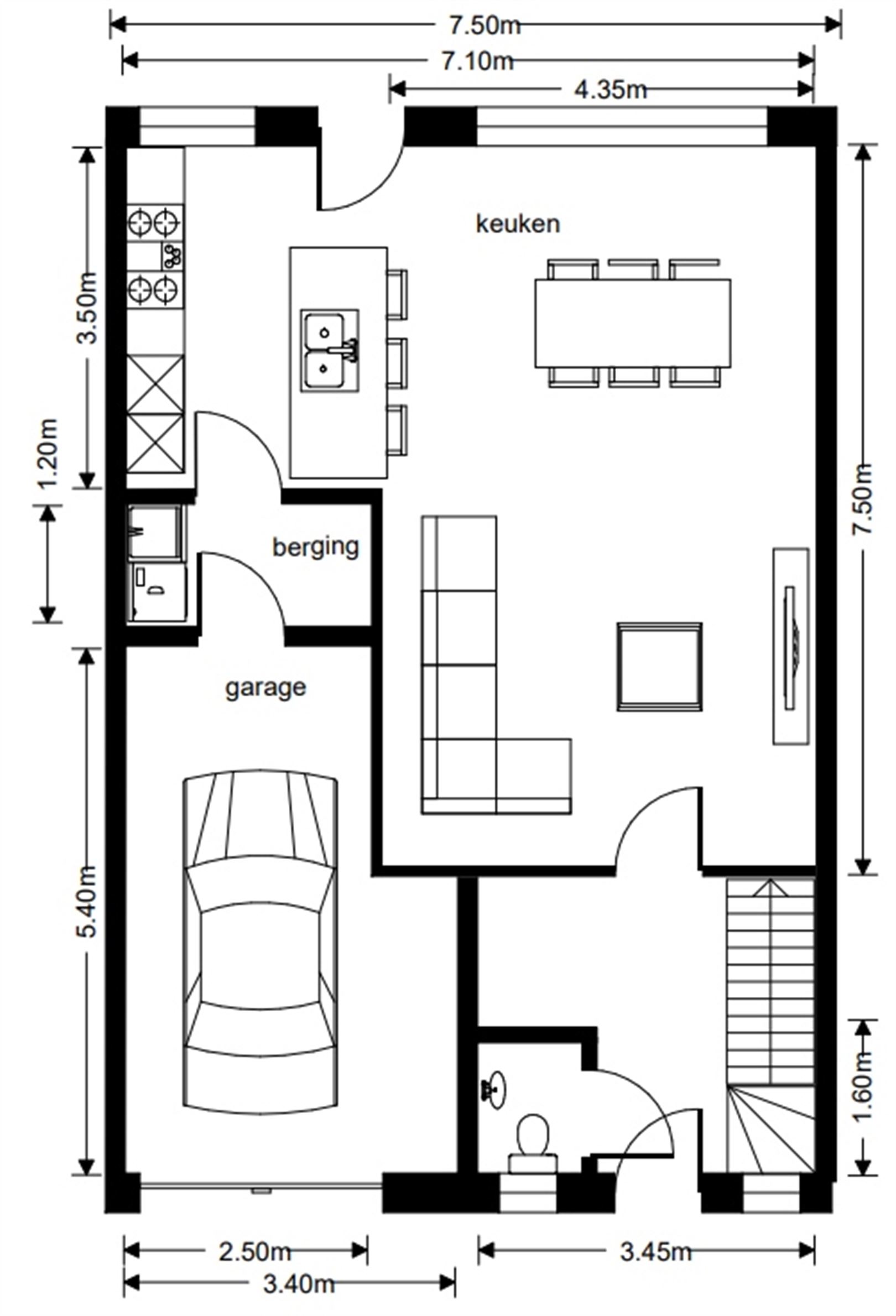
Surface
165 m²
Terrain
Plot size
436 m²
Most recent urban destination
Residential area
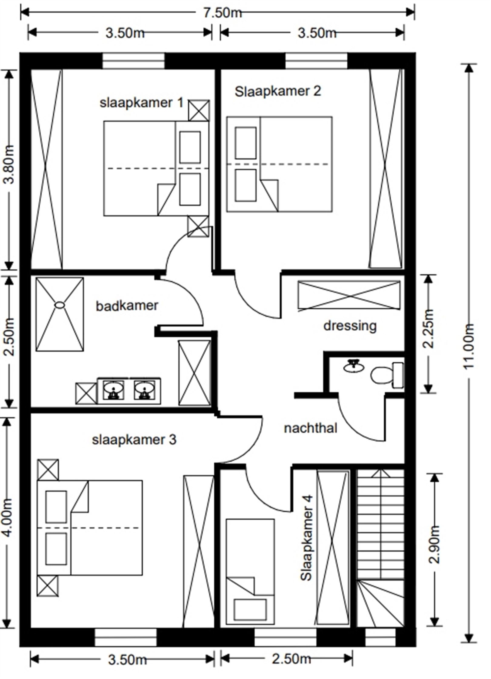
Layout
Number of bedrooms
3
Number of bathrooms
1
Type of kitchen
Fully finished kitchen
Energy
Type of glazing
Triple glazing
Window profiles
PVC
Electricity inspection certificate
No
Urban planning
Building permit
Yes
Subdivision permit
Yes
Pre-emption right
No
Location
Pontweg, 9450 Haaltert411.696 EUR
Location
Pontweg
9450 Haaltert
Is this affordable for you?
Minimal personal contribution
-EUR
Monthly payments
-EUR/month
Prefer a tailor-made proposal?
Tell us more about your project and your personal situation and KBC will calculate your personal interest rate. You will receive immediate feedback on whether your loan is feasible and you can complete your application completely digitally. Even if you are not a KBC customer.















