Scoop: Land for sale in Geraardsbergen
Description
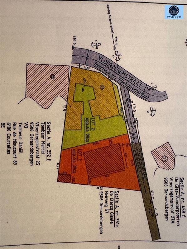
GROUND
QUIET LAND FOR OB
Asking price : 149,000 euros
This well located plot for an open building with an area. of 5a39 is located in the picturesque village near church and village center.
The street width is +-23m75 and the depth of the plot +-34m.
Who loves the quiet is definitely at the right place
Town planning certificate/information on request!
For more info or visit call 0475/51.40.73 or send an email to sven@svena.be. For info see www.svena.be
These data are purely informative and we cannot be held responsible for any inaccuracies.
The living area is only indicative.
Financial
Building
Terrain
Energy
Urban planning
Location
Vloerzegemstraat, 9500 GeraardsbergenIs this affordable for you?
Prefer a tailor-made proposal?
Tell us more about your project and your personal situation and KBC will calculate your personal interest rate. You will receive immediate feedback on whether your loan is feasible and you can complete your application completely digitally. Even if you are not a KBC customer.















