House for sale in Dikkelvenne with 3 bedrooms
€535,207
Is this affordable for you?Description
Unfortunately, the description is not available in the selected language.
Nieuw te bouwen, moderne open bebouwing in het hart van Dikkelvenne.
Lot 2 van de verkaveling met een oppervlakte van 693 m².
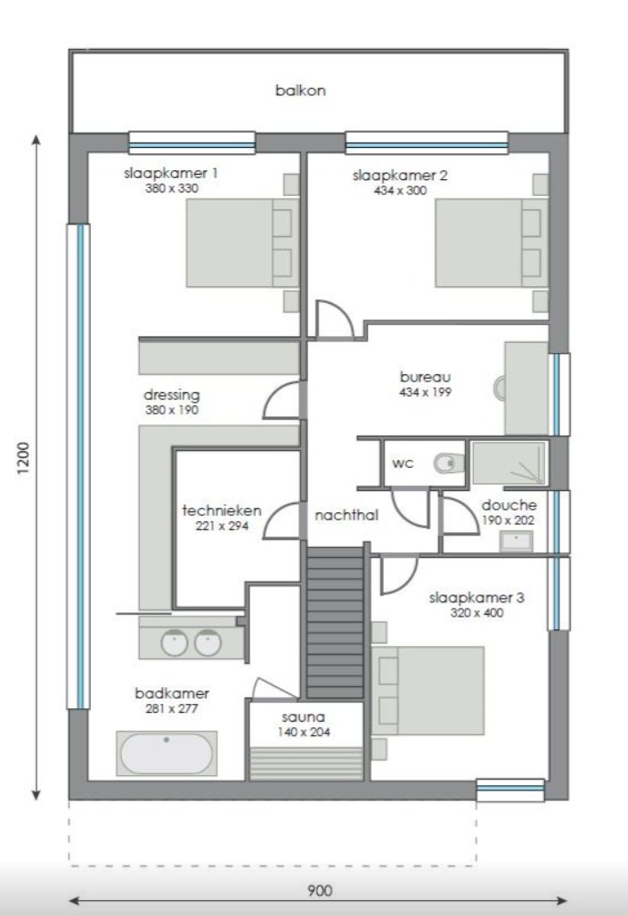
Visualisatie van de voorgevel en grondplannen zijn beschikbaar en geven een duidelijk beeld van het ontwerp van de woning.
De vermelde prijs omvat zowel de bouwgrond, als de nieuwbouwwoning tot wind- en waterdicht, exclusief kosten en BTW. De kosten van de architect en EPB verslaggever zijn niet in deze prijs opgenomen.
Indien gewenst, kan de woning eveneens verder volledig afgewerkt worden.
De grensmarkering op de luchtfoto (in rood weergegeven) is louter indicatief. Het bijgevoegde opmetingsplan bevat de exacte afmetingen.
Lot 2 van de verkaveling met een oppervlakte van 693 m².
Visualisatie van de voorgevel en grondplannen zijn beschikbaar en geven een duidelijk beeld van het ontwerp van de woning.
De vermelde prijs omvat zowel de bouwgrond, als de nieuwbouwwoning tot wind- en waterdicht, exclusief kosten en BTW. De kosten van de architect en EPB verslaggever zijn niet in deze prijs opgenomen.
Indien gewenst, kan de woning eveneens verder volledig afgewerkt worden.
De grensmarkering op de luchtfoto (in rood weergegeven) is louter indicatief. Het bijgevoegde opmetingsplan bevat de exacte afmetingen.
Financial
Value construction
336.207,15 €
Value of land
199.000 €
Cadastral info
44.016
Building
Type of property
House
Subtype
House
New building
Yes
Terrain
Plot size
693 m²
Most recent urban destination
Residential expansion area
Orientation garden
West
Location
Public transport nearby
Yes
School nearby
Yes
Shops nearby
Yes
Layout
Number of bedrooms
3
Number of bathrooms
1
Kitchen
Yes
Urban planning
Summons
No judicial remedial or administrative measure imposed
Building permit
No
Subdivision permit
Yes
Location
Hofkouterstraat 71 +, 9890 DikkelvenneIs this affordable for you?
Minimal personal contribution
-EUR
Monthly payments
-EUR/month
Prefer a tailor-made proposal?
Tell us more about your project and your personal situation and KBC will calculate your personal interest rate. You will receive immediate feedback on whether your loan is feasible and you can complete your application completely digitally. Even if you are not a KBC customer.













