House for sale in Maldegem with 3 bedrooms
€414,061
Is this affordable for you?Description
Unfortunately, the description is not available in the selected language.
Deze charmante landelijke nieuwbouwwoning is gelegen vlakbij het centrum van Maldegem.
De tuin is oostelijk georiënteerd en kijkt op de nieuw aangelegde groenzone.
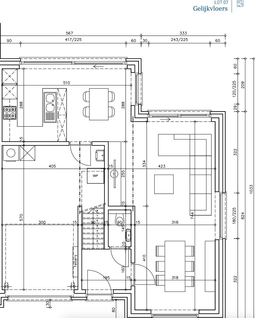
De woning geniet van een optimale woningindeling met op het gelijkvloers een inpandige garage, een inkomhal met gastentoilet en een lichtrijke leefruimte met open keuken.
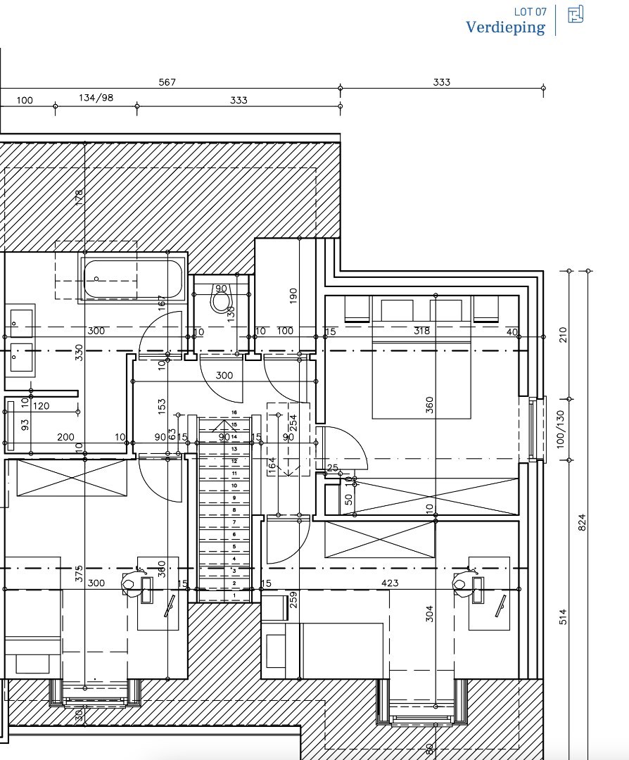
Op de eerste verdieping bevinden zich 3 slaapkamers en een badkamer met bad + inloopdouche. De praktische zolder is toegankelijk met een uitschuifbare zoldertrap. Deze woning is ondertussen in volle opbouw, de afwerking kan door u zelf of door ons gebeuren. Standaard zijn sowieso energiezuinige technieken inbegrepen: er is geluidswerende beglazing, een warmtepomp, ventilatie D en vloerverwarming op beide verdiepingen voorzien.
Zie jij jezelf hier wonen? We begeleiden je graag op weg naar je nieuwe (t)huis. Contacteer ons 0470 50 50 50 of info@futurimmo.be.
De tuin is oostelijk georiënteerd en kijkt op de nieuw aangelegde groenzone.
De woning geniet van een optimale woningindeling met op het gelijkvloers een inpandige garage, een inkomhal met gastentoilet en een lichtrijke leefruimte met open keuken.
Op de eerste verdieping bevinden zich 3 slaapkamers en een badkamer met bad + inloopdouche. De praktische zolder is toegankelijk met een uitschuifbare zoldertrap. Deze woning is ondertussen in volle opbouw, de afwerking kan door u zelf of door ons gebeuren. Standaard zijn sowieso energiezuinige technieken inbegrepen: er is geluidswerende beglazing, een warmtepomp, ventilatie D en vloerverwarming op beide verdiepingen voorzien.
Zie jij jezelf hier wonen? We begeleiden je graag op weg naar je nieuwe (t)huis. Contacteer ons 0470 50 50 50 of info@futurimmo.be.
Financial
Availability
Upon delivery
Building
Type of property
House
Subtype
House
Type of buildings
Semi-open
Terrain
Plot size
317 m²
Most recent urban destination
Residential area
Orientation garden
East
Layout
Number of bedrooms
3
Number of bathrooms
1
Kitchen
Yes
Comfort
Electricity connection
Yes
Connection sewerage
Yes
Water connection
Yes
Energy
EPC score (kWh/(m² years))
30
EPC label
A
Urban planning
Building permit
Yes
Subdivision permit
Yes
Pre-emption right
No
Location
Melkerij 6, 9990 MaldegemIs this affordable for you?
Minimal personal contribution
-EUR
Monthly payments
-EUR/month
Prefer a tailor-made proposal?
Tell us more about your project and your personal situation and KBC will calculate your personal interest rate. You will receive immediate feedback on whether your loan is feasible and you can complete your application completely digitally. Even if you are not a KBC customer.















