Maison à vendre à Meise avec 3 chambres
674 560 €
Est-ce faisable pour vous?Description
Woning Kardinaal Sterckxlaan 140
À Meise, sur la Kardinaal Sterckxlaan, nous vous proposons un terrain à bâtir de 1015 m², où vous pourrez réaliser votre maison de rêve sur mesure avec Sibomat. Une opportunité unique de créer votre maison idéale !
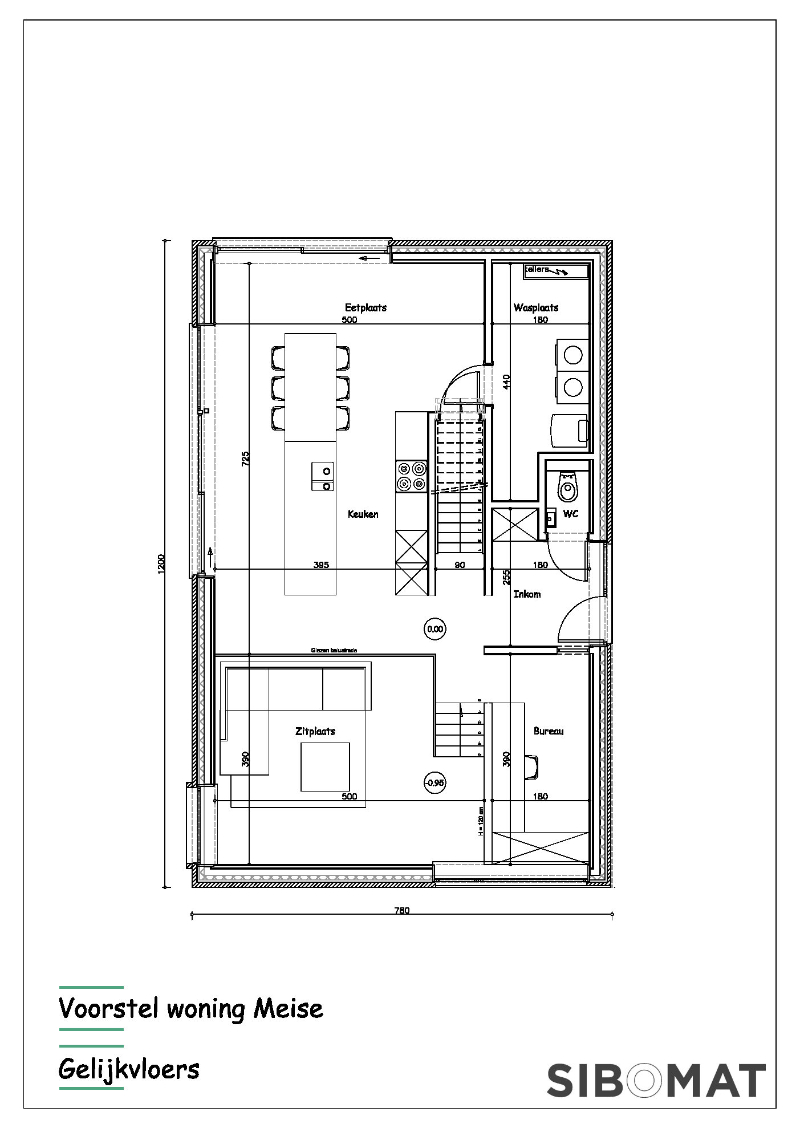
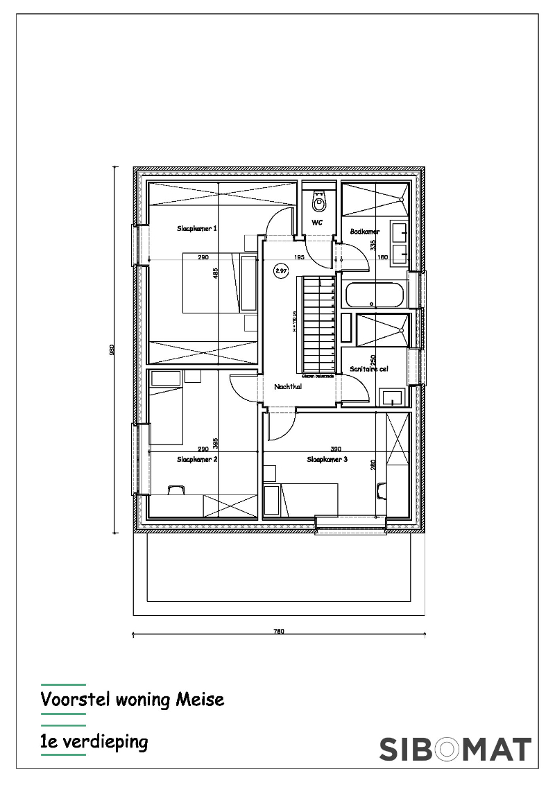
On vous propose une maison de 3 chambres et 2 salles de bains d'une superficie de 170 m² pour ce terrain à bâtir. Cependant, vous êtes entièrement libre de choisir l’agencement, le style ou l’apparence de la maison. Ensemble, nous pouvons construire un projet qui répond pleinement à vos souhaits.
L'architecture est libre dans le respect des règles de construction et la maison proposée n'est qu'un exemple. Une architecture différente peut être utilisée sur chaque parcelle.
Sibomat propose de loin la méthode de construction la plus rapide et la plus durable de Belgique. Chez Sibomat, nous sommes le leader depuis plus de 40 ans avec plus de 8.000 réalisations à notre actif. Nous réalisons également votre maison avec une grande qualité, une grande précision et dans un délai très court.
Vous êtes curieux de savoir ce que nous pouvons faire pour vous ? Alors n'hésitez pas à contacter votre conseiller en construction Stéphane Truant au 0477 60 72 51 ou par stephane.truant@sibomat.be.
On vous propose une maison de 3 chambres et 2 salles de bains d'une superficie de 170 m² pour ce terrain à bâtir. Cependant, vous êtes entièrement libre de choisir l’agencement, le style ou l’apparence de la maison. Ensemble, nous pouvons construire un projet qui répond pleinement à vos souhaits.
L'architecture est libre dans le respect des règles de construction et la maison proposée n'est qu'un exemple. Une architecture différente peut être utilisée sur chaque parcelle.
Sibomat propose de loin la méthode de construction la plus rapide et la plus durable de Belgique. Chez Sibomat, nous sommes le leader depuis plus de 40 ans avec plus de 8.000 réalisations à notre actif. Nous réalisons également votre maison avec une grande qualité, une grande précision et dans un délai très court.
Vous êtes curieux de savoir ce que nous pouvons faire pour vous ? Alors n'hésitez pas à contacter votre conseiller en construction Stéphane Truant au 0477 60 72 51 ou par stephane.truant@sibomat.be.
Bâtiment
Type de propriété
Maison
Surface
170 m²
Nouveau bâtiment
Oui
Terrain
Surface de la parcelle
1.015 m²
Orientation jardin
Nord-ouest
Aménagement
Nombre de chambres
3
Nombre de salles de bain
0
Nombre de toilettes
0
Confort
Ascenseur
Non
Énergie
Niveau E
0
Localité
Kardinaal Sterckxlaan 140, 1860 MeiseEst-ce faisable pour vous?
La contribution personnelle minimale
-EUR
Frais mensuels
-EUR/mois
Vous préférez une proposition personnalisée ?
Expliquez-nous votre projet et votre situation personnelle et KBC calculera un taux d'intérêt personnalisé. Vous recevrez immédiatement une réponse à propos de la faisabilité de votre prêt et pourrez finaliser votre demande entièrement en ligne. Même si vous n'êtes pas client chez KBC.















