Maison à vendre à Borgerhout avec 4 chambres
Description
Deze ruime gezinswoning is gelegen in de hippe Boho wijk meer bepaald aan het Koxplein, tussen het Moorkensplein en Zurenborg. Het betreft een ruime, doch te renoveren woning met 4 slaapkamers, koer en veranda (terras). Omwille van de ligging ben je op een steenworp verwijderd van verschillende leuke adresjes. In de omgeving is er absoluut geen gebrek aan winkels, scholen, apothekers, horeca gelegenheid en zoveel meer!
Grootste troeven:
-Centrale locatie in hippe buurt!
-Veel potentieel
-4ruime slaapkamers
-Koer & terras aanwezig
-Geen energetische renovatieverplichting
(Huidige) indeling:
-Kelder: Ruim (30m²), ideaal voor stockage.
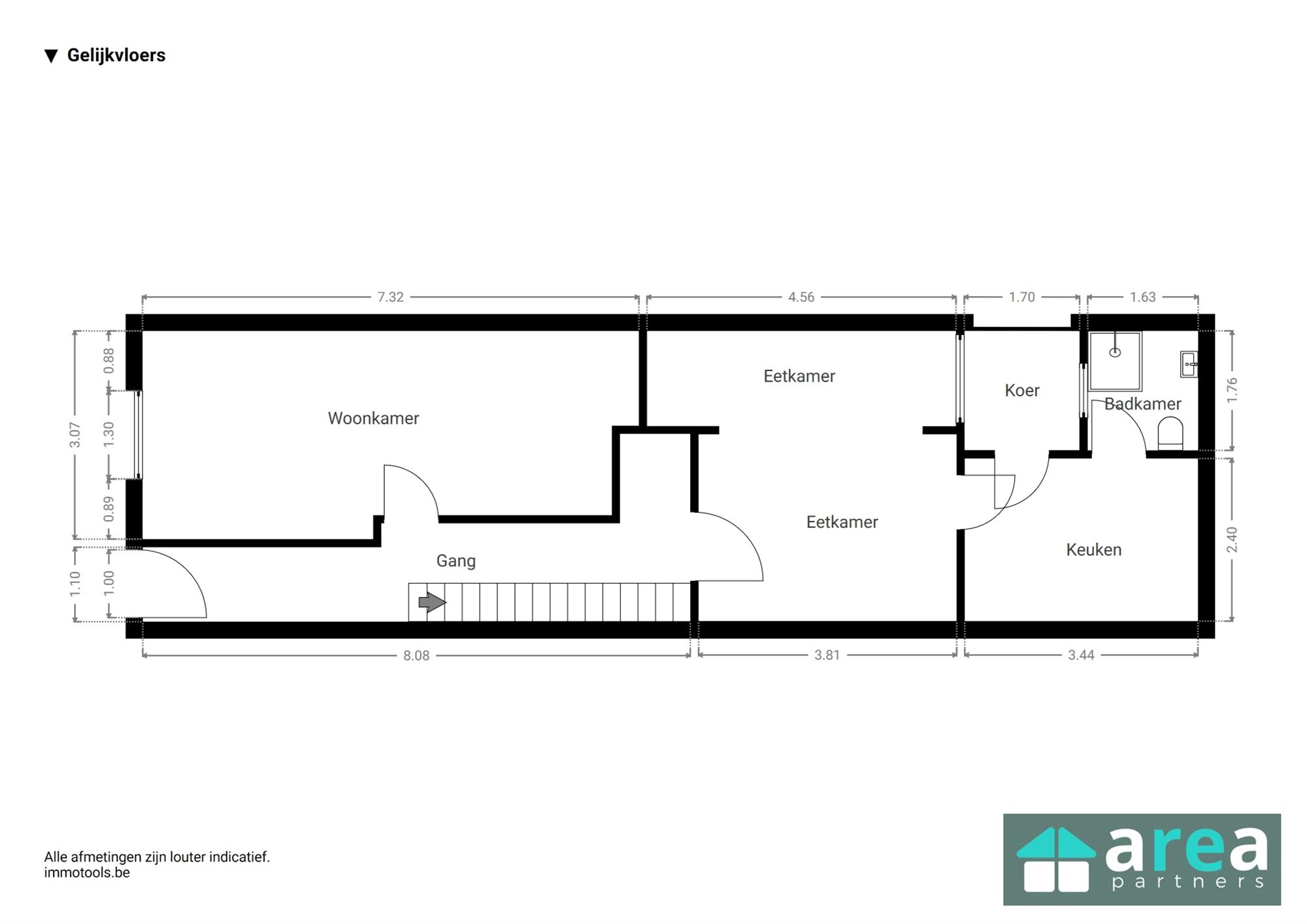
-GLVL: Op het gelijkvloers bevindt zich een ruime & lichtrijke leefruimte die eenvoudig kan worden verbonden met de aangrenzende eetkamer. Aansluitend treffen we de keuken, die toegang biedt tot een compacte koer (ca. 3 m²), ideaal voor een frisse buitenruimte. Verder is er op dit niveau een praktische badkamer voorzien van douche en toilet.
-V1: De 1ste verdieping omvat aan de voorzijde een masterbedroom (25 m²). Daarnaast bevindt zich de 2de slaapkamer (12 m²). Achteraan vinden we een 2de badkamer (5 m²), uitgerust met ligbad & toilet. Deze ruimte geeft bovendien toegang tot een veranda/terras (6 m²).
-V2: Op de bovenste verdieping zijn nog 2 bijkomende slaapkamers aanwezig (15m² & 10 m²).
Voor meer informatie kan u terecht bij Area Partners: Info@area.be of 03/284.60.60
Finances
Bâtiment
Terrain
Aménagement
Confort
Énergie
Urbanisme
Localité
Sterlingerstraat 7, 2140 BorgerhoutEst-ce faisable pour vous?
Vous préférez une proposition personnalisée ?
Expliquez-nous votre projet et votre situation personnelle et KBC calculera un taux d'intérêt personnalisé. Vous recevrez immédiatement une réponse à propos de la faisabilité de votre prêt et pourrez finaliser votre demande entièrement en ligne. Même si vous n'êtes pas client chez KBC.















