Scoop: Appartement à vendre à Rijkevorsel avec 1 chambre
Description
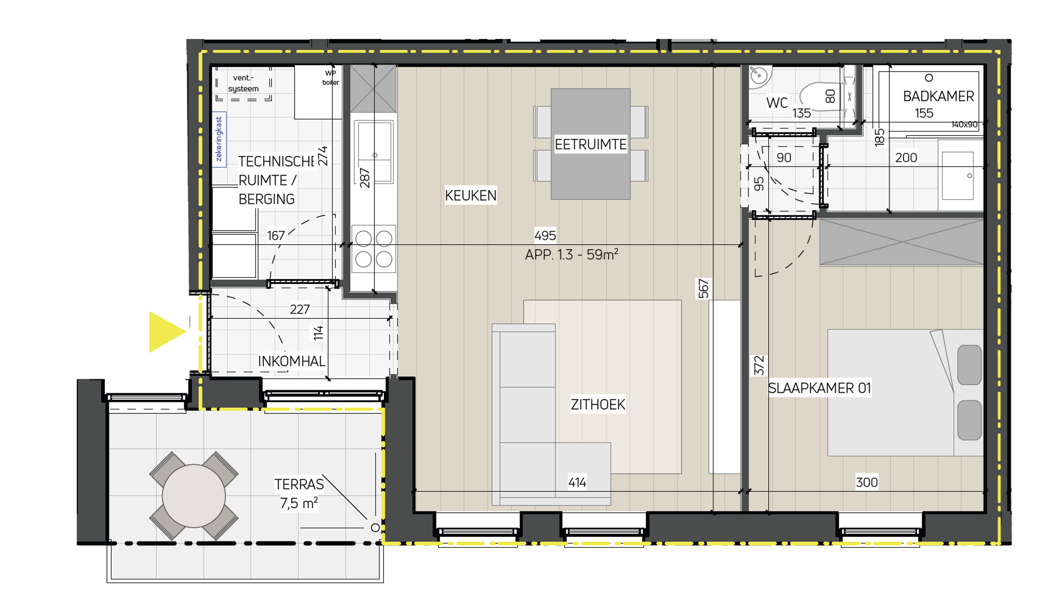
Appartement op de eerste verdieping met 1 slaapkamer en een terras. Dit prachtig en modern appartement is gelegen in Residentie ‘Meir’ in het rustige Sint-Jozef Rijkevorsel en biedt luxe, privacy en gezelligheid. Het appartement beschikt over een ruime woonkamer met open keuken. Verder bevindt zich hier 1 slaapkamer, een badkamer, een technische ruimte/wasplaats en een gastentoilet. Het terras is bereikbaar vanuit de inkomhal. Dit appartement kan aangepast worden voor personen met een zorgbehoefte.
Het appartement wordt hoogwaardig afgewerkt en is zeer energiezuinig. Er wordt vloerverwarming, een lucht-water warmtepomp en een ventilatiesysteem (type D) voorzien. Voor de afwerking van de appartementen zijn er ruime budgetten voorzien.
Het is verplicht minstens één autostaanplaats/garagebox en één kelderberging aan te kopen. De bouwplannen en het lastenboek zijn beschikbaar op kantoor. Neem contact op met Vastgoedpartners in Rijkevorsel op het nummer 03/314.12.60 of via info@vastgoedpartners.be voor meer informatie.
Finances
Bâtiment
Lieu
Aménagement
Confort
Énergie
Urbanisme
Localité
Meir, 2310 RijkevorselEst-ce faisable pour vous?
Vous préférez une proposition personnalisée ?
Expliquez-nous votre projet et votre situation personnelle et KBC calculera un taux d'intérêt personnalisé. Vous recevrez immédiatement une réponse à propos de la faisabilité de votre prêt et pourrez finaliser votre demande entièrement en ligne. Même si vous n'êtes pas client chez KBC.















