Maison à vendre à Puurs avec 3 chambres
438 300 €
Est-ce faisable pour vous?Description
A+ woning met 3 slaapkamers
Stap binnen in jouw toekomstig huis, een oase van rust in een groene omgeving. Deze prachtige duurzame en energiezuinige A+ halfopen woning bestaat uit twee bouwlagen.
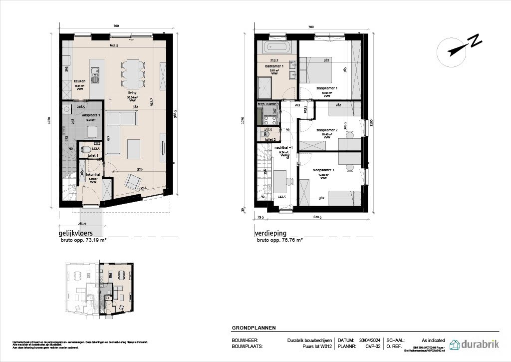
Het gelijkvloers biedt modern comfort met inkomhal, toilet, wasplaats met warmtepomp, ingerichte keuken met toestellen en aansluitende living. Op de eerste verdieping vind je drie gezellige slaapkamers, een luxueuze badkamer met inloopdouche en een apart toilet voor extra gemak. Bijhorende technische ruimte met D-ventilatie. Je tuin wordt omheind.
Prijs excl. aankoopkosten en btw.
Meer info via 09 280 60 60 of info@durabrik.be.
Download de brochure op https://www.durabrik.be/nl/nieuwbouwprojecten/puurs-sint-katharinastraat
*beelden zijn indicatief
Het gelijkvloers biedt modern comfort met inkomhal, toilet, wasplaats met warmtepomp, ingerichte keuken met toestellen en aansluitende living. Op de eerste verdieping vind je drie gezellige slaapkamers, een luxueuze badkamer met inloopdouche en een apart toilet voor extra gemak. Bijhorende technische ruimte met D-ventilatie. Je tuin wordt omheind.
Prijs excl. aankoopkosten en btw.
Meer info via 09 280 60 60 of info@durabrik.be.
Download de brochure op https://www.durabrik.be/nl/nieuwbouwprojecten/puurs-sint-katharinastraat
*beelden zijn indicatief
Finances
Ventes sous régime de TVA
Oui
Bâtiment
Type de propriété
Maison
Sous-type
Maison
Surface
145 m²
Terrain
Surface de la parcelle
245 m²
Affectation urbanistique
Zone résidentielle
Aménagement
Nombre de chambres
3
Nombre de salles de bain
1
Nombre de toilettes
0
Confort
Ascenseur
Non
Raccordement électrique
Oui
Raccordement aux égouts
Oui
Énergie
Panneaux solaires
Oui
Chauffage au sol
Oui
Pompe à chaleur
Oui
Urbanisme
Permis de lotissement
Oui
P(arcelle)-score
B (faible probabilité sous le changement climatique ap.2050)
Localité
Sint-Katharinastraat, 2870 PuursEst-ce faisable pour vous?
La contribution personnelle minimale
-EUR
Frais mensuels
-EUR/mois
Vous préférez une proposition personnalisée ?
Expliquez-nous votre projet et votre situation personnelle et KBC calculera un taux d'intérêt personnalisé. Vous recevrez immédiatement une réponse à propos de la faisabilité de votre prêt et pourrez finaliser votre demande entièrement en ligne. Même si vous n'êtes pas client chez KBC.













