Maison à vendre à Schoten avec 3 chambres
Description
In een rustige, kindvriendelijke straat tussen de Schotense Vaart en het bruisende centrum van Schoten vind je deze moderne gezinswoning met tuin. De woning heeft een strakke, eigentijdse gevel en is gebouwd volgens de huidige bouw- en energienormen. Dankzij de centrale ligging zijn alle voorzieningen, invalswegen (Ring en E19) en het openbaar vervoer vlot bereikbaar. Ook het centrum van Antwerpen ligt op korte afstand — ideaal voor wie rustig wil wonen met de stad binnen handbereik.
De woning wordt verkocht casco (ruwbouw winddicht), waardoor de nieuwe eigenaar de volledige afwerking naar eigen smaak kan realiseren. Zo creëer je zelf de thuis die perfect bij jou past.
Let op: de getoonde renders zijn illustratief. Afwerking is niet inbegrepen.
Verkoop onder het registratie-stelsel (12%)
Grootste troeven:
-Centrale locatie
-EPB voorontwerp beschikbaar
-Tal van mogelijkheden
-Gezellige tuin (57m²)
(Huidige) indeling:
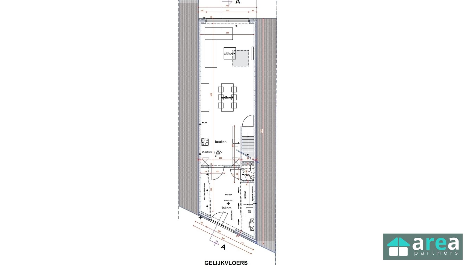
-GLVL: ruime inkomhal (20m²) met vestiaire en bergingsmogelijkheden die toegang biedt tot het aparte WC. Aansluitend bevindt zich de keuken (10m²) die naadloos overgaat in de ruime living (35m²). Vanuit de living is er toegang tot leuke zuidwestgerichte tuin (57m²).
-V1: de nachthal geeft toegang tot de badkamer (9m²) met mogelijkheid ligbad, douche en WC alsook de 2 ruime slaapkamers (14m² & 13m²), waarvan de grotere zich aan de achterzijde bevindt en de kleinere langs voorzijde.
-V2: op het bovenste verdiep bevindt zich de 3de ruime slaapkamer (23m²).
Voor meer informatie kan u terecht bij Area Partners. Info@area.be of 03/284.60.60
Finances
Bâtiment
Terrain
Aménagement
Confort
Énergie
Urbanisme
Localité
Kalstraat 64, 2900 Schoten289.900 EUR
Localité
Kalstraat 64
2900 Schoten
Est-ce faisable pour vous?
Vous préférez une proposition personnalisée ?
Expliquez-nous votre projet et votre situation personnelle et KBC calculera un taux d'intérêt personnalisé. Vous recevrez immédiatement une réponse à propos de la faisabilité de votre prêt et pourrez finaliser votre demande entièrement en ligne. Même si vous n'êtes pas client chez KBC.
















