Maison à vendre à Begijnendijk avec 4 chambres
Description
Meer info of een bezoek? Contacteer Erik Smeijers via erik@copandi.be of bel naar +32 497 53 07 96.
Nieuwbouw in Begijnendijk – Twee uiterst energiezuinige open bebouwingen (E-peil -15)
Wonen in Begijnendijk wordt een stuk slimmer. Langs de Liersesteenweg verrijzen binnenkort twee moderne open bebouwingen die comfort, duurzaamheid en kwaliteit perfect combineren. Ideaal gelegen: rustig, vlot bereikbaar en dicht bij winkels, scholen en openbaar vervoer.
Deze woningen zijn ontworpen met oog voor hedendaagse leefkwaliteit én een uitzonderlijk lage ecologische voetafdruk.
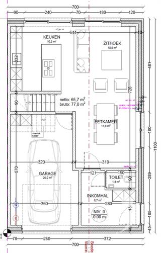
Indeling gelijkvloers:
Ruime, lichtrijke leefruimte met open keuken
Centraal kookeiland en volledig ingebouwde Miele-toestellen
Praktische berging/technische ruimte
Inkomhal met vestiaire en apart gastentoilet
Eerste verdieping:
Vier volwaardige slaapkamers, elk met een eigen warmtepomp
Stijlvolle badkamer met inloopdouche, ligbad en dubbele lavabo
Extra toilet
Aparte wasruimte
Duurzaam en energiezuinig wonen:
Met 14 zonnepanelen, een thuisbatterij en een regenwaterput van 7.500 liter bespaar je aanzienlijk op energie- en waterverbruik. Deze woningen behalen moeiteloos een E-peil van -15.
Extra mogelijkheden:
Optioneel kan je kiezen voor volledige schilderwerken en professionele tuinaanleg, volledig afgestemd op jouw smaak.
De foto’s zijn illustratief en tonen eerdere, gelijkaardige realisaties.
Mobiscore: 7,6/10
Finances
Bâtiment
Terrain
Aménagement
Confort
Énergie
Urbanisme
Localité
Liersesteenweg 193 lot 1, 3130 BegijnendijkEst-ce faisable pour vous?
Vous préférez une proposition personnalisée ?
Expliquez-nous votre projet et votre situation personnelle et KBC calculera un taux d'intérêt personnalisé. Vous recevrez immédiatement une réponse à propos de la faisabilité de votre prêt et pourrez finaliser votre demande entièrement en ligne. Même si vous n'êtes pas client chez KBC.















