Maison à vendre à Aarschot avec 4 chambres
599 000 €
Est-ce faisable pour vous?Description
Malheureusement, la description n'est pas disponible dans la langue sélectionnée.
Vrijstaande nieuwbouw woning gelegen in een landelijke omgeving te Rillaar, op een steenworp van Aarschot met gunstige verbinding naar Leuven. LOT 5A aangeduid op het opmetingsplan.
Strakke hedendaagse nieuwbouw gelegen op een noord west georiënteerd perceel van 540m² met een bewoonbare oppervlakte van 209m². Deze woning wordt volledig afgewerkt opgeleverd met kwalitatieve materialen op maat van uw wensen. U hebt volledige inspraak in keuze vloeren, keuken, badkamer.
Oplevering verwacht 10 juli 2026.
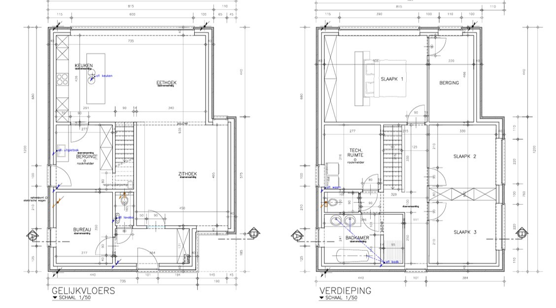
- gelijkvloers : inkomhal, gastentoilet, ruime woonkamer met open keuken die een prachtig zicht op de tuin bieden. Voorraadberging. Bureaukamer of slaapkamer op het gelijkvloers.
- 1ste verdiep: 3 ruime slaapkamers, dressing of extra berging. Badkamer, apart toilet. Technische ruimte.
De verkoopprijs van 599.000 euro excl BTW en notariskosten betreft een volledig afgewerkte woning volgens lastenboek met hoogwaardige materialen en correcte budgetten:
- overal vloerverwarming met warmtepomp
- parket in woonkamer, laminaat in slaapkamers, overigens tegels
- keuken en badkamer worden op maat gemaakt door schrijnwerker - kwalitatieve afwerking
- Ventilatiesysteem D
- 8 zonnepanelen
Lastenboek met alle details kan u verkrijgen op aanvraag. Voor meer inlichtingen nodigen wij u dan ook graag uit bij Dupont Vastgoed, maak gerust uw afspraak op 015 15 15 15
Fotomateriaal is louter illustratief en wijkt af van de actuele bouw.
Strakke hedendaagse nieuwbouw gelegen op een noord west georiënteerd perceel van 540m² met een bewoonbare oppervlakte van 209m². Deze woning wordt volledig afgewerkt opgeleverd met kwalitatieve materialen op maat van uw wensen. U hebt volledige inspraak in keuze vloeren, keuken, badkamer.
Oplevering verwacht 10 juli 2026.
- gelijkvloers : inkomhal, gastentoilet, ruime woonkamer met open keuken die een prachtig zicht op de tuin bieden. Voorraadberging. Bureaukamer of slaapkamer op het gelijkvloers.
- 1ste verdiep: 3 ruime slaapkamers, dressing of extra berging. Badkamer, apart toilet. Technische ruimte.
De verkoopprijs van 599.000 euro excl BTW en notariskosten betreft een volledig afgewerkte woning volgens lastenboek met hoogwaardige materialen en correcte budgetten:
- overal vloerverwarming met warmtepomp
- parket in woonkamer, laminaat in slaapkamers, overigens tegels
- keuken en badkamer worden op maat gemaakt door schrijnwerker - kwalitatieve afwerking
- Ventilatiesysteem D
- 8 zonnepanelen
Lastenboek met alle details kan u verkrijgen op aanvraag. Voor meer inlichtingen nodigen wij u dan ook graag uit bij Dupont Vastgoed, maak gerust uw afspraak op 015 15 15 15
Fotomateriaal is louter illustratief en wijkt af van de actuele bouw.
Finances
Ventes sous régime de TVA
Oui
Valeur construction
454.000 €
Valeur du terrain
145.000 €
Bâtiment
Type de propriété
Maison
Surface
209 m²
Nouveau bâtiment
Oui
Terrain
Surface de la parcelle
540 m²
Affectation urbanistique
Zone résidentielle
Orientation jardin
Nord-ouest
Aménagement
Nombre de chambres
4
Dressing
Oui
Nombre de salles de bain
1
Confort
Ascenseur
Non
Raccordement électrique
Oui
Raccordement aux égouts
Oui
Énergie
Classe énergétique
A
Numéro du rapport PEB
EPC bouw in opmaak
Niveau E
0
Urbanisme
Permis de lotissement
Oui
Droit de préemption
Non
Patrimoine protégé
Non
Localité
Meyerveldstraat 93 LOT 5A, 3200 Aarschot599.000 EUR
Localité
Meyerveldstraat 93 LOT 5A
3200 Aarschot
Est-ce faisable pour vous?
La contribution personnelle minimale
-EUR
Frais mensuels
-EUR/mois
Vous préférez une proposition personnalisée ?
Expliquez-nous votre projet et votre situation personnelle et KBC calculera un taux d'intérêt personnalisé. Vous recevrez immédiatement une réponse à propos de la faisabilité de votre prêt et pourrez finaliser votre demande entièrement en ligne. Même si vous n'êtes pas client chez KBC.
















