Maison à vendre à Zonhoven avec 4 chambres
Description
Moderne halfopen nieuwbouwwoning met ruime indeling en hoogstaande afwerking – Project Schelstraat/Wijvestraat
Deze stijlvolle halfopen bebouwing, gelegen in het residentiële nieuwbouwproject "Schelstraat/Wijvestraat", combineert hedendaagse architectuur met energie-efficiënt wonen. Lot 7 bevindt zich op een royaal perceel van 936 m² en biedt een bewoonbare oppervlakte van 193 m².
Indeling:
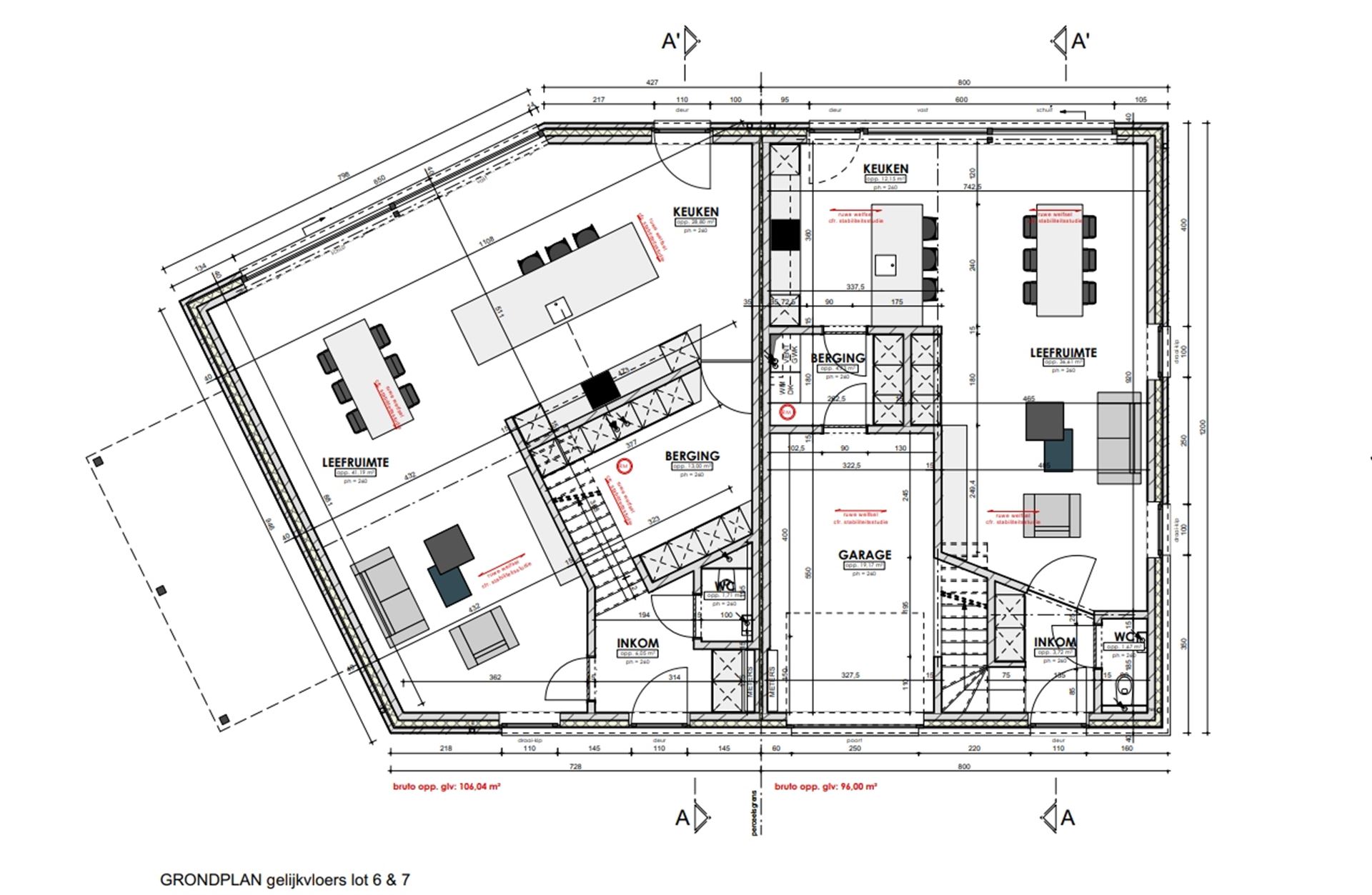
Gelijkvloers
Ruime inkomhal met gastentoilet
Lichtrijke leefruimte met zithoek en eetplaats
Open keuken met zicht op de tuin
Praktische berging met aansluiting voor wasmachine en droogkast
Inpandige garage
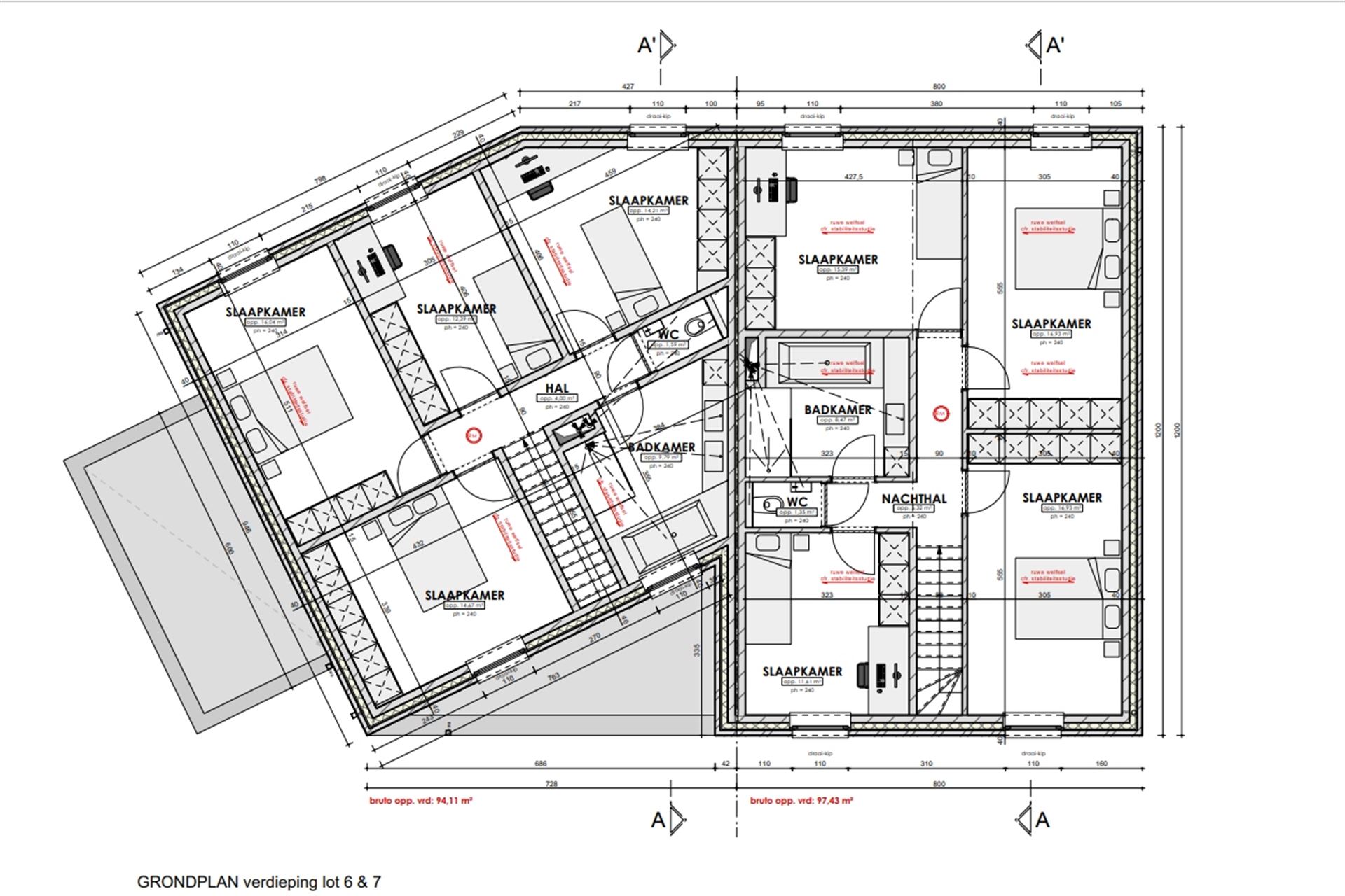
Eerste verdieping:
Nachthal
Apart toilet
Vier volwaardige slaapkamers
Moderne badkamer
Extra berging
Buitenruimte
Tuin (aanleg door de koper)
Carport inbegrepen, voorzien door de projectontwikkelaar
Troeven:
✓ Energiezuinig wonen
✓ Moderne architectuur
✓ Kwalitatieve afwerking
✓ Rustige ligging met vlotte bereikbaarheid
✓ Bouw door betrouwbare professionals
Belangrijke info:
Lot 7 – Open bebouwing (wind- en waterdichte oplevering) – €348.500
Deze woning kan ook wind- en waterdicht opgeleverd worden:
Ruwbouwwerken
Dakwerken
Geïntegreerde carport
Hoogwaardige ramen en buitenschrijnwerk
Carport inbegrepen
Een stevige en kwaliteitsvolle basis, klaar om verder afgewerkt te worden naar uw eigen stijl en wensen.
Deze woning is de perfecte combinatie van comfort, duurzaamheid en modern woonplezier. Interesse of meer informatie? Neem vandaag nog contact op! GSM 0484 03 68 92 Ercan@jemar.be
Bâtiment
Terrain
Aménagement
Énergie
Urbanisme
Localité
Schelstraat-Wijvestraat lot7, 3520 Zonhoven463.000 EUR
Localité
Schelstraat-Wijvestraat lot7
3520 Zonhoven
Est-ce faisable pour vous?
Vous préférez une proposition personnalisée ?
Expliquez-nous votre projet et votre situation personnelle et KBC calculera un taux d'intérêt personnalisé. Vous recevrez immédiatement une réponse à propos de la faisabilité de votre prêt et pourrez finaliser votre demande entièrement en ligne. Même si vous n'êtes pas client chez KBC.















